Parametry projektu DN 030
- Pow. użytkowa: 248 m²
- Pow. zabudowy: 207 m²
- Min. szerokość działki: 24,14 m
- Min. długość działki: 24,24 m
- Kondygnacje: piętrowy
- Poddasze użytkowe: nie
- Poddasze do adaptacji nie
- Piwnica: nie
- Garaż: dwustanowiskowy
- Rodzaj dachu: wielospadowy
- Wysokość domu: 8,8 m
- Szerokość domu: 16,14 m
- Długość domu: 15,24 m
- Kubatura: 900 m³
- Nachylenie dachu: 21°
- Rodzaj zabudowy: wolnostojący
- Technologia: murowany
- Styl: nowoczesny
- Kalenica: obojętnie
- Liczba pokoi: 5
- Liczba łazienek: 3
- Kominek: tak
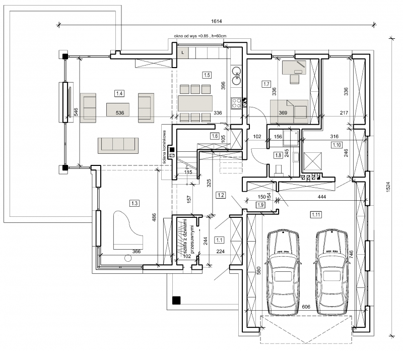
Rzut parteru
Rzut piętra
Pakiet GRATISÓW do projektu
Dedykowane gratisy do projektu DN 030! Do zamówienia możesz wybrać do 10 dowolnych gratisów z poniższej listy.
Opis projektu DN 030
Dom piętrowy w stylu willi miejskiej o współczesnym wyglądzie. Na parterze kuchnia z jadalnią i 2-częściowy salon (o powierzchni 45m²) tworzą otwartą przestrzeń, kominek znajdujący się w centralnym miejscu domu można wykonać w stylu nowoczesnym. Schody prowadzące na piętro są bardzo wygodne, zaprojektowane jako 3-biegowe (bez zabiegów). Na piętrze znajdują się 3 sypianie z własnymi garderobami (w tym jedna z sypialń posiada prywatną łazienkę i wyjście na zadaszony balkon). Dom posiada wbudowany, wygodny garaż na 2 samochody osobowe o szerokości 6.06m.
Projekt energooszczędny: dom samowystarczalny energetycznie. Spełnia wymagania UE obowiązujące od 2021r. Charakterystyka energetyczna w przedziale 36-40 [kWh/m2/rok] w przypadku montażu instalacji pompy ciepła i paneli fotowoltaicznych. Charakterystyka energetyczna w granicach 75 [kWh/m2/rok] bez montażu instalacji energooszczędnych.
Zasady działania domu samowystarczalnego energetycznie:
Nowoczesny, energooszczędny dom + energia elektryczna z paneli fotowoltaicznych umieszczonych na dachu + pompa ciepła do ogrzewania domu i ciepłej wody użytkowej + umowa z zakładem energetycznym o przyjmowaniu nadwyżki wyprodukowanej przez panele fotowoltaiczne energii elektrycznej latem i odbioru zimą.
Pompa ciepła to jedna z najtańszych form ogrzewania, wykorzystująca darmową energię cieplną gruntu, wody lub powietrza. Nowoczesne i drogie urządzenie. Ale w okresie zimowym, kiedy spełnia swój podstawowy cel, czyli dostarcza ciepło do ogrzewania domu, potrzebuje energii elektrycznej.
Własną energię elektryczną uzyskujemy z paneli fotowoltaicznych umieszczonych na dachu domu, ale skuteczne działanie sprawdza się w Polsce przede wszystkim latem. Dopiero możliwość odprowadzenia własnej wyprodukowanej energii elektrycznej do sieci energetycznej latem i odbiór jej zimą pozwala na funkcjonowanie domu samowystarczalnego energetycznie.
Technologia wykonania
- Ściany zewnętrzne 2-warstwowe: beton komórkowy (24cm) / pustak ceramiczny (25cm) + styropian 20cm U ściany < 0,20 W/(m2*K).
- Strop: żelbetowy.
- Dach: dachówka, blachodachówka, blacha.
- Instalacja grzewcza: gaz/paliwo stałe, pompa ciepła, panele fotowoltaiczne.
Koszty budowy
- Stan surowy zamknięty687 880 zł
- Stan deweloperski Economic+250 480 zł
- Stan deweloperski Premium+476 160 zł
Przygotuj się do budowy!
Zamów kosztorys inwestorski i poznaj dokładne koszty materiałów, cen robocizny i innych nakładów.
Stan surowy zamknięty uwzględnia kompletną konstrukcję wraz z elementami zabezpieczającymi budynek przed czynnikami atmosferycznymi. Obiekt jest przygotowany do wykonania kolejnych etapów.
Stan surowy zamknięty obejmuje:
- Fundamenty, ściany nośne i działowe
- Dach, strop, pokrycie dachowe
- Stolarka okienna i drzwiowa zewnętrzna
Wersja ekonomiczna stanu deweloperskiego uwzględnia instalacje, urządzenia i materiały ze średniej półki cenowej, charakteryzujące się standardową jakością.
Stan deweloperski Economic obejmuje:
- Instalacja elektryczna29 760 złkompletna instalacja elektryczna z osprzętem (gniazda, łączniki, rozdzielnica), przewody, puszki, zabezpieczenia.Zastosowane materiały: przewody NKT, osprzęt Simon 10, rozdzielnica Hager Gamma.
- Instalacja sanitarna42 160 złinstalacja wodociągowa, kanalizacyjna i gazowa bez armatury, wentylacja grawitacyjna.Zastosowane materiały: rury PP i PE Wavin, instalacja kanalizacyjna z rur HT+, wentylacja grawitacyjna.
- Instalacja grzewcza64 480 złpompa ciepła + ogrzewanie podłogowe wodne.Zastosowane materiały: pompa ciepła typu split Kaisai Arctic, ogrzewanie podłogowe z rurami Tece.
- Wykończenie wewnętrzne59 520 złtynki wewnętrzne gipsowe + wylewki cementowe. Bez gładzi, farb, podłóg i drzwi.Zastosowane materiały: tynki gipsowe Knauf MP75, wylewki cementowe miksokret Atlas Posadzka 20.
- Wykończenie zewnętrzne54 560 złelewacja z ociepleniem, tynki, parapety, obróbki blacharskie, rynny i rury spustowe.Zastosowane materiały: styropian EPS 70-040 (np. Swisspor), tynk akrylowy Atlas, blacha powlekana Plannja, rynny PCV Bryza.
Wersja premium stanu deweloperskiego uwzględnia instalacje, urządzenia i materiały z wyższej półki cenowej, wyróżniające się najwyższą jakością w obrębie grupy produktowej.
Stan deweloperski Premium obejmuje:
- Instalacja elektryczna62 000 złkompletna instalacja elektryczna z osprzętem (gniazda, łączniki, rozdzielnica), przewody, puszki, zabezpieczenia.Zastosowane materiały: przewody LappKabel, osprzęt Simon 55, Legrand Valena Life, rozdzielnica Schneider Electric.
- Instalacja sanitarna91 760 złinstalacja wodociągowa, kanalizacyjna i gazowa bez armatury, wentylacja grawitacyjna.Zastosowane materiały: rury wielowarstwowe Uponor, kanalizacja niskoszumowa Wavin AS, wentylacja mechaniczna z odzyskiem ciepła LWZ 180 Stiebel Eltron.
- Instalacja grzewcza128 960 złpompa ciepła + ogrzewanie podłogowe wodne.Zastosowane materiały: pompa ciepła Stiebel Eltron HPA 8kW Plus Flex, ogrzewanie podłogowe z rozdzielaczami Herz, sterowanie Salus/Heatmiser.
- Wykończenie wewnętrzne79 360 złtynki wewnętrzne gipsowe + wylewki cementowe. Bez gładzi, farb, podłóg i drzwi.Zastosowane materiały: tynki cementowo-wapienne Baumit MPI25, wylewki anhydrytowe Knauf FE 80.
- Wykończenie zewnętrzne114 080 złelewacja z ociepleniem, tynki, parapety, obróbki blacharskie, rynny i rury spustowe.Zastosowane materiały: styropian grafitowy Termo Organika, tynk silikonowy Baumit, blacha powlekana Plannja, rynny stalowe Galeco STAL, podbitka z kompozytu Vox.


