Parametry projektu Dom z widokiem 6 B
- Pow. użytkowa: 218,1 m²
- Pow. zabudowy (bez podcieni): 188,48 m²
- Min. szerokość działki: 29,04 m
- Min. długość działki: 21,39 m
- Kondygnacje: piętrowy
- Poddasze użytkowe: nie
- Poddasze do adaptacji nie
- Strych: tak
- Piwnica: nie
- Garaż: dwustanowiskowy
- Rodzaj dachu: wielospadowy
- Wysokość domu: 8,42 m
- Szerokość domu: 18,39 m
- Długość domu: 13,39 m
- Kubatura: 956 m³
- Nachylenie dachu: 25°
- Rodzaj zabudowy: wolnostojący
- Technologia: murowany
- Styl: nowoczesny
- Kalenica: prostopadła do drogi
- Powierzchnia dachu: 295 m²
- Liczba pokoi: 5
- Liczba łazienek: 2
- Współczynnik EP: 93 kWh/(m²rok)
- Współczynnik EK: 88,5 kWh/(m²rok)
- Współczynnik EUco: 66,33 kWh/(m²rok)
Rzut parteru
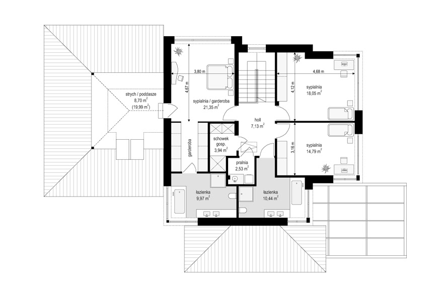
Rzut piętra
Pakiet GRATISÓW do projektu
Dedykowane gratisy do projektu Dom z widokiem 6 B! Do zamówienia możesz wybrać do 10 dowolnych gratisów z poniższej listy.
Opis projektu Dom z widokiem 6 B
Dom z widokiem 6 B jest kolejną propozycją domu piętrowego z serii „Domów z widokiem” z naszej pracowni. Prezentowany projekt to duży piętrowy dom dla 4-5-osobowej rodziny, z rozbudowanym programem użytkowym, oraz dodatkową – wymarzoną przez wielu Inwestorów oranżerią w części dziennej. Budynek został zaprojektowany na planie litery „T”, z główną piętrową bryłą, oraz dwiema dobudowanymi częściami parterowymi. Architektura domu jest nowoczesna. Zastosowane materiały i detale tworzą wysmakowaną podmiejską willę. Podział elewacji na poziome pasy, oraz duże narożne przeszklenia, nadają sylwetce domu atrakcyjnego wyglądu. Wnętrze to otwarta jednoprzestrzenna część dzienna na parterze, cześć gospodarczo-garażowa, oraz sypialnie na piętrze. Zrezygnowano z pustki nad pokojem dziennym – która nie każdemu Inwestorowi odpowiada. Do domu wchodzimy przez dużą sień wprost do holu i salonu. Salon, jadalnia i kuchnia tworzą ogromną otwartą wspólną przestrzeń. Kuchnia, jak na skalę budynku, jest bardzo duża – zmieści się w niej dowolnej wielkości wyspa. Przy kuchni mamy spiżarnię i przejście do ogrodu zimowego, gdzie domownicy w ogrzewanym green-hausie mogą zjeść posiłek, albo odpocząć. To prawdziwa dodatkowa atrakcja domu. Obok mamy salon z dużym stołem jadalnym i meblami wypoczynkowymi. W wersji bazowej projektu zrezygnowano z kominka – można go bez kłopotu dodać. Z holu i salonu widoczne są reprezentacyjne, ozdobne schody na piętro. Na parterze przewidziano jeszcze dodatkowy pokój – gabinet lub sypialnię gościnną. Na piętrze mamy dwie sypialnie dziecięce, łazienkę, pralnię, oraz apartament rodziców, z sypialnią, garderobą i łazienką, oraz dodatkowym dostępem do strychu nad garażem, który można zaadaptować jako kolejną garderobę, albo pokój rekreacyjny. Dom z widokiem 6 B to funkcjonalna, nowoczesna, racjonalnie zaprojektowana willa. W projekcie zastosowano energooszczędne rozwiązania. Budynek będzie niedrogi w późniejszej eksploatacji. To doskonała propozycja dla osób marzących o pięknym piętrowym praktycznym domu dla swojej rodziny. Zapraszamy!
Technologia wykonania
- Fundamenty: betonowe ławy i ściany fundamentowe z bloczków betonowych.
- Ściany zewnętrzne: ściany murowane - pustaki porotherm 25 + styropian + tynk cienkowarstwowy.
- Strop: monolityczny żelbetowy.
- Elewacje: tynk cienkowarstwowy na styropianie
- Pokrycie dachu: dachówka.
Koszty budowy
- Stan surowy zamknięty611 336 zł
- Stan deweloperski Economic+220 281 zł
- Stan deweloperski Premium+418 752 zł
Przygotuj się do budowy!
Zamów kosztorys inwestorski i poznaj dokładne koszty materiałów, cen robocizny i innych nakładów.
Stan surowy zamknięty uwzględnia kompletną konstrukcję wraz z elementami zabezpieczającymi budynek przed czynnikami atmosferycznymi. Obiekt jest przygotowany do wykonania kolejnych etapów.
Stan surowy zamknięty obejmuje:
- Fundamenty, ściany nośne i działowe
- Dach, strop, pokrycie dachowe
- Stolarka okienna i drzwiowa zewnętrzna
Wersja ekonomiczna stanu deweloperskiego uwzględnia instalacje, urządzenia i materiały ze średniej półki cenowej, charakteryzujące się standardową jakością.
Stan deweloperski Economic obejmuje:
- Instalacja elektryczna26 172 złkompletna instalacja elektryczna z osprzętem (gniazda, łączniki, rozdzielnica), przewody, puszki, zabezpieczenia.Zastosowane materiały: przewody NKT, osprzęt Simon 10, rozdzielnica Hager Gamma.
- Instalacja sanitarna37 077 złinstalacja wodociągowa, kanalizacyjna i gazowa bez armatury, wentylacja grawitacyjna.Zastosowane materiały: rury PP i PE Wavin, instalacja kanalizacyjna z rur HT+, wentylacja grawitacyjna.
- Instalacja grzewcza56 706 złpompa ciepła + ogrzewanie podłogowe wodne.Zastosowane materiały: pompa ciepła typu split Kaisai Arctic, ogrzewanie podłogowe z rurami Tece.
- Wykończenie wewnętrzne52 344 złtynki wewnętrzne gipsowe + wylewki cementowe. Bez gładzi, farb, podłóg i drzwi.Zastosowane materiały: tynki gipsowe Knauf MP75, wylewki cementowe miksokret Atlas Posadzka 20.
- Wykończenie zewnętrzne47 982 złelewacja z ociepleniem, tynki, parapety, obróbki blacharskie, rynny i rury spustowe.Zastosowane materiały: styropian EPS 70-040 (np. Swisspor), tynk akrylowy Atlas, blacha powlekana Plannja, rynny PCV Bryza.
Wersja premium stanu deweloperskiego uwzględnia instalacje, urządzenia i materiały z wyższej półki cenowej, wyróżniające się najwyższą jakością w obrębie grupy produktowej.
Stan deweloperski Premium obejmuje:
- Instalacja elektryczna54 525 złkompletna instalacja elektryczna z osprzętem (gniazda, łączniki, rozdzielnica), przewody, puszki, zabezpieczenia.Zastosowane materiały: przewody LappKabel, osprzęt Simon 55, Legrand Valena Life, rozdzielnica Schneider Electric.
- Instalacja sanitarna80 697 złinstalacja wodociągowa, kanalizacyjna i gazowa bez armatury, wentylacja grawitacyjna.Zastosowane materiały: rury wielowarstwowe Uponor, kanalizacja niskoszumowa Wavin AS, wentylacja mechaniczna z odzyskiem ciepła LWZ 180 Stiebel Eltron.
- Instalacja grzewcza113 412 złpompa ciepła + ogrzewanie podłogowe wodne.Zastosowane materiały: pompa ciepła Stiebel Eltron HPA 8kW Plus Flex, ogrzewanie podłogowe z rozdzielaczami Herz, sterowanie Salus/Heatmiser.
- Wykończenie wewnętrzne69 792 złtynki wewnętrzne gipsowe + wylewki cementowe. Bez gładzi, farb, podłóg i drzwi.Zastosowane materiały: tynki cementowo-wapienne Baumit MPI25, wylewki anhydrytowe Knauf FE 80.
- Wykończenie zewnętrzne100 326 złelewacja z ociepleniem, tynki, parapety, obróbki blacharskie, rynny i rury spustowe.Zastosowane materiały: styropian grafitowy Termo Organika, tynk silikonowy Baumit, blacha powlekana Plannja, rynny stalowe Galeco STAL, podbitka z kompozytu Vox.
Warianty
- Dom z widokiem 2
- Pow. użytkowa:221,97 m²
- Technologia:murowany
- Garaż:dwustanowiskowy
- Min. wymiary działki:22,09 x 30,05 m
- Dom z widokiem 2 C
- Pow. użytkowa:245,25 m²
- Technologia:murowany
- Garaż:dwustanowiskowy
- Min. wymiary działki:22,09 x 30,05 m
- Dom z widokiem 3
- Pow. użytkowa:186,93 m²
- Technologia:murowany
- Garaż:dwustanowiskowy
- Min. wymiary działki:21,19 x 27,66 m
- Dom z widokiem 3 F
- Pow. użytkowa:195,05 m²
- Technologia:murowany
- Garaż:dwustanowiskowy
- Min. wymiary działki:28,67 x 22,32 m
- Dom z widokiem 4
- Pow. użytkowa:285,31 m²
- Technologia:murowany
- Garaż:dwustanowiskowy
- Min. wymiary działki:25,71 x 30,3 m
- Dom z widokiem 5
- Pow. użytkowa:146,25 m²
- Technologia:murowany
- Garaż:jednostanowiskowy
- Min. wymiary działki:19,34 x 24,34 m
- Dom z widokiem 6
- Pow. użytkowa:179,45 m²
- Technologia:murowany
- Garaż:dwustanowiskowy
- Min. wymiary działki:22,32 x 27,52 m
- Dom z widokiem B
- Pow. użytkowa:282,08 m²
- Technologia:murowany
- Garaż:dwustanowiskowy
- Min. wymiary działki:25,71 x 31,25 m
- Dom z widokiem E
- Pow. użytkowa:346,61 m²
- Technologia:murowany
- Garaż:dwustanowiskowy
- Min. wymiary działki:28 x 30,1 m
- Dom z widokiem 3 wariant B
- Pow. użytkowa:210,95 m²
- Technologia:murowany
- Garaż:dwustanowiskowy
- Min. wymiary działki:23,43 x 27,68 m
- Dom z widokiem 5 wariant B
- Pow. użytkowa:146,25 m²
- Technologia:murowany
- Garaż:dwustanowiskowy
- Min. wymiary działki:19,34 x 27,74 m
- Dom z widokiem
- Pow. użytkowa:269,44 m²
- Technologia:murowany
- Garaż:dwustanowiskowy
- Min. wymiary działki:25,71 x 30,3 m


