Parametry projektu FX-31
- Pow. użytkowa: 239,29 m²
- Pow. zabudowy: 313,6 m²
- Min. szerokość działki: 30,86 m
- Min. długość działki: 24,49 m
- Kondygnacje: piętrowy
- Poddasze użytkowe: nie
- Poddasze do adaptacji nie
- Strych: nie
- Piwnica: nie
- Garaż: dwustanowiskowy
- Rodzaj dachu: czterospadowy
- Wysokość domu: 8,88 m
- Szerokość domu: 22,86 m
- Długość domu: 16,49 m
- Kubatura: 1714 m³
- Nachylenie dachu: 25°
- Rodzaj zabudowy: wolnostojący
- Technologia: murowany
- Styl: nowoczesny
- Kalenica: równoległa do drogi
- Liczba pokoi: 6
- Liczba łazienek: 1
Rzut parteru
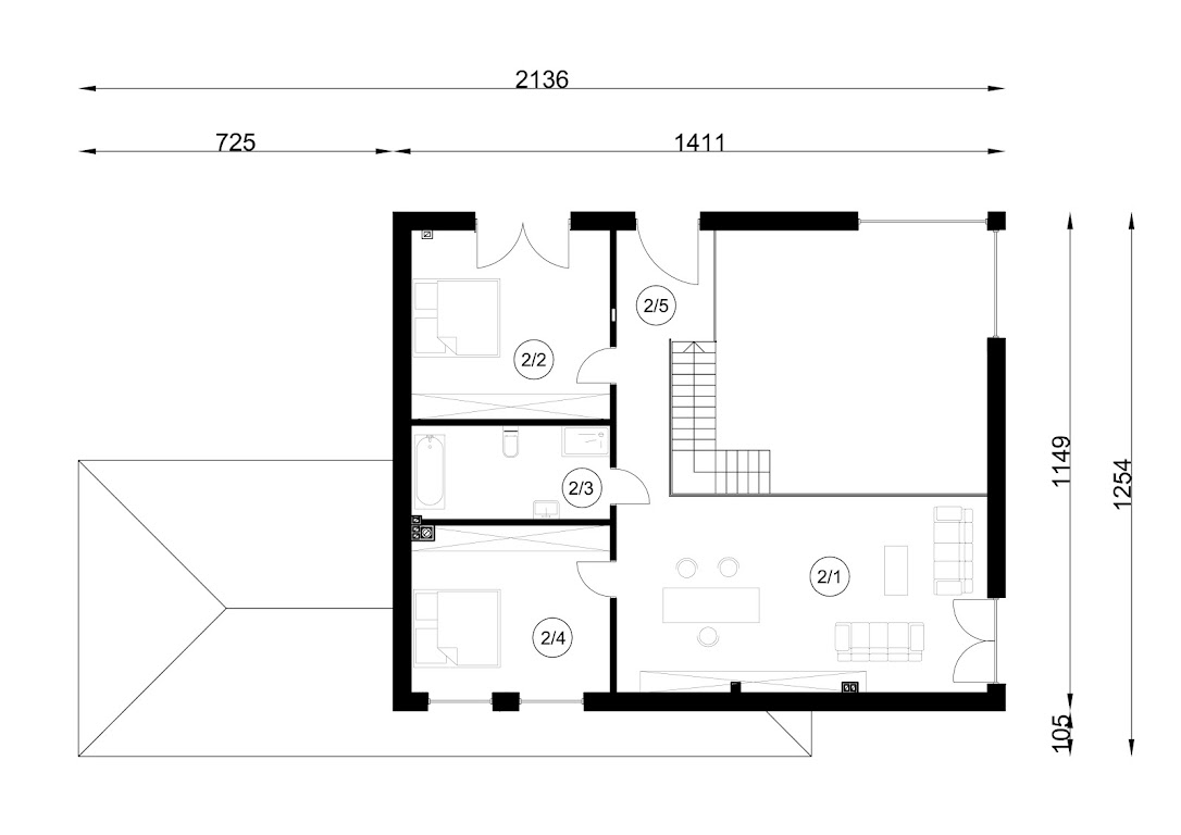
Rzut piętra
Pakiet GRATISÓW do projektu
Dedykowane gratisy do projektu FX-31! Do zamówienia możesz wybrać do 10 dowolnych gratisów z poniższej listy.
Opis projektu FX-31
Budynek FX-31 to wyjątkowy projekt domu jednorodzinnego. Bryła budynku jest elegancka i nowoczesna. Kompozycja materiałów użytych na elewacji podkreśla wyjątkowy charakter domu.
Wnętrze domu jest bardzo przestronne dzięki antresoli i dużym otwartym powierzchniom. Na parterze domu część dzienna jest otwarta z wydzielonymi strefami: wypoczynkową, jadalnianą i kuchenną. Część prywatna znajduje się zarówno na parterze jak i na piętrze i składa się z obszernych sypialni łazienek i garderób. Całość stanowi idealną propozycję dla rodziny ceniącej wygodę i luksus.
Technologia wykonania
- Fundament: ławy fundamentowe.
- Ściany zewnętrzne: murowane dwuwarstwowe.
- Ściany wewnętrzne: murawane.
- Strop: gęstożebrowy.
- Dach: dachówka.
- Wentylację mechaniczną z odzyskiem ciepła (rekuperacja).
Koszty budowy
- Stan surowy zamknięty665 582 zł
- Stan deweloperski Economic+241 683 zł
- Stan deweloperski Premium+459 437 zł
Przygotuj się do budowy!
Zamów kosztorys inwestorski i poznaj dokładne koszty materiałów, cen robocizny i innych nakładów.
Stan surowy zamknięty uwzględnia kompletną konstrukcję wraz z elementami zabezpieczającymi budynek przed czynnikami atmosferycznymi. Obiekt jest przygotowany do wykonania kolejnych etapów.
Stan surowy zamknięty obejmuje:
- Fundamenty, ściany nośne i działowe
- Dach, strop, pokrycie dachowe
- Stolarka okienna i drzwiowa zewnętrzna
Wersja ekonomiczna stanu deweloperskiego uwzględnia instalacje, urządzenia i materiały ze średniej półki cenowej, charakteryzujące się standardową jakością.
Stan deweloperski Economic obejmuje:
- Instalacja elektryczna28 715 złkompletna instalacja elektryczna z osprzętem (gniazda, łączniki, rozdzielnica), przewody, puszki, zabezpieczenia.Zastosowane materiały: przewody NKT, osprzęt Simon 10, rozdzielnica Hager Gamma.
- Instalacja sanitarna40 679 złinstalacja wodociągowa, kanalizacyjna i gazowa bez armatury, wentylacja grawitacyjna.Zastosowane materiały: rury PP i PE Wavin, instalacja kanalizacyjna z rur HT+, wentylacja grawitacyjna.
- Instalacja grzewcza62 215 złpompa ciepła + ogrzewanie podłogowe wodne.Zastosowane materiały: pompa ciepła typu split Kaisai Arctic, ogrzewanie podłogowe z rurami Tece.
- Wykończenie wewnętrzne57 430 złtynki wewnętrzne gipsowe + wylewki cementowe. Bez gładzi, farb, podłóg i drzwi.Zastosowane materiały: tynki gipsowe Knauf MP75, wylewki cementowe miksokret Atlas Posadzka 20.
- Wykończenie zewnętrzne52 644 złelewacja z ociepleniem, tynki, parapety, obróbki blacharskie, rynny i rury spustowe.Zastosowane materiały: styropian EPS 70-040 (np. Swisspor), tynk akrylowy Atlas, blacha powlekana Plannja, rynny PCV Bryza.
Wersja premium stanu deweloperskiego uwzględnia instalacje, urządzenia i materiały z wyższej półki cenowej, wyróżniające się najwyższą jakością w obrębie grupy produktowej.
Stan deweloperski Premium obejmuje:
- Instalacja elektryczna59 823 złkompletna instalacja elektryczna z osprzętem (gniazda, łączniki, rozdzielnica), przewody, puszki, zabezpieczenia.Zastosowane materiały: przewody LappKabel, osprzęt Simon 55, Legrand Valena Life, rozdzielnica Schneider Electric.
- Instalacja sanitarna88 537 złinstalacja wodociągowa, kanalizacyjna i gazowa bez armatury, wentylacja grawitacyjna.Zastosowane materiały: rury wielowarstwowe Uponor, kanalizacja niskoszumowa Wavin AS, wentylacja mechaniczna z odzyskiem ciepła LWZ 180 Stiebel Eltron.
- Instalacja grzewcza124 431 złpompa ciepła + ogrzewanie podłogowe wodne.Zastosowane materiały: pompa ciepła Stiebel Eltron HPA 8kW Plus Flex, ogrzewanie podłogowe z rozdzielaczami Herz, sterowanie Salus/Heatmiser.
- Wykończenie wewnętrzne76 573 złtynki wewnętrzne gipsowe + wylewki cementowe. Bez gładzi, farb, podłóg i drzwi.Zastosowane materiały: tynki cementowo-wapienne Baumit MPI25, wylewki anhydrytowe Knauf FE 80.
- Wykończenie zewnętrzne110 073 złelewacja z ociepleniem, tynki, parapety, obróbki blacharskie, rynny i rury spustowe.Zastosowane materiały: styropian grafitowy Termo Organika, tynk silikonowy Baumit, blacha powlekana Plannja, rynny stalowe Galeco STAL, podbitka z kompozytu Vox.




