Parametry projektu Havana A
- Pow. użytkowa: 101,49 m²
- Pow. zabudowy: 73,53 m²
- Min. szerokość działki: 13,7 m
- Min. długość działki: 20,9 m
- Kondygnacje: piętrowy
- Poddasze użytkowe: nie
- Poddasze do adaptacji nie
- Strych: nie
- Piwnica: nie
- Garaż: bez garażu
- Rodzaj dachu: dwuspadowy
- Wysokość domu: 8,02 m
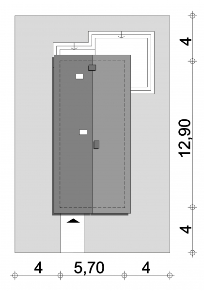
- Szerokość domu: 5,7 m
- Długość domu: 12,9 m
- Kubatura: 277,98 m³
- Nachylenie dachu: 28°
- Rodzaj zabudowy: wolnostojący
- Technologia: murowany
- Styl: nowoczesna elewacja
- Kalenica: prostopadła do drogi
- Powierzchnia dachu: 102 m²
- Liczba pokoi: 4
- Liczba łazienek: 2
- Kominek: tak
- Współczynnik EP: 62,94 kWh/(m²rok)
- Współczynnik EUco: 49,48 kWh/(m²rok)
Rzut parteru
Rzut piętra
Rzut piętra z trzema sypialniami
Pakiet GRATISÓW do projektu
Dedykowane gratisy do projektu Havana A! Do zamówienia możesz wybrać do 10 dowolnych gratisów z poniższej listy.
Opis projektu Havana A
Projekt domu Havana A to dom piętrowy, niepodpiwniczony, o nowoczesnej formie, z dwuspadowym dachem. Szczególnie zalecany na wąskie i nietypowe działki. Przeznaczony dla 3-4-osobowej rodziny.
Jednoprzestrzenna strefa dzienna na parterze składa się z kuchni, jadalni i salonu z kominkiem. Oprócz wyżej wymienionych pomieszczeń znajduje się tu pokój gościnny, toaleta, pomieszczenie gospodarcze oraz schody prowadzące na piętro. Natomiast na piętrze zaprojektowano łazienkę oraz dwie duże sypialnie (istnieje możliwość zmiany aranżacji poddasza poprzez wydzielenie dodatkowej sypialni. Do domu można dobudować wiatę garażową lub garaż (patrz Hawana B).
Technologia wykonania
- Ściany zewnętrzne: bloczek gazobetonowy Ytong 24cm + wełna mineralna.
- Ściany wewnętrzne: gazobeton 12cm.
- Strop: gęstożebrowy.
- Dach: dwuspadowy, kąt nachylenia 28 st.
- Pokrycie dachu: dachówka ceramiczna.
- Ogrzewanie: kocioł gazowy.
- Wentylacja: grawitacyjna.
- Projekt zgodny z Wt2021.
Koszty budowy
- Stan surowy zamknięty247 636 zł
- Stan deweloperski Economic+102 505 zł
- Stan deweloperski Premium+194 861 zł
Przygotuj się do budowy!
Zamów kosztorys inwestorski i poznaj dokładne koszty materiałów, cen robocizny i innych nakładów.
Stan surowy zamknięty uwzględnia kompletną konstrukcję wraz z elementami zabezpieczającymi budynek przed czynnikami atmosferycznymi. Obiekt jest przygotowany do wykonania kolejnych etapów.
Stan surowy zamknięty obejmuje:
- Fundamenty, ściany nośne i działowe
- Dach, strop, pokrycie dachowe
- Stolarka okienna i drzwiowa zewnętrzna
Wersja ekonomiczna stanu deweloperskiego uwzględnia instalacje, urządzenia i materiały ze średniej półki cenowej, charakteryzujące się standardową jakością.
Stan deweloperski Economic obejmuje:
- Instalacja elektryczna12 179 złkompletna instalacja elektryczna z osprzętem (gniazda, łączniki, rozdzielnica), przewody, puszki, zabezpieczenia.Zastosowane materiały: przewody NKT, osprzęt Simon 10, rozdzielnica Hager Gamma.
- Instalacja sanitarna17 253 złinstalacja wodociągowa, kanalizacyjna i gazowa bez armatury, wentylacja grawitacyjna.Zastosowane materiały: rury PP i PE Wavin, instalacja kanalizacyjna z rur HT+, wentylacja grawitacyjna.
- Instalacja grzewcza26 387 złpompa ciepła + ogrzewanie podłogowe wodne.Zastosowane materiały: pompa ciepła typu split Kaisai Arctic, ogrzewanie podłogowe z rurami Tece.
- Wykończenie wewnętrzne24 358 złtynki wewnętrzne gipsowe + wylewki cementowe. Bez gładzi, farb, podłóg i drzwi.Zastosowane materiały: tynki gipsowe Knauf MP75, wylewki cementowe miksokret Atlas Posadzka 20.
- Wykończenie zewnętrzne22 328 złelewacja z ociepleniem, tynki, parapety, obróbki blacharskie, rynny i rury spustowe.Zastosowane materiały: styropian EPS 70-040 (np. Swisspor), tynk akrylowy Atlas, blacha powlekana Plannja, rynny PCV Bryza.
Wersja premium stanu deweloperskiego uwzględnia instalacje, urządzenia i materiały z wyższej półki cenowej, wyróżniające się najwyższą jakością w obrębie grupy produktowej.
Stan deweloperski Premium obejmuje:
- Instalacja elektryczna25 373 złkompletna instalacja elektryczna z osprzętem (gniazda, łączniki, rozdzielnica), przewody, puszki, zabezpieczenia.Zastosowane materiały: przewody LappKabel, osprzęt Simon 55, Legrand Valena Life, rozdzielnica Schneider Electric.
- Instalacja sanitarna37 551 złinstalacja wodociągowa, kanalizacyjna i gazowa bez armatury, wentylacja grawitacyjna.Zastosowane materiały: rury wielowarstwowe Uponor, kanalizacja niskoszumowa Wavin AS, wentylacja mechaniczna z odzyskiem ciepła LWZ 180 Stiebel Eltron.
- Instalacja grzewcza52 775 złpompa ciepła + ogrzewanie podłogowe wodne.Zastosowane materiały: pompa ciepła Stiebel Eltron HPA 8kW Plus Flex, ogrzewanie podłogowe z rozdzielaczami Herz, sterowanie Salus/Heatmiser.
- Wykończenie wewnętrzne32 477 złtynki wewnętrzne gipsowe + wylewki cementowe. Bez gładzi, farb, podłóg i drzwi.Zastosowane materiały: tynki cementowo-wapienne Baumit MPI25, wylewki anhydrytowe Knauf FE 80.
- Wykończenie zewnętrzne46 685 złelewacja z ociepleniem, tynki, parapety, obróbki blacharskie, rynny i rury spustowe.Zastosowane materiały: styropian grafitowy Termo Organika, tynk silikonowy Baumit, blacha powlekana Plannja, rynny stalowe Galeco STAL, podbitka z kompozytu Vox.
Warianty
- Havana B
- Pow. użytkowa:101,49 m²
- Technologia:murowany
- Garaż:wiata garażowa
- Min. wymiary działki:20,9 x 13,7 m


