Parametry projektu Mini 5
- Pow. użytkowa: 123,88 m²
- Pow. zabudowy: 105,47 m²
- Min. szerokość działki: 18,3 m
- Min. długość działki: 18,3 m
- Kondygnacje: parterowy
- Poddasze użytkowe: tak
- Poddasze do adaptacji nie
- Strych: nie
- Piwnica: nie
- Garaż: bez garażu
- Rodzaj dachu: dwuspadowy
- Wysokość domu: 9,63 m
- Szerokość domu: 10,3 m
- Długość domu: 10,3 m
- Kubatura: 445,39 m³
- Nachylenie dachu: 45°
- Rodzaj zabudowy: wolnostojący
- Technologia: murowany
- Styl: nowoczesna elewacja
- Kalenica: równoległa do drogi
- Powierzchnia dachu: 181 m²
- Liczba pokoi: 4
- Liczba łazienek: 1
- Kominek: tak
Rzut parteru
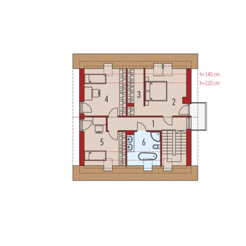
Rzut poddasza
Pakiet GRATISÓW do projektu
Dedykowane gratisy do projektu Mini 5! Do zamówienia możesz wybrać do 10 dowolnych gratisów z poniższej listy.
Opis projektu Mini 5
Mini 5 to mały i tani w budowie dom, który jest idealną propozycją zarówno dla młodego małżeństwa, singla jak i pary seniorów. Prosta, kompaktowa forma, brak zbędnych detali i odpowiednie rozmieszczone okien sprawiają, że projekt jest bardzo energooszczędny, ciepły i przytulnie komfortowy w codziennym użytkowaniu. Oprócz wygodnie rozplanowanego układu pomieszczeń, do dyspozycji domowników jest także zadaszony taras, oferujący przyjemne warunki do odpoczynku z relaksującym widokiem na ogród.
Charakterystyka: Dom parterowy z poddaszem użytkowym, niepodpiwniczony
Przeznaczenie: Dom dla 2-4-osobowej rodziny
Technologia wykonania
- Ściany zewnętrzne: murowane, dwuwarstwowe, beton komórkowy firmy Solbet 24 cm, ocieplenie styropian Termo Organika 20 cm.
- Ściany wewnętrzne: nośne i działowe murowane, beton komórkowy firmy Solbet 24 cm i 12 cm.
- Strop: międzypiętrowy gęstożebrowy Teriva.
- Dach: konstrukcja drewniana, ocieplenie wełna mineralna 30 cm, blacha na rąbek stojący Classic firmy Ruukki.
- Inne: schody wewnętrzne drewniane.
- Ogrzewanie: kocioł gazowy kondensacyjny, rozprowadzenie ciepła: grzejniki.
- Wentylacja: grawitacyjna.
- Elewacje: tynk cienkowarstwowy mineralny w kolorze białym TO-PA001 i ciemnoszarym TO-GY011 z palety firmy Termo Organika, okładzina drewniana.
- Stolarka: drewniana, PVC lub aluminiowa, rolety zewnętrzne w systemie CleverBox firmy BeClever.
- Okna połaciowe: rozwiązania technologiczne, wyłaz i świetlik dachowy firmy VELUX.
- Otoczenie: kostka betonowa i płyty tarasowe firmy Libet, system tarasowy ProDeck - deska kompozytowa Terra w kolorze orzech.
Koszty budowy
- Stan surowy zamknięty314 655 zł
- Stan deweloperski Economic+125 120 zł
- Stan deweloperski Premium+237 851 zł
Przygotuj się do budowy!
Zamów kosztorys inwestorski i poznaj dokładne koszty materiałów, cen robocizny i innych nakładów.
Stan surowy zamknięty uwzględnia kompletną konstrukcję wraz z elementami zabezpieczającymi budynek przed czynnikami atmosferycznymi. Obiekt jest przygotowany do wykonania kolejnych etapów.
Stan surowy zamknięty obejmuje:
- Fundamenty, ściany nośne i działowe
- Dach, strop, pokrycie dachowe
- Stolarka okienna i drzwiowa zewnętrzna
Wersja ekonomiczna stanu deweloperskiego uwzględnia instalacje, urządzenia i materiały ze średniej półki cenowej, charakteryzujące się standardową jakością.
Stan deweloperski Economic obejmuje:
- Instalacja elektryczna14 866 złkompletna instalacja elektryczna z osprzętem (gniazda, łączniki, rozdzielnica), przewody, puszki, zabezpieczenia.Zastosowane materiały: przewody NKT, osprzęt Simon 10, rozdzielnica Hager Gamma.
- Instalacja sanitarna21 060 złinstalacja wodociągowa, kanalizacyjna i gazowa bez armatury, wentylacja grawitacyjna.Zastosowane materiały: rury PP i PE Wavin, instalacja kanalizacyjna z rur HT+, wentylacja grawitacyjna.
- Instalacja grzewcza32 209 złpompa ciepła + ogrzewanie podłogowe wodne.Zastosowane materiały: pompa ciepła typu split Kaisai Arctic, ogrzewanie podłogowe z rurami Tece.
- Wykończenie wewnętrzne29 731 złtynki wewnętrzne gipsowe + wylewki cementowe. Bez gładzi, farb, podłóg i drzwi.Zastosowane materiały: tynki gipsowe Knauf MP75, wylewki cementowe miksokret Atlas Posadzka 20.
- Wykończenie zewnętrzne27 254 złelewacja z ociepleniem, tynki, parapety, obróbki blacharskie, rynny i rury spustowe.Zastosowane materiały: styropian EPS 70-040 (np. Swisspor), tynk akrylowy Atlas, blacha powlekana Plannja, rynny PCV Bryza.
Wersja premium stanu deweloperskiego uwzględnia instalacje, urządzenia i materiały z wyższej półki cenowej, wyróżniające się najwyższą jakością w obrębie grupy produktowej.
Stan deweloperski Premium obejmuje:
- Instalacja elektryczna30 970 złkompletna instalacja elektryczna z osprzętem (gniazda, łączniki, rozdzielnica), przewody, puszki, zabezpieczenia.Zastosowane materiały: przewody LappKabel, osprzęt Simon 55, Legrand Valena Life, rozdzielnica Schneider Electric.
- Instalacja sanitarna45 836 złinstalacja wodociągowa, kanalizacyjna i gazowa bez armatury, wentylacja grawitacyjna.Zastosowane materiały: rury wielowarstwowe Uponor, kanalizacja niskoszumowa Wavin AS, wentylacja mechaniczna z odzyskiem ciepła LWZ 180 Stiebel Eltron.
- Instalacja grzewcza64 418 złpompa ciepła + ogrzewanie podłogowe wodne.Zastosowane materiały: pompa ciepła Stiebel Eltron HPA 8kW Plus Flex, ogrzewanie podłogowe z rozdzielaczami Herz, sterowanie Salus/Heatmiser.
- Wykończenie wewnętrzne39 642 złtynki wewnętrzne gipsowe + wylewki cementowe. Bez gładzi, farb, podłóg i drzwi.Zastosowane materiały: tynki cementowo-wapienne Baumit MPI25, wylewki anhydrytowe Knauf FE 80.
- Wykończenie zewnętrzne56 985 złelewacja z ociepleniem, tynki, parapety, obróbki blacharskie, rynny i rury spustowe.Zastosowane materiały: styropian grafitowy Termo Organika, tynk silikonowy Baumit, blacha powlekana Plannja, rynny stalowe Galeco STAL, podbitka z kompozytu Vox.
Warianty
- Mini 4 w. II
- Pow. użytkowa:122,9 m²
- Technologia:murowany
- Garaż:bez garażu
- Min. wymiary działki:20,6 x 22,44 m
- Mini 1 G1
- Pow. użytkowa:78,95 m²
- Technologia:murowany
- Garaż:jednostanowiskowy
- Min. wymiary działki:17,64 x 22,94 m
- Mini 2 G1
- Pow. użytkowa:99,69 m²
- Technologia:murowany
- Garaż:jednostanowiskowy
- Min. wymiary działki:18,7 x 19,7 m
- Mini 3
- Pow. użytkowa:79 m²
- Technologia:murowany
- Garaż:bez garażu
- Min. wymiary działki:17,7 x 20,4 m
- Mini 4 Energo
- Pow. użytkowa:109,88 m²
- Technologia:murowany
- Garaż:bez garażu
- Min. wymiary działki:19,44 x 21,44 m


