Parametry projektu Zosia Drewniany Termo
- Pow. użytkowa: 139 m²
- Min. szerokość działki: 18,88 m
- Min. długość działki: 17,1 m
- Kondygnacje: parterowy
- Poddasze użytkowe: tak
- Poddasze do adaptacji nie
- Strych: nie
- Piwnica: nie
- Garaż: bez garażu
- Rodzaj dachu: dwuspadowy
- Wysokość domu: 7,95 m
- Szerokość domu: 10,88 m
- Długość domu: 9,1 m
- Kubatura: 571 m³
- Nachylenie dachu: 40°
- Rodzaj zabudowy: wolnostojący
- Technologia: drewniany - szkielet
- Styl: nowoczesna elewacja
- Kalenica: równoległa do drogi
- Kominek: tak
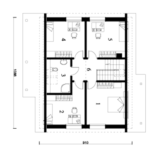
Rzut parteru
Rzut poddasza
Pakiet GRATISÓW do projektu
Dedykowane gratisy do projektu Zosia Drewniany Termo! Do zamówienia możesz wybrać do 10 dowolnych gratisów z poniższej listy.
Opis projektu Zosia Drewniany Termo
Projekt Zosia Drewniany Termo to parterowy dom z poddaszem użytkowym. Jego powierzchnia użytkowa wynosi 139 m². Nowoczesna elewacja budynku w połączeniu ze sprawdzonymi opcjami sprawia, że projekt pasuje do każdej okolicy: zarówno tej miejskiej, jak i wiejskiej. Modne wykończenia i stylowe zadaszenia, zarówno nad wejściem oraz przestrzenią tarasową, dodają całości uroku.
Projekt domu z wygodną strefą dzienną na parterze
Na parterze domu zaplanowano strefę dzienną, która sprzyja wygodzie i relaksowi wszystkich domowników. Znajdziemy tam: dwie łazienki, sypialnię, kotłownię, kuchnię, salon z jadalnią oraz praktyczne WC. Z salonu można przejść na taras. Jedna z łazienek należy do pokoju, dzięki czemu jest to idealne pomieszczenie np. dla seniora, któremu codzienne przemieszczanie się schodami może sprawiać trudność.
Komfortowe poddasze z czterema sypialniami
Na poddaszu użytkowym zaplanowany aż cztery wygodne sypialnie. Ich powierzchnia wynosi: 10,80 m², 12,40 m² , dwa ostatnie pokoje są identycznej wielkości – 10,65 m². Na tej kondygnacji zaplanowano też wygodną łazienkę, do której dostęp mają wszyscy domownicy.
Niewielka przestrzeń tarasowa ze stylowym zadaszeniem
Zadaszenia na niewielkiej przestrzeni tarasowej oraz wejściowej to komfortowa opcja, która chroni np. przed deszczem. Wielu inwestorów lubi spędzać czas na świeżym powietrzu w otoczeniu własnego ogródka – to jeden z powodów dla którego wybiera się budowę domu zamiast posiadania mieszkania w mieście! Dzięki wspomnianym zadaszeniom, korzystanie z ogródka stanie się przyjemne i komfortowe. Nic nie stoi na przeszkodzie, by uczynić taras miejscem odpoczynku dla całej rodziny.
Koszty budowy
- Stan surowy zamknięty366 960 zł
- Stan deweloperski Economic+140 390 zł
- Stan deweloperski Premium+266 880 zł
Przygotuj się do budowy!
Zamów kosztorys inwestorski i poznaj dokładne koszty materiałów, cen robocizny i innych nakładów.
Stan surowy zamknięty uwzględnia kompletną konstrukcję wraz z elementami zabezpieczającymi budynek przed czynnikami atmosferycznymi. Obiekt jest przygotowany do wykonania kolejnych etapów.
Stan surowy zamknięty obejmuje:
- Fundamenty, ściany nośne i działowe
- Dach, strop, pokrycie dachowe
- Stolarka okienna i drzwiowa zewnętrzna
Wersja ekonomiczna stanu deweloperskiego uwzględnia instalacje, urządzenia i materiały ze średniej półki cenowej, charakteryzujące się standardową jakością.
Stan deweloperski Economic obejmuje:
- Instalacja elektryczna16 680 złkompletna instalacja elektryczna z osprzętem (gniazda, łączniki, rozdzielnica), przewody, puszki, zabezpieczenia.Zastosowane materiały: przewody NKT, osprzęt Simon 10, rozdzielnica Hager Gamma.
- Instalacja sanitarna23 630 złinstalacja wodociągowa, kanalizacyjna i gazowa bez armatury, wentylacja grawitacyjna.Zastosowane materiały: rury PP i PE Wavin, instalacja kanalizacyjna z rur HT+, wentylacja grawitacyjna.
- Instalacja grzewcza36 140 złpompa ciepła + ogrzewanie podłogowe wodne.Zastosowane materiały: pompa ciepła typu split Kaisai Arctic, ogrzewanie podłogowe z rurami Tece.
- Wykończenie wewnętrzne33 360 złtynki wewnętrzne gipsowe + wylewki cementowe. Bez gładzi, farb, podłóg i drzwi.Zastosowane materiały: tynki gipsowe Knauf MP75, wylewki cementowe miksokret Atlas Posadzka 20.
- Wykończenie zewnętrzne30 580 złelewacja z ociepleniem, tynki, parapety, obróbki blacharskie, rynny i rury spustowe.Zastosowane materiały: styropian EPS 70-040 (np. Swisspor), tynk akrylowy Atlas, blacha powlekana Plannja, rynny PCV Bryza.
Wersja premium stanu deweloperskiego uwzględnia instalacje, urządzenia i materiały z wyższej półki cenowej, wyróżniające się najwyższą jakością w obrębie grupy produktowej.
Stan deweloperski Premium obejmuje:
- Instalacja elektryczna34 750 złkompletna instalacja elektryczna z osprzętem (gniazda, łączniki, rozdzielnica), przewody, puszki, zabezpieczenia.Zastosowane materiały: przewody LappKabel, osprzęt Simon 55, Legrand Valena Life, rozdzielnica Schneider Electric.
- Instalacja sanitarna51 430 złinstalacja wodociągowa, kanalizacyjna i gazowa bez armatury, wentylacja grawitacyjna.Zastosowane materiały: rury wielowarstwowe Uponor, kanalizacja niskoszumowa Wavin AS, wentylacja mechaniczna z odzyskiem ciepła LWZ 180 Stiebel Eltron.
- Instalacja grzewcza72 280 złpompa ciepła + ogrzewanie podłogowe wodne.Zastosowane materiały: pompa ciepła Stiebel Eltron HPA 8kW Plus Flex, ogrzewanie podłogowe z rozdzielaczami Herz, sterowanie Salus/Heatmiser.
- Wykończenie wewnętrzne44 480 złtynki wewnętrzne gipsowe + wylewki cementowe. Bez gładzi, farb, podłóg i drzwi.Zastosowane materiały: tynki cementowo-wapienne Baumit MPI25, wylewki anhydrytowe Knauf FE 80.
- Wykończenie zewnętrzne63 940 złelewacja z ociepleniem, tynki, parapety, obróbki blacharskie, rynny i rury spustowe.Zastosowane materiały: styropian grafitowy Termo Organika, tynk silikonowy Baumit, blacha powlekana Plannja, rynny stalowe Galeco STAL, podbitka z kompozytu Vox.


