Parametry projektu Hiacynt 6
- Pow. użytkowa: 181,34 m²
- Pow. zabudowy (bez podcieni): 186,95 m²
- Min. szerokość działki: 22 m
- Min. długość działki: 25,91 m
- Kondygnacje: parterowy
- Poddasze użytkowe: tak
- Poddasze do adaptacji nie
- Strych: tak
- Piwnica: nie
- Garaż: dwustanowiskowy
- Rodzaj dachu: wielospadowy
- Wysokość domu: 7,68 m
- Szerokość domu: 15 m
- Długość domu: 17,91 m
- Kubatura: 1040 m³
- Nachylenie dachu: 35°
- Rodzaj zabudowy: wolnostojący
- Technologia: murowany
- Styl: nowoczesna elewacja
- Kalenica: obojętnie
- Powierzchnia dachu: 308,25 m²
- Liczba pokoi: 5
- Liczba łazienek: 2
- Kominek: tak
- Współczynnik EP: 67,9 kWh/(m²rok)
- Współczynnik EK: 62,6 kWh/(m²rok)
- Współczynnik EUco: 28,8 kWh/(m²rok)
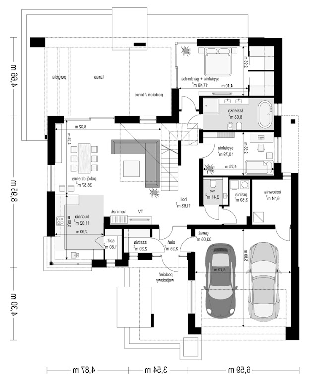
Rzut parteru
Rzut poddasza
Pakiet GRATISÓW do projektu
Dedykowane gratisy do projektu Hiacynt 6! Do zamówienia możesz wybrać do 10 dowolnych gratisów z poniższej listy.
Opis projektu Hiacynt 6
Projekt domu Hiacynt 6 jest wersją wariantową projektu z popularnej serii „Hiacyntów”. Dom został zmodyfikowany w stosunku do wersji bazowej w następujący sposób: zmniejszona została powierzchnia zabudowy i powierzchnia użytkowa, całość rzutu przykryta jest spadzistym dachem – bez płaskiego dachu nad garażem, połacie dachów i ścianki kolankowe zostały uniesione. W rezultacie mamy zupełnie nową odsłonę Hiacynta. Budynek zaprojektowano jako parterowy z użytkowym poddaszem, przykryty wielospadowym symetrycznym dachem. Bryła uformowana jest w kształcie litery „ T”, z wystającym od frontu garażem z podcieniem wejściowym, oraz wychodzącą w stronę ogrodu częścią sypialnianą, formującą z tyłu domu przytulny narożnik tarasu. Architektura domu łączy w sobie nowoczesną bryłę i detale, z tradycyjną kolorystyką czerwonego dachu. To udane połączenie klasyki z nowoczesnością. Elewacje zdobią piękne przeszklenia okien, oraz kontrastujące okładziny ścian z betonu architektonicznego i drewna. Dom mimo swojej niedużej powierzchni, sprawia wrażenie reprezentacyjnej solidnej willi. Wnętrze budynku zaprojektowano, dzieląc je na przestrzeń dzienną parteru z salonem, pokoje sypialne na parterze i na poddaszu, oraz część gospodarczo-garażową przy wejściu do domu. Z przedsionka z szatnią przechodzimy do holu połączonego z salonem i kuchnią. Pokój dzienny z zestawem wypoczynkowym naprzeciwko ściany telewizyjno-kominkowej i wygodnym stołem jadalnym tworzy wspólną przestrzeń wraz z kuchnią, holem z i wyjściem szerokimi drzwiami balkonowymi na taras. Nad salonem zaprojektowano pustkę z antresolą na poddaszu. Za ścianą biegu schodowego umieszczono na parterze sypialnię rodziców z garderobami i łazienką, oraz dodatkowy pokój – gabinet lub sypialnię. Na poddaszu udało się zmieścić trzy pokoje sypialne z łazienką, oraz dodatkowo dużą przestrzeń strychową nad garażem,którą również można zaadaptować na dodatkowy pokój. Hiacynt 6 do budynek energooszczędny, z bardzo dobrymi izolacjami i nowoczesnymi instalacjami – dom będzie niedrogi w późniejszej eksploatacji. To doskonały projekt dla Inwestorów szukających udanego projektu nowoczesnego domu z poddaszem użytkowym. Zapraszamy również do zapoznania się z projektami domów Hiacynt, Hiacynt 2, Hiacynt 3.
Technologia wykonania
- Fundamenty: betonowe ławy i ściany fundamentowe betonowe.
- Ściany zewnętrzne: ściany murowane – pustaki porotherm 25 + styropian.
- Strop: monolityczny betonowy.
- Elewacje: tynk cienkowarstwowy.
- Pokrycie dachu: dachówka.
Koszty budowy
- Stan surowy zamknięty535 364 zł
- Stan deweloperski Economic+183 154 zł
- Stan deweloperski Premium+348 173 zł
Przygotuj się do budowy!
Zamów kosztorys inwestorski i poznaj dokładne koszty materiałów, cen robocizny i innych nakładów.
Stan surowy zamknięty uwzględnia kompletną konstrukcję wraz z elementami zabezpieczającymi budynek przed czynnikami atmosferycznymi. Obiekt jest przygotowany do wykonania kolejnych etapów.
Stan surowy zamknięty obejmuje:
- Fundamenty, ściany nośne i działowe
- Dach, strop, pokrycie dachowe
- Stolarka okienna i drzwiowa zewnętrzna
Wersja ekonomiczna stanu deweloperskiego uwzględnia instalacje, urządzenia i materiały ze średniej półki cenowej, charakteryzujące się standardową jakością.
Stan deweloperski Economic obejmuje:
- Instalacja elektryczna21 761 złkompletna instalacja elektryczna z osprzętem (gniazda, łączniki, rozdzielnica), przewody, puszki, zabezpieczenia.Zastosowane materiały: przewody NKT, osprzęt Simon 10, rozdzielnica Hager Gamma.
- Instalacja sanitarna30 828 złinstalacja wodociągowa, kanalizacyjna i gazowa bez armatury, wentylacja grawitacyjna.Zastosowane materiały: rury PP i PE Wavin, instalacja kanalizacyjna z rur HT+, wentylacja grawitacyjna.
- Instalacja grzewcza47 148 złpompa ciepła + ogrzewanie podłogowe wodne.Zastosowane materiały: pompa ciepła typu split Kaisai Arctic, ogrzewanie podłogowe z rurami Tece.
- Wykończenie wewnętrzne43 522 złtynki wewnętrzne gipsowe + wylewki cementowe. Bez gładzi, farb, podłóg i drzwi.Zastosowane materiały: tynki gipsowe Knauf MP75, wylewki cementowe miksokret Atlas Posadzka 20.
- Wykończenie zewnętrzne39 895 złelewacja z ociepleniem, tynki, parapety, obróbki blacharskie, rynny i rury spustowe.Zastosowane materiały: styropian EPS 70-040 (np. Swisspor), tynk akrylowy Atlas, blacha powlekana Plannja, rynny PCV Bryza.
Wersja premium stanu deweloperskiego uwzględnia instalacje, urządzenia i materiały z wyższej półki cenowej, wyróżniające się najwyższą jakością w obrębie grupy produktowej.
Stan deweloperski Premium obejmuje:
- Instalacja elektryczna45 335 złkompletna instalacja elektryczna z osprzętem (gniazda, łączniki, rozdzielnica), przewody, puszki, zabezpieczenia.Zastosowane materiały: przewody LappKabel, osprzęt Simon 55, Legrand Valena Life, rozdzielnica Schneider Electric.
- Instalacja sanitarna67 096 złinstalacja wodociągowa, kanalizacyjna i gazowa bez armatury, wentylacja grawitacyjna.Zastosowane materiały: rury wielowarstwowe Uponor, kanalizacja niskoszumowa Wavin AS, wentylacja mechaniczna z odzyskiem ciepła LWZ 180 Stiebel Eltron.
- Instalacja grzewcza94 297 złpompa ciepła + ogrzewanie podłogowe wodne.Zastosowane materiały: pompa ciepła Stiebel Eltron HPA 8kW Plus Flex, ogrzewanie podłogowe z rozdzielaczami Herz, sterowanie Salus/Heatmiser.
- Wykończenie wewnętrzne58 029 złtynki wewnętrzne gipsowe + wylewki cementowe. Bez gładzi, farb, podłóg i drzwi.Zastosowane materiały: tynki cementowo-wapienne Baumit MPI25, wylewki anhydrytowe Knauf FE 80.
- Wykończenie zewnętrzne83 416 złelewacja z ociepleniem, tynki, parapety, obróbki blacharskie, rynny i rury spustowe.Zastosowane materiały: styropian grafitowy Termo Organika, tynk silikonowy Baumit, blacha powlekana Plannja, rynny stalowe Galeco STAL, podbitka z kompozytu Vox.
Warianty
- Hiacynt
- Pow. użytkowa:210,18 m²
- Technologia:murowany
- Garaż:dwustanowiskowy
- Min. wymiary działki:26,46 x 24,19 m
- Hiacynt 2
- Pow. użytkowa:161,97 m²
- Technologia:murowany
- Garaż:dwustanowiskowy
- Min. wymiary działki:29,08 x 24,19 m
- Hiacynt 4
- Pow. użytkowa:184,58 m²
- Technologia:murowany
- Garaż:dwustanowiskowy
- Min. wymiary działki:25,71 x 22,5 m
- Hiacynt wariant B
- Pow. użytkowa:210,54 m²
- Technologia:murowany
- Garaż:dwustanowiskowy
- Min. wymiary działki:26,46 x 24,19 m
- Hiacynt 5
- Pow. użytkowa:146,29 m²
- Technologia:murowany
- Garaż:dwustanowiskowy
- Min. wymiary działki:29,51 x 22 m
- Hiacynt 3
- Pow. użytkowa:156,83 m²
- Technologia:murowany
- Garaż:dwustanowiskowy
- Min. wymiary działki:25,41 x 22 m
- Hiacynt 7
- Pow. użytkowa:180,43 m²
- Technologia:murowany
- Garaż:dwustanowiskowy
- Min. wymiary działki:22,53 x 23,88 m
- Hiacynt 7 B
- Pow. użytkowa:180,37 m²
- Technologia:murowany
- Garaż:dwustanowiskowy
- Min. wymiary działki:22,53 x 23,88 m
- Hiacynt 8
- Pow. użytkowa:222,33 m²
- Technologia:murowany
- Garaż:dwustanowiskowy
- Min. wymiary działki:22,53 x 24,08 m


