Parametry projektu Domek Mały szkielet drewniany 004 ES
- Pow. użytkowa: 83,95 m²
- Pow. zabudowy: 66,35 m²
- Min. szerokość działki: 14,34 m
- Min. długość działki: 17,04 m
- Kondygnacje: parterowy
- Poddasze użytkowe: tak
- Poddasze do adaptacji nie
- Strych: nie
- Piwnica: nie
- Garaż: bez garażu
- Rodzaj dachu: dwuspadowy
- Wysokość domu: 8,01 m
- Szerokość domu: 7,34 m
- Długość domu: 9,04 m
- Kubatura: 397,36 m³
- Nachylenie dachu: 45°
- Rodzaj zabudowy: wolnostojący
- Technologia: drewniany - szkielet
- Styl: tradycyjny
- Kalenica: prostopadła do drogi
- Liczba pokoi: 4
- Liczba łazienek: 2
- Kominek: tak
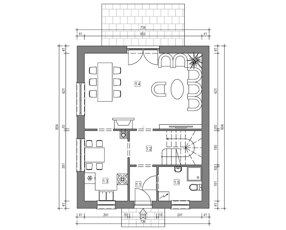
Rzut parteru
Rzut poddasza
Pakiet GRATISÓW do projektu
Dedykowane gratisy do projektu Domek Mały szkielet drewniany 004 ES! Do zamówienia możesz wybrać do 10 dowolnych gratisów z poniższej listy.
Opis projektu Domek Mały szkielet drewniany 004 ES
Polecamy Państwu projekt Domek Mały szkielet drewniany. Atutem projektu jest niewysoki koszt jego realizacji. Budynek zaprojektowano w technologii szkieletu drewnianego, wybierając proste rozwiązania i rezygnując z niepotrzebnych detali architektonicznych. Domek Mały posiada więc podstawę w kształcie prostokąta i dwuspadowy dach. Takie połączenie rozwiązań konstrukcyjnych gwarantuje, że jego budowa przebiegnie sprawnie i nie pochłonie wysokich nakładów finansowych. Zwarta bryła będzie też nietrudna do skutecznego ogrzania.
W projekcie Domek Mały szkielet drewniany układ funkcjonalny zaplanowano tak, aby jak najlepiej wykorzystać całą dostępną powierzchnię użytkową. W efekcie stworzono interesujące i wygodne mieszkanie, idealne dla czteroosobowej rodziny, zwłaszcza preferującej bardziej tradycyjny układ pomieszczeń. W tym projekcie kuchnię umieszczono bowiem tuż obok pokoju dziennego i przewidziano ją jako osobne pomieszczenie. Taki układ wnętrz docenią rodziny, które kładą kładą nacisk na rozdzielenie reprezentacyjnego salonu od strefy roboczej. W kuchni wyznaczono miejsce na kącik jadalniany. Na parterze zaplanowano ponadto łazienkę, która jest dostępna z przedsionka. Pozostałą cześć dolnej kondygnacji zajmuje wygodny pokój dzienny z niezastąpionym kominkiem oraz wyjściem na przyjemny taras.
Poddasze przeznaczono na strefę o charakterze prywatnym. Wydzielono tutaj trzy ustawne, przytulne sypialnie. Wszystkie pokoje posiadają dostęp do balkonów, a w korytarzu umieszczono wejście do rodzinnej łazienki z wanną.
Koszty budowy
- Stan surowy zamknięty221 628 zł
- Stan deweloperski Economic+84 790 zł
- Stan deweloperski Premium+161 185 zł
Przygotuj się do budowy!
Zamów kosztorys inwestorski i poznaj dokładne koszty materiałów, cen robocizny i innych nakładów.
Stan surowy zamknięty uwzględnia kompletną konstrukcję wraz z elementami zabezpieczającymi budynek przed czynnikami atmosferycznymi. Obiekt jest przygotowany do wykonania kolejnych etapów.
Stan surowy zamknięty obejmuje:
- Fundamenty, ściany nośne i działowe
- Dach, strop, pokrycie dachowe
- Stolarka okienna i drzwiowa zewnętrzna
Wersja ekonomiczna stanu deweloperskiego uwzględnia instalacje, urządzenia i materiały ze średniej półki cenowej, charakteryzujące się standardową jakością.
Stan deweloperski Economic obejmuje:
- Instalacja elektryczna10 074 złkompletna instalacja elektryczna z osprzętem (gniazda, łączniki, rozdzielnica), przewody, puszki, zabezpieczenia.Zastosowane materiały: przewody NKT, osprzęt Simon 10, rozdzielnica Hager Gamma.
- Instalacja sanitarna14 272 złinstalacja wodociągowa, kanalizacyjna i gazowa bez armatury, wentylacja grawitacyjna.Zastosowane materiały: rury PP i PE Wavin, instalacja kanalizacyjna z rur HT+, wentylacja grawitacyjna.
- Instalacja grzewcza21 827 złpompa ciepła + ogrzewanie podłogowe wodne.Zastosowane materiały: pompa ciepła typu split Kaisai Arctic, ogrzewanie podłogowe z rurami Tece.
- Wykończenie wewnętrzne20 148 złtynki wewnętrzne gipsowe + wylewki cementowe. Bez gładzi, farb, podłóg i drzwi.Zastosowane materiały: tynki gipsowe Knauf MP75, wylewki cementowe miksokret Atlas Posadzka 20.
- Wykończenie zewnętrzne18 469 złelewacja z ociepleniem, tynki, parapety, obróbki blacharskie, rynny i rury spustowe.Zastosowane materiały: styropian EPS 70-040 (np. Swisspor), tynk akrylowy Atlas, blacha powlekana Plannja, rynny PCV Bryza.
Wersja premium stanu deweloperskiego uwzględnia instalacje, urządzenia i materiały z wyższej półki cenowej, wyróżniające się najwyższą jakością w obrębie grupy produktowej.
Stan deweloperski Premium obejmuje:
- Instalacja elektryczna20 988 złkompletna instalacja elektryczna z osprzętem (gniazda, łączniki, rozdzielnica), przewody, puszki, zabezpieczenia.Zastosowane materiały: przewody LappKabel, osprzęt Simon 55, Legrand Valena Life, rozdzielnica Schneider Electric.
- Instalacja sanitarna31 062 złinstalacja wodociągowa, kanalizacyjna i gazowa bez armatury, wentylacja grawitacyjna.Zastosowane materiały: rury wielowarstwowe Uponor, kanalizacja niskoszumowa Wavin AS, wentylacja mechaniczna z odzyskiem ciepła LWZ 180 Stiebel Eltron.
- Instalacja grzewcza43 654 złpompa ciepła + ogrzewanie podłogowe wodne.Zastosowane materiały: pompa ciepła Stiebel Eltron HPA 8kW Plus Flex, ogrzewanie podłogowe z rozdzielaczami Herz, sterowanie Salus/Heatmiser.
- Wykończenie wewnętrzne26 864 złtynki wewnętrzne gipsowe + wylewki cementowe. Bez gładzi, farb, podłóg i drzwi.Zastosowane materiały: tynki cementowo-wapienne Baumit MPI25, wylewki anhydrytowe Knauf FE 80.
- Wykończenie zewnętrzne38 617 złelewacja z ociepleniem, tynki, parapety, obróbki blacharskie, rynny i rury spustowe.Zastosowane materiały: styropian grafitowy Termo Organika, tynk silikonowy Baumit, blacha powlekana Plannja, rynny stalowe Galeco STAL, podbitka z kompozytu Vox.


