Pow. użytkowa
162,71 m²
Pokoje
5
Łazienki
2
Garaż
2
Pow. zabudowy
253,34 m²
Koszt SSZ
534 622 zł
Kąt dachu
25°
6 000 zł
Dostępność: 3 - 5 dni roboczych
Co zawiera projekt?
Zawartość projektu obejmuje pełną dokumentację zgodną z aktualnym prawem budowlanym oraz pakiet bezpłatnych dodatków.
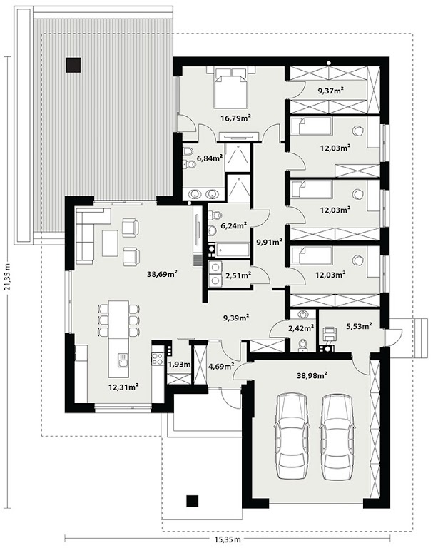
Dowiedz się więcejRzut parteru 154,67 m²
Rzut parteru 154,67 m²
| 1. Wiatrołap | 4,69 m² |
| 2. Hol | 9,39 m² |
| 3. Salon | 38,69 m² |
| 4. Kuchnia | 12,31 m² |
| 5. Spiżarnia | 1,93 m² |
| 6. Korytarz | 9,91 m² |
| 7. Pralnia | 2,51 m² |
| 8. Łazienka | 6,24 m² |
| 9. Sypialnia | 16,79 m² |
| 10. Garderoba | 9,37 m² |
| 11. Łazienka | 6,84 m² |
| 12. Pokój | 12,03 m² |
| 13. Pokój | 12,03 m² |
| 14. Pokój | 12,03 m² |
| 15. WC | 2,42 m² |
| 16. Kotłownia | 5,53 m² |
| 17. Garaż | 38,98 m² |
Chcesz wprowadzić zmiany w projekcie?
Zapytaj naszego Doradcę o możliwe modyfikacje. Ekspert przeanalizuje ich opłacalność i podpowie, co warto zmienić w Twoim projekcie.
Asan 2 to parterowy dom jednorodzinny, niepodpiwniczony z dwustanowiskowym garażem. Swoim pełnym programem funkcjonalnym zapewnia komfort i wygodę nawet 5-osobowej rodzinie. Przestronna część dzienna to salon otwierający się na ogród poprzez ogromne przeszklenia, kuchnia połączona z jadalnią oraz spiżarnią i wc. Część nocna to 4 wygodne sypialnie i łazienka. Dodatkowo główna sypialnia posiada własną garderobę i łazienkę. W domu zaprojektowano dużą kotłownię dostępną z garażu, której parametry pozwalają na montaż kotła na każdy rodzaj paliwa, w tym na paliwo stałe. Część gospodarczą uzupełnia jeszcze pralnia i dwustanowiskowy garaż. Ten optymalny i ciekawy program funkcjonalny został ujęty w prostej bryle na rzucie litery T, przykrytej wielospadowym dachem. Atutem projektu jest jego prostota zarówno w układzie pomieszczeń, jak i w rozwiązaniach elewacji, gdzie elegancki, nowoczesny styl osiągnięto poprzez klasyczne, proste ale szlachetne materiały oraz delikatny, subtelny detal.
Zadzwoń 52 384 49 90 lub
Zamów kosztorys inwestorski i poznaj dokładne koszty materiałów, cen robocizny i innych nakładów.
Stan surowy zamknięty uwzględnia kompletną konstrukcję wraz z elementami zabezpieczającymi budynek przed czynnikami atmosferycznymi. Obiekt jest przygotowany do wykonania kolejnych etapów.
Stan surowy zamknięty obejmuje:
Wersja ekonomiczna stanu deweloperskiego uwzględnia instalacje, urządzenia i materiały ze średniej półki cenowej, charakteryzujące się standardową jakością.
Stan deweloperski Economic obejmuje:
Wersja premium stanu deweloperskiego uwzględnia instalacje, urządzenia i materiały z wyższej półki cenowej, wyróżniające się najwyższą jakością w obrębie grupy produktowej.
Stan deweloperski Premium obejmuje:
Kupujesz projekt domu, dostajesz wsparcie warte tysiące złotych. Konkretne rabaty w sklepach budowlanych, konsultacje z ekspertami oraz atrakcyjne wyceny, które realnie obniżą koszty budowy Twojego domu. Wybierz maksymalnie 10 dodatków i zacznij budowę z przewagą, jaką daje tylko Tooba.pl.



Buduj świadomie od pierwszego kroku. Płatne dodatki pozwalają rozwinąć projekt o dodatkowe opracowania, które wspierają proces budowy i ograniczają ryzyko błędów. Wybierz rozwiązania, które dają Ci większą kontrolę nad kosztami, harmonogramem i przebiegiem inwestycji.
Jesteśmy dla Ciebie dostępni:
pon. – pt.
8:00 – 20:00
Zależy Ci na kontakcie z Doradcą w konkretnym terminie?
Wolisz kontakt mailowy? Nie ma problemu, czekamy na Twoją wiadomość!