Parametry projektu Sosnówka II bez garażu B
- Pow. użytkowa: 116,9 m²
- Pow. zabudowy: 90,4 m²
- Min. szerokość działki: 18 m
- Min. długość działki: 17,1 m
- Kondygnacje: parterowy
- Poddasze użytkowe: tak
- Poddasze do adaptacji nie
- Strych: nie
- Piwnica: nie
- Garaż: bez garażu
- Rodzaj dachu: dwuspadowy
- Wysokość domu: 9,5 m
- Szerokość domu: 10 m
- Długość domu: 9,1 m
- Nachylenie dachu: 45°
- Rodzaj zabudowy: wolnostojący
- Technologia: murowany
- Styl: tradycyjny
- Kalenica: równoległa do drogi
- Powierzchnia dachu: 178,8 m²
- Liczba pokoi: 5
- Liczba łazienek: 2
- Kominek: tak
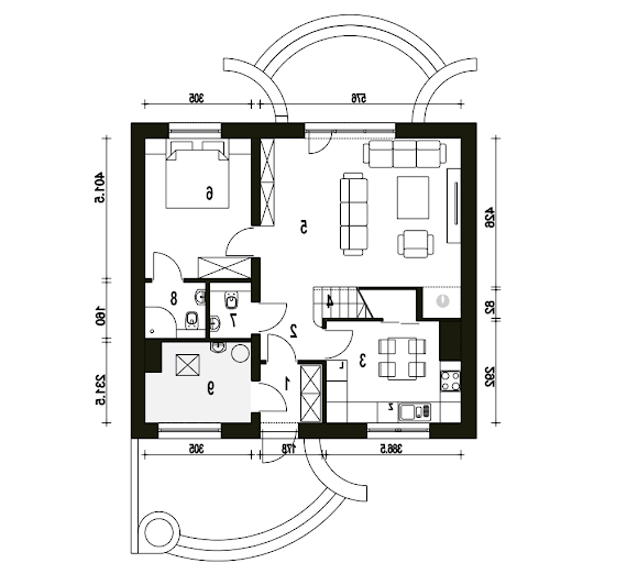
Rzut parteru
Rzut poddasza
| powierzchnia | 54,10 m² | ||
| powierzchnia po podłodze | 65,70 m² | ||
| 10. | Hol | 8,00 m² | (8,00 m²) |
| 11. | Sypialnia | 12,80 m² | (16,80 m²) |
| 12. | Sypialnia | 11,20 m² | (13,30 m²) |
| 13. | Sypialnia | 10,70 m² | (12,80 m²) |
| 14. | Pralnia | 4,10 m² | (5,20 m²) |
| 15. | Łazienka | 7,30 m² | (9,60 m²) |
powierzchnia pomieszczenia po podłodze
Pakiet GRATISÓW do projektu
Dedykowane gratisy do projektu Sosnówka II bez garażu B! Do zamówienia możesz wybrać do 10 dowolnych gratisów z poniższej listy.
Opis projektu Sosnówka II bez garażu B
Dom Sosnówka II zaprojektowano na rzucie prostokąta, gdzie kalenica jest równoległa względem elewacji frontowej. Doskonale wpisze się na nieduże działki o średniej wielkości i ze względu na typowy kształt będzie się dobrze komponował w każdym otoczeniu.
Technologia wykonania
Koszty budowy
- Stan surowy zamknięty296 926 zł
- Stan deweloperski Economic+118 069 zł
- Stan deweloperski Premium+224 448 zł
Przygotuj się do budowy!
Zamów kosztorys inwestorski i poznaj dokładne koszty materiałów, cen robocizny i innych nakładów.
Stan surowy zamknięty uwzględnia kompletną konstrukcję wraz z elementami zabezpieczającymi budynek przed czynnikami atmosferycznymi. Obiekt jest przygotowany do wykonania kolejnych etapów.
Stan surowy zamknięty obejmuje:
- Fundamenty, ściany nośne i działowe
- Dach, strop, pokrycie dachowe
- Stolarka okienna i drzwiowa zewnętrzna
Wersja ekonomiczna stanu deweloperskiego uwzględnia instalacje, urządzenia i materiały ze średniej półki cenowej, charakteryzujące się standardową jakością.
Stan deweloperski Economic obejmuje:
- Instalacja elektryczna14 028 złkompletna instalacja elektryczna z osprzętem (gniazda, łączniki, rozdzielnica), przewody, puszki, zabezpieczenia.Zastosowane materiały: przewody NKT, osprzęt Simon 10, rozdzielnica Hager Gamma.
- Instalacja sanitarna19 873 złinstalacja wodociągowa, kanalizacyjna i gazowa bez armatury, wentylacja grawitacyjna.Zastosowane materiały: rury PP i PE Wavin, instalacja kanalizacyjna z rur HT+, wentylacja grawitacyjna.
- Instalacja grzewcza30 394 złpompa ciepła + ogrzewanie podłogowe wodne.Zastosowane materiały: pompa ciepła typu split Kaisai Arctic, ogrzewanie podłogowe z rurami Tece.
- Wykończenie wewnętrzne28 056 złtynki wewnętrzne gipsowe + wylewki cementowe. Bez gładzi, farb, podłóg i drzwi.Zastosowane materiały: tynki gipsowe Knauf MP75, wylewki cementowe miksokret Atlas Posadzka 20.
- Wykończenie zewnętrzne25 718 złelewacja z ociepleniem, tynki, parapety, obróbki blacharskie, rynny i rury spustowe.Zastosowane materiały: styropian EPS 70-040 (np. Swisspor), tynk akrylowy Atlas, blacha powlekana Plannja, rynny PCV Bryza.
Wersja premium stanu deweloperskiego uwzględnia instalacje, urządzenia i materiały z wyższej półki cenowej, wyróżniające się najwyższą jakością w obrębie grupy produktowej.
Stan deweloperski Premium obejmuje:
- Instalacja elektryczna29 225 złkompletna instalacja elektryczna z osprzętem (gniazda, łączniki, rozdzielnica), przewody, puszki, zabezpieczenia.Zastosowane materiały: przewody LappKabel, osprzęt Simon 55, Legrand Valena Life, rozdzielnica Schneider Electric.
- Instalacja sanitarna43 253 złinstalacja wodociągowa, kanalizacyjna i gazowa bez armatury, wentylacja grawitacyjna.Zastosowane materiały: rury wielowarstwowe Uponor, kanalizacja niskoszumowa Wavin AS, wentylacja mechaniczna z odzyskiem ciepła LWZ 180 Stiebel Eltron.
- Instalacja grzewcza60 788 złpompa ciepła + ogrzewanie podłogowe wodne.Zastosowane materiały: pompa ciepła Stiebel Eltron HPA 8kW Plus Flex, ogrzewanie podłogowe z rozdzielaczami Herz, sterowanie Salus/Heatmiser.
- Wykończenie wewnętrzne37 408 złtynki wewnętrzne gipsowe + wylewki cementowe. Bez gładzi, farb, podłóg i drzwi.Zastosowane materiały: tynki cementowo-wapienne Baumit MPI25, wylewki anhydrytowe Knauf FE 80.
- Wykończenie zewnętrzne53 774 złelewacja z ociepleniem, tynki, parapety, obróbki blacharskie, rynny i rury spustowe.Zastosowane materiały: styropian grafitowy Termo Organika, tynk silikonowy Baumit, blacha powlekana Plannja, rynny stalowe Galeco STAL, podbitka z kompozytu Vox.
Warianty
- Sosnówka II z garażem 1-st. A
- Pow. użytkowa:116,9 m²
- Technologia:murowany
- Garaż:jednostanowiskowy
- Min. wymiary działki:17,1 x 21,6 m
- Sosnówka II bez garażu B-BL2
- Pow. użytkowa:233,8 m²
- Technologia:murowany
- Garaż:bez garażu
- Min. wymiary działki:17,1 x 34,9 m
- Sosnówka II bez garażu bliźniak B-BL1
- Pow. użytkowa:233,8 m²
- Technologia:murowany
- Garaż:bez garażu
- Min. wymiary działki:17,1 x 34,9 m
- Sosnówka II z wiatą A1
- Pow. użytkowa:116,9 m²
- Technologia:murowany
- Garaż:wiata garażowa
- Min. wymiary działki:17,1 x 19,1 m
- Sosnówka II z garażem 1-st. bliźniak A-BL1
- Pow. użytkowa:233,8 m²
- Technologia:murowany
- Garaż:jednostanowiskowy
- Min. wymiary działki:17,1 x 34,9 m
- Sosnówka II z garażem 1-st. bliźniak A-BL2
- Pow. użytkowa:233,8 m²
- Technologia:murowany
- Garaż:jednostanowiskowy
- Min. wymiary działki:17,1 x 34,8 m


