Pow. użytkowa
117,18 m²
Pokoje
3
Łazienki
2
Garaż
1
Pow. zabudowy
115,51 m²
Koszt SSZ
327 637 zł
Kąt dachu
45°
4 500 zł
Dostępność: 3 - 5 dni roboczych
Co zawiera projekt?
Zawartość projektu obejmuje pełną dokumentację zgodną z aktualnym prawem budowlanym oraz pakiet bezpłatnych dodatków.
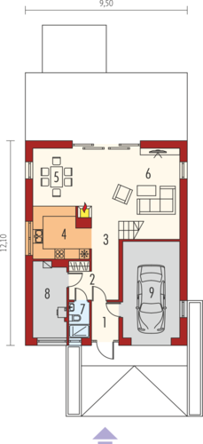
Dowiedz się więcejRzut parteru 63,56 m²
Chcesz wprowadzić zmiany w projekcie?
Zapytaj naszego Doradcę o możliwe modyfikacje. Ekspert przeanalizuje ich opłacalność i podpowie, co warto zmienić w Twoim projekcie.
Noel G1 to dom, zaprojektowany w duchu nowoczesnego minimalizmu. Charakter budynku tworzy dyscyplina geometrii i ascetyczna kompozycja elewacji. Zwarta bryła i prosty dwuspadowy dach minimalizują ryzyko występowania mostków termicznych i sprawiają, że budynek wyróżniają bardzo dobre parametry cieplne. Ciekawym elementem architektury domu jest zastosowanie drewnianej, ażurowej osłony, która zdobi elewację frontową, a jednocześnie tworzy przytulną, kameralnąatmosferę tarasu. Od strony ogrodowej zaplanowano bogate przeszklenia, które maksymalnie otwierają dom na piękne widoki, tworząc wrażenie, że zieleń krzewów i roślin jest częścią wystroju wnętrza.
Zadzwoń 52 384 49 90 lub
Zamów kosztorys inwestorski i poznaj dokładne koszty materiałów, cen robocizny i innych nakładów.
Stan surowy zamknięty uwzględnia kompletną konstrukcję wraz z elementami zabezpieczającymi budynek przed czynnikami atmosferycznymi. Obiekt jest przygotowany do wykonania kolejnych etapów.
Stan surowy zamknięty obejmuje:
Wersja ekonomiczna stanu deweloperskiego uwzględnia instalacje, urządzenia i materiały ze średniej półki cenowej, charakteryzujące się standardową jakością.
Stan deweloperski Economic obejmuje:
Wersja premium stanu deweloperskiego uwzględnia instalacje, urządzenia i materiały z wyższej półki cenowej, wyróżniające się najwyższą jakością w obrębie grupy produktowej.
Stan deweloperski Premium obejmuje:
Kupujesz projekt domu, dostajesz wsparcie warte tysiące złotych. Konkretne rabaty w sklepach budowlanych, konsultacje z ekspertami oraz atrakcyjne wyceny, które realnie obniżą koszty budowy Twojego domu. Wybierz maksymalnie 10 dodatków i zacznij budowę z przewagą, jaką daje tylko Tooba.pl.



Buduj świadomie od pierwszego kroku. Płatne dodatki pozwalają rozwinąć projekt o dodatkowe opracowania, które wspierają proces budowy i ograniczają ryzyko błędów. Wybierz rozwiązania, które dają Ci większą kontrolę nad kosztami, harmonogramem i przebiegiem inwestycji.
Jesteśmy dla Ciebie dostępni:
pon. – pt.
8:00 – 20:00
Zależy Ci na kontakcie z Doradcą w konkretnym terminie?
Wolisz kontakt mailowy? Nie ma problemu, czekamy na Twoją wiadomość!