Parametry projektu Niki II G1 Energo
- Pow. użytkowa: 134,05 m²
- Pow. zabudowy: 140,82 m²
- Min. szerokość działki: 23,3 m
- Min. długość działki: 20 m
- Kondygnacje: parterowy
- Poddasze użytkowe: tak
- Poddasze do adaptacji nie
- Strych: nie
- Piwnica: nie
- Garaż: jednostanowiskowy
- Rodzaj dachu: dwuspadowy
- Wysokość domu: 8,36 m
- Szerokość domu: 15,8 m
- Długość domu: 9,9 m
- Kubatura: 528,44 m³
- Nachylenie dachu: 38°
- Rodzaj zabudowy: wolnostojący
- Technologia: murowany
- Styl: nowoczesna elewacja
- Kalenica: równoległa do drogi
- Powierzchnia dachu: 192 m²
- Liczba pokoi: 3
- Liczba łazienek: 2
- Kominek: tak
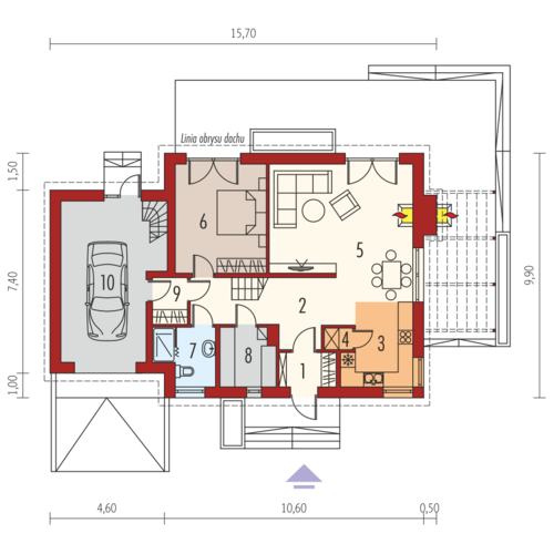
Rzut parteru
Rzut poddasza
Pakiet GRATISÓW do projektu
Dedykowane gratisy do projektu Niki II G1 Energo! Do zamówienia możesz wybrać do 10 dowolnych gratisów z poniższej listy.
Opis projektu Niki II G1 Energo
Jeśli są Państwo zainteresowani budową wygodnego domu, który wyróżni się nie tylko swą funkcjonalnością i przytulnością, ale także prostą, nowoczesną architekturą, to Państwa uwadze polecamy projekt Niki II G1 Energo. Ta propozycja zyska uznanie Inwestorów, którym zależy na sprawnym przebiegu budowy oraz jej niskich kosztach. Dzięki zastosowanym rozwiązaniom technologicznym i konstrukcyjnym Niki II G1 Energo okaże się bardzo ekonomicznym wyborem także na etapie eksploatacji budynku, bowiem jego bryła sprzyja zastosowaniu instalacji energooszczędnych.
Projekt domu o gustownej elewacji
Jednocześnie dom zachwyca gustowną kompozycją elewacji, w której jasny kolor tynku ożywiono naturalną barwą drewna. Na dwuspadowym dachu zaplanowano okna połaciowe, które doskonale doświetlą wnętrza na poddaszu.
Praktycznie przestrzenie w projekcie domu
Pierwszym pomieszczeniem, w którym znajdziemy się po przekroczeniu progu domu Niki II G1 Energo jest wiatrołap, z miejscem na pojemne szafy. Na lewo od sieni znajduje się kotłownia, następnie łazienka, a naprzeciwko niej - sypialnia. Korytarz został bezpośrednio skomunikowany z garażem, co z pewnością ułatwi codzienne obowiązki. Korzystnym rozwiązaniem jest także wyposażenie garażu w dodatkowe wyjście, prowadzące wprost do ogrodu. Na prawo od wiatrołapu znajduje się salon wypoczynkowy z kominkiem, połączony z kuchnią. Praktycznym uzupełnieniem tej ostatniej jest pojemna spiżarka.
Salon z dużymi przeszkleniami, który otwiera się na taras
Salon, poprzez szerokie przeszklenia, otwiera się na przestronny taras, częściowo osłonięty szykowną pergolą. Dodatkowym atutem tej przestrzeni jest zewnętrzny kominek, który może umilić niejeden wieczór na świeżym powietrzu. Na poddaszu wydzielono dwie wygodne sypialnie, pomieszczenie gospodarcze oraz ogólnodostępną łazienkę. Przestrzeń nad garażem idealnie sprawdzi się jako strych lub magazynek.
Taras sprawdzi się jako miejsce codziennego relaksu, spotkań z przyjaciółmi czy organizacji przyjęć. Nic nie stoi na przeszkodzie, by przenieść na zewnątrz jadalnię, np. na lato. Istnieje możliwość zbliźniaczenia lub podpiwniczenia budynku (oraz wybór lustrzanego odbicia każdej z wersji).
Technologia wykonania
- Technologia: murowana, ściany zewnętrzne dwuwarstwowe z betonu komórkowego firmy H+H
- Ściany zewnętrzne: dwuwarstwowe; izolacja – 20 cm warstwa wełny mineralnej,
- Dach i strop nad poddaszem: izolacja – 30 cm warstwa wełny mineralnej
- Podłoga na gruncie: izolacja – 15 cm warstwa styropianu
- Strop: gęstożebrowy
- Schody wewnętrzne: drewniane
- Dach: o konstrukcji drewnianej pokryto dachówką płaską lub inną o podobnych parametrach
- Elewacje: tynk cienkowarstwowy mineralny oraz okładzina kamienna i klinkierowa
- Stolarka okienna: drewniana, PCV lub aluminiowa
Koszty budowy
- Stan surowy zamknięty370 487 zł
- Stan deweloperski Economic+135 391 zł
- Stan deweloperski Premium+257 377 zł
Przygotuj się do budowy!
Zamów kosztorys inwestorski i poznaj dokładne koszty materiałów, cen robocizny i innych nakładów.
Stan surowy zamknięty uwzględnia kompletną konstrukcję wraz z elementami zabezpieczającymi budynek przed czynnikami atmosferycznymi. Obiekt jest przygotowany do wykonania kolejnych etapów.
Stan surowy zamknięty obejmuje:
- Fundamenty, ściany nośne i działowe
- Dach, strop, pokrycie dachowe
- Stolarka okienna i drzwiowa zewnętrzna
Wersja ekonomiczna stanu deweloperskiego uwzględnia instalacje, urządzenia i materiały ze średniej półki cenowej, charakteryzujące się standardową jakością.
Stan deweloperski Economic obejmuje:
- Instalacja elektryczna16 086 złkompletna instalacja elektryczna z osprzętem (gniazda, łączniki, rozdzielnica), przewody, puszki, zabezpieczenia.Zastosowane materiały: przewody NKT, osprzęt Simon 10, rozdzielnica Hager Gamma.
- Instalacja sanitarna22 789 złinstalacja wodociągowa, kanalizacyjna i gazowa bez armatury, wentylacja grawitacyjna.Zastosowane materiały: rury PP i PE Wavin, instalacja kanalizacyjna z rur HT+, wentylacja grawitacyjna.
- Instalacja grzewcza34 853 złpompa ciepła + ogrzewanie podłogowe wodne.Zastosowane materiały: pompa ciepła typu split Kaisai Arctic, ogrzewanie podłogowe z rurami Tece.
- Wykończenie wewnętrzne32 172 złtynki wewnętrzne gipsowe + wylewki cementowe. Bez gładzi, farb, podłóg i drzwi.Zastosowane materiały: tynki gipsowe Knauf MP75, wylewki cementowe miksokret Atlas Posadzka 20.
- Wykończenie zewnętrzne29 491 złelewacja z ociepleniem, tynki, parapety, obróbki blacharskie, rynny i rury spustowe.Zastosowane materiały: styropian EPS 70-040 (np. Swisspor), tynk akrylowy Atlas, blacha powlekana Plannja, rynny PCV Bryza.
Wersja premium stanu deweloperskiego uwzględnia instalacje, urządzenia i materiały z wyższej półki cenowej, wyróżniające się najwyższą jakością w obrębie grupy produktowej.
Stan deweloperski Premium obejmuje:
- Instalacja elektryczna33 513 złkompletna instalacja elektryczna z osprzętem (gniazda, łączniki, rozdzielnica), przewody, puszki, zabezpieczenia.Zastosowane materiały: przewody LappKabel, osprzęt Simon 55, Legrand Valena Life, rozdzielnica Schneider Electric.
- Instalacja sanitarna49 599 złinstalacja wodociągowa, kanalizacyjna i gazowa bez armatury, wentylacja grawitacyjna.Zastosowane materiały: rury wielowarstwowe Uponor, kanalizacja niskoszumowa Wavin AS, wentylacja mechaniczna z odzyskiem ciepła LWZ 180 Stiebel Eltron.
- Instalacja grzewcza69 706 złpompa ciepła + ogrzewanie podłogowe wodne.Zastosowane materiały: pompa ciepła Stiebel Eltron HPA 8kW Plus Flex, ogrzewanie podłogowe z rozdzielaczami Herz, sterowanie Salus/Heatmiser.
- Wykończenie wewnętrzne42 896 złtynki wewnętrzne gipsowe + wylewki cementowe. Bez gładzi, farb, podłóg i drzwi.Zastosowane materiały: tynki cementowo-wapienne Baumit MPI25, wylewki anhydrytowe Knauf FE 80.
- Wykończenie zewnętrzne61 663 złelewacja z ociepleniem, tynki, parapety, obróbki blacharskie, rynny i rury spustowe.Zastosowane materiały: styropian grafitowy Termo Organika, tynk silikonowy Baumit, blacha powlekana Plannja, rynny stalowe Galeco STAL, podbitka z kompozytu Vox.
Warianty
- Niki G1 wersja A Energo
- Pow. użytkowa:115,06 m²
- Technologia:murowany
- Garaż:jednostanowiskowy
- Min. wymiary działki:19,2 x 22,2 m


