Parametry projektu EX 16 II G1
- Pow. użytkowa: 149,23 m²
- Pow. zabudowy: 172,6 m²
- Min. szerokość działki: 24,5 m
- Min. długość działki: 23,3 m
- Kondygnacje: parterowy
- Poddasze użytkowe: tak
- Poddasze do adaptacji nie
- Strych: nie
- Piwnica: nie
- Garaż: jednostanowiskowy
- Rodzaj dachu: dwuspadowy
- Wysokość domu: 8,92 m
- Szerokość domu: 15,1 m
- Długość domu: 13,3 m
- Kubatura: 566,59 m³
- Nachylenie dachu: 45°
- Rodzaj zabudowy: wolnostojący
- Technologia: murowany
- Styl: nowoczesny
- Kalenica: prostopadła do drogi
- Powierzchnia dachu: 252,1 m²
- Liczba pokoi: 4
- Liczba łazienek: 2
- Kominek: tak
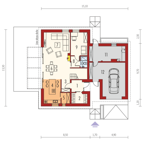
Rzut parteru
Rzut poddasza
Pakiet GRATISÓW do projektu
Dedykowane gratisy do projektu EX 16 II G1! Do zamówienia możesz wybrać do 10 dowolnych gratisów z poniższej listy.
Opis projektu EX 16 II G1
Charakterystyka: dom parterowy z poddaszem użytkowym, niepodpiwniczony
Przeznaczenie: dom dla 3-5-osobowej rodziny
Układ funkcjonalny:
Dla domu z poddaszem użytkowym:
Strefa dzienna – parter: salon z jadalnią i kominkiem oraz kuchnia
Dodatkowo na parterze: spiżarnia, łazienka, gabinet, garderoba, duże pomieszczenie techniczne
Strefa nocna – poddasze: dwie komfortowe sypialnie, duża sypialnia główna wraz z garderobą oraz łazienka
Dodatkowo na poddaszu: garderoba
Budynek zaprojektowano jako wysoko energooszczędny, wyposażony w wentylację mechaniczną z rekuperacją. W projekcie przewidziano również system solarny.
Technologia wykonania
Fundamenty: ławy, bloczki betonowe 24 cm, ocieplenie styropian 15 cm
Ściany zewnętrzne: murowane, dwuwarstwowe, ceramiczne 24 cm, ocieplenie 20 cm
Ściany wewnętrzne: murowane, ściany nośne 24 cm, ścianki działowe 12 cm
Podłoga na gruncie: płyta betonowa, ocieplenie styropian 15 cm
Strop i stropodach nad garażem: strop międzypiętrowy gęstożebrowy Teriva
Dach: konstrukcja drewniana, ocieplenie wełna mineralna 30 cm, dachówka płaska lub inna o podobnych parametrach
Elewacja: okładzina drewniana i kamienna
Stolarka: drewniana, PCV lub aluminiowa
Okna połaciowe: rozwiązania technologiczne firmy FAKRO
Koszty budowy
- Stan surowy zamknięty409 044 zł
- Stan deweloperski Economic+150 723 zł
- Stan deweloperski Premium+286 523 zł
Przygotuj się do budowy!
Zamów kosztorys inwestorski i poznaj dokładne koszty materiałów, cen robocizny i innych nakładów.
Stan surowy zamknięty uwzględnia kompletną konstrukcję wraz z elementami zabezpieczającymi budynek przed czynnikami atmosferycznymi. Obiekt jest przygotowany do wykonania kolejnych etapów.
Stan surowy zamknięty obejmuje:
- Fundamenty, ściany nośne i działowe
- Dach, strop, pokrycie dachowe
- Stolarka okienna i drzwiowa zewnętrzna
Wersja ekonomiczna stanu deweloperskiego uwzględnia instalacje, urządzenia i materiały ze średniej półki cenowej, charakteryzujące się standardową jakością.
Stan deweloperski Economic obejmuje:
- Instalacja elektryczna17 908 złkompletna instalacja elektryczna z osprzętem (gniazda, łączniki, rozdzielnica), przewody, puszki, zabezpieczenia.Zastosowane materiały: przewody NKT, osprzęt Simon 10, rozdzielnica Hager Gamma.
- Instalacja sanitarna25 369 złinstalacja wodociągowa, kanalizacyjna i gazowa bez armatury, wentylacja grawitacyjna.Zastosowane materiały: rury PP i PE Wavin, instalacja kanalizacyjna z rur HT+, wentylacja grawitacyjna.
- Instalacja grzewcza38 800 złpompa ciepła + ogrzewanie podłogowe wodne.Zastosowane materiały: pompa ciepła typu split Kaisai Arctic, ogrzewanie podłogowe z rurami Tece.
- Wykończenie wewnętrzne35 815 złtynki wewnętrzne gipsowe + wylewki cementowe. Bez gładzi, farb, podłóg i drzwi.Zastosowane materiały: tynki gipsowe Knauf MP75, wylewki cementowe miksokret Atlas Posadzka 20.
- Wykończenie zewnętrzne32 831 złelewacja z ociepleniem, tynki, parapety, obróbki blacharskie, rynny i rury spustowe.Zastosowane materiały: styropian EPS 70-040 (np. Swisspor), tynk akrylowy Atlas, blacha powlekana Plannja, rynny PCV Bryza.
Wersja premium stanu deweloperskiego uwzględnia instalacje, urządzenia i materiały z wyższej półki cenowej, wyróżniające się najwyższą jakością w obrębie grupy produktowej.
Stan deweloperski Premium obejmuje:
- Instalacja elektryczna37 308 złkompletna instalacja elektryczna z osprzętem (gniazda, łączniki, rozdzielnica), przewody, puszki, zabezpieczenia.Zastosowane materiały: przewody LappKabel, osprzęt Simon 55, Legrand Valena Life, rozdzielnica Schneider Electric.
- Instalacja sanitarna55 215 złinstalacja wodociągowa, kanalizacyjna i gazowa bez armatury, wentylacja grawitacyjna.Zastosowane materiały: rury wielowarstwowe Uponor, kanalizacja niskoszumowa Wavin AS, wentylacja mechaniczna z odzyskiem ciepła LWZ 180 Stiebel Eltron.
- Instalacja grzewcza77 600 złpompa ciepła + ogrzewanie podłogowe wodne.Zastosowane materiały: pompa ciepła Stiebel Eltron HPA 8kW Plus Flex, ogrzewanie podłogowe z rozdzielaczami Herz, sterowanie Salus/Heatmiser.
- Wykończenie wewnętrzne47 754 złtynki wewnętrzne gipsowe + wylewki cementowe. Bez gładzi, farb, podłóg i drzwi.Zastosowane materiały: tynki cementowo-wapienne Baumit MPI25, wylewki anhydrytowe Knauf FE 80.
- Wykończenie zewnętrzne68 646 złelewacja z ociepleniem, tynki, parapety, obróbki blacharskie, rynny i rury spustowe.Zastosowane materiały: styropian grafitowy Termo Organika, tynk silikonowy Baumit, blacha powlekana Plannja, rynny stalowe Galeco STAL, podbitka z kompozytu Vox.
Warianty
- EX 16 soft
- Pow. użytkowa:138,08 m²
- Technologia:murowany
- Garaż:bez garażu
- Min. wymiary działki:23,3 x 19,7 m
- EX 16 G1 MULTI-COMFORT
- Pow. użytkowa:149,23 m²
- Technologia:murowany
- Garaż:jednostanowiskowy
- Min. wymiary działki:23,4 x 24,5 m


