Parametry projektu Dom Wasilla 2
- Pow. użytkowa: 147,67 m²
- Pow. zabudowy: 205,05 m²
- Min. szerokość działki: 33,82 m
- Min. długość działki: 18,19 m
- Kondygnacje: parterowy
- Poddasze użytkowe: tak
- Poddasze do adaptacji nie
- Piwnica: nie
- Garaż: jednostanowiskowy
- Rodzaj dachu: dwuspadowy
- Wysokość domu: 7,78 m
- Kubatura: 585,91 m³
- Nachylenie dachu: 40°
- Rodzaj zabudowy: wolnostojący
- Technologia: murowany
- Styl: nowoczesny
- Kalenica: prostopadła do drogi
- Powierzchnia dachu: 263,75 m²
- Kominek: nie
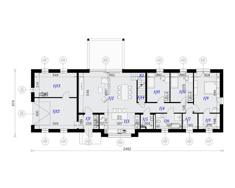
Rzut parteru
| 1/1. | Wiatrołap | 4,79 m² | |
| 1/2. | Pokój dzienny z jadalnią | 38,70 m² | |
| 1/3. | Kuchnia | 12,07 m² | |
| 1/4. | Komunikacja | 9,17 m² | |
| 1/5. | WC | 2,81 m² | |
| 1/6. | Łazienka | 6,59 m² | |
| 1/7. | Pralnia | 3,82 m² | |
| 1/8. | Garderoba | 5,43 m² | |
| 1/9. | Sypialnia | 17,24 m² | |
| 1/10. | Sypialnia | 10,96 m² | |
| 1/11. | Sypialnia | 10,96 m² | |
| K1. | Klatka schodowa | 4,85 m² | |
| 1/12. | Garaż | 21,84 m² | |
| 1/13. | Kotłownia | 17,14 m² | |
| 1/14. | Pom. Gospodarcze | 1,14 m² | 
Rzut poddasza
Pakiet GRATISÓW do projektu
Dedykowane gratisy do projektu Dom Wasilla 2! Do zamówienia możesz wybrać do 10 dowolnych gratisów z poniższej listy.
Opis projektu Dom Wasilla 2
Dom Wasilla 2 to przykład idealnej nieruchomości z kategorii „nowoczesna stodoła”. Prosta bryła, dwuspadowy dach oraz wykończenie elewacji ponadczasową cegłą, z elementami desek drewnopodobnych – to przykład modernistycznego podejścia do budownictwa. Całość uzupełnia starannie dobrana stolarka w kolorze antracytu. Bez wątpienia, projekt ten można określić zwieńczeniem aktualnie panujących trendów. W odróżnieniu od poprzedniej wersji, ta nieruchomość została doposażona w rewolucyjną technologię pokrycia dachowego firmy SunRoof. Dachy solarne tworzące wrażenie gładkiej, szklanej tafli najlepiej prezentują się na domach w typie stodoły, podkreślając ich minimalizm. Dodatkową dekorację budynku stanowi taras zadaszony pergolą, który urozmaica prostą konstrukcję. Wnętrze domu Wasilla 2 to starannie dopracowany układ pomieszczeń, funkcjonalny i dający duże możliwości aranżacyjne. Osoby marzące o poczuciu przestronności, uznają ten projekt za prawdziwą perełkę. Przekraczając drzwi wejściowe budynku, udajemy się bezpośrednio do otwartego pomieszczenia złożonego z salonu, jadalni oraz kuchni. W tym miejscu szczególną uwagę przykuwa pusta przestrzeń nad częścią wypoczynkową oraz w miejscu stołu, zakończona charakterystyczną antresolą nad kuchnią. Warto zwrócić uwagę na sprytnie umieszczone schody, które wizualnie nie obciążają pomieszczenia. Antresola może pełnić rozmaite funkcje – nie tylko wypoczynkową, ale także jako miejsce do towarzyskich spotkań. Dostawiając stół, możemy wyprawiać przyjęcia w niezwykle klimatycznej atmosferze, z możliwością podziwiania doskonale zaprojekowanej przestrzeni z góry. Mijając strefę dzienną, długim ciągiem komunikacyjnym trafiamy do szeregu zamkniętych pomieszczeń. Są to między innymi: WC dla gości, łazienka, pralnia oraz trzy sypialnie. Jedna z nich została połączona bezpośrednio z prywatną garderobą. Polecamy zaaranżować ją jako sypialnie rodzicielską. W domu Wasilla 2 nie brakuje tak zwanych pomieszczeń pomocniczych jak: kotłownia, pomieszczenie gospodarcze oraz jednostanowiskowy garaż. W projekcie zastosowano ogrzewanie za pomocą pompy ciepła oraz rekuperację. Istnieje możliwość zmiany sposobu ogrzewania na etapie adaptacji projektu.
Koszty budowy
- Stan surowy zamknięty405 082 zł
- Stan deweloperski Economic+149 146 zł
- Stan deweloperski Premium+283 526 zł
Przygotuj się do budowy!
Zamów kosztorys inwestorski i poznaj dokładne koszty materiałów, cen robocizny i innych nakładów.
Stan surowy zamknięty uwzględnia kompletną konstrukcję wraz z elementami zabezpieczającymi budynek przed czynnikami atmosferycznymi. Obiekt jest przygotowany do wykonania kolejnych etapów.
Stan surowy zamknięty obejmuje:
- Fundamenty, ściany nośne i działowe
- Dach, strop, pokrycie dachowe
- Stolarka okienna i drzwiowa zewnętrzna
Wersja ekonomiczna stanu deweloperskiego uwzględnia instalacje, urządzenia i materiały ze średniej półki cenowej, charakteryzujące się standardową jakością.
Stan deweloperski Economic obejmuje:
- Instalacja elektryczna17 720 złkompletna instalacja elektryczna z osprzętem (gniazda, łączniki, rozdzielnica), przewody, puszki, zabezpieczenia.Zastosowane materiały: przewody NKT, osprzęt Simon 10, rozdzielnica Hager Gamma.
- Instalacja sanitarna25 104 złinstalacja wodociągowa, kanalizacyjna i gazowa bez armatury, wentylacja grawitacyjna.Zastosowane materiały: rury PP i PE Wavin, instalacja kanalizacyjna z rur HT+, wentylacja grawitacyjna.
- Instalacja grzewcza38 394 złpompa ciepła + ogrzewanie podłogowe wodne.Zastosowane materiały: pompa ciepła typu split Kaisai Arctic, ogrzewanie podłogowe z rurami Tece.
- Wykończenie wewnętrzne35 441 złtynki wewnętrzne gipsowe + wylewki cementowe. Bez gładzi, farb, podłóg i drzwi.Zastosowane materiały: tynki gipsowe Knauf MP75, wylewki cementowe miksokret Atlas Posadzka 20.
- Wykończenie zewnętrzne32 487 złelewacja z ociepleniem, tynki, parapety, obróbki blacharskie, rynny i rury spustowe.Zastosowane materiały: styropian EPS 70-040 (np. Swisspor), tynk akrylowy Atlas, blacha powlekana Plannja, rynny PCV Bryza.
Wersja premium stanu deweloperskiego uwzględnia instalacje, urządzenia i materiały z wyższej półki cenowej, wyróżniające się najwyższą jakością w obrębie grupy produktowej.
Stan deweloperski Premium obejmuje:
- Instalacja elektryczna36 918 złkompletna instalacja elektryczna z osprzętem (gniazda, łączniki, rozdzielnica), przewody, puszki, zabezpieczenia.Zastosowane materiały: przewody LappKabel, osprzęt Simon 55, Legrand Valena Life, rozdzielnica Schneider Electric.
- Instalacja sanitarna54 638 złinstalacja wodociągowa, kanalizacyjna i gazowa bez armatury, wentylacja grawitacyjna.Zastosowane materiały: rury wielowarstwowe Uponor, kanalizacja niskoszumowa Wavin AS, wentylacja mechaniczna z odzyskiem ciepła LWZ 180 Stiebel Eltron.
- Instalacja grzewcza76 788 złpompa ciepła + ogrzewanie podłogowe wodne.Zastosowane materiały: pompa ciepła Stiebel Eltron HPA 8kW Plus Flex, ogrzewanie podłogowe z rozdzielaczami Herz, sterowanie Salus/Heatmiser.
- Wykończenie wewnętrzne47 254 złtynki wewnętrzne gipsowe + wylewki cementowe. Bez gładzi, farb, podłóg i drzwi.Zastosowane materiały: tynki cementowo-wapienne Baumit MPI25, wylewki anhydrytowe Knauf FE 80.
- Wykończenie zewnętrzne67 928 złelewacja z ociepleniem, tynki, parapety, obróbki blacharskie, rynny i rury spustowe.Zastosowane materiały: styropian grafitowy Termo Organika, tynk silikonowy Baumit, blacha powlekana Plannja, rynny stalowe Galeco STAL, podbitka z kompozytu Vox.
Warianty
- Dom Wasilla
- Pow. użytkowa:147,67 m²
- Technologia:murowany
- Garaż:jednostanowiskowy
- Min. wymiary działki:18,19 x 33,82 m
- Dom Wasilla
- Pow. użytkowa:147,67 m²
- Technologia:murowany
- Garaż:jednostanowiskowy
- Min. wymiary działki:18,19 x 33,82 m




