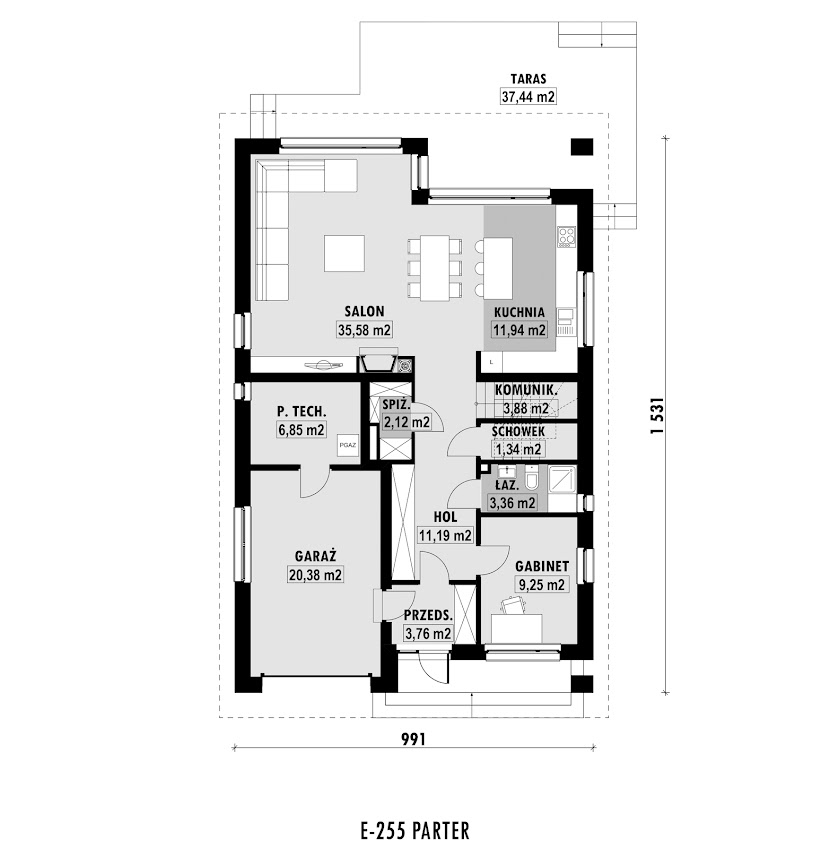
Parametry projektu E-255
- Pow. użytkowa: 155,4 m²
- Pow. zabudowy: 151,7 m²
- Min. szerokość działki: 17,91 m
- Min. długość działki: 24,31 m
- Kondygnacje: parterowy
- Poddasze użytkowe: tak
- Poddasze do adaptacji nie
- Strych: nie
- Piwnica: nie
- Garaż: jednostanowiskowy
- Rodzaj dachu: dwuspadowy
- Wysokość domu: 8,8 m
- Szerokość domu: 9,91 m
- Długość domu: 15,31 m
- Kubatura: 542,6 m³
- Nachylenie dachu: 42°
- Rodzaj zabudowy: wolnostojący
- Technologia: murowany
- Styl: nowoczesna elewacja
- Kalenica: prostopadła do drogi
- Powierzchnia dachu: 230 m²
- Liczba pokoi: 6
- Liczba łazienek: 3
- Kominek: tak
Rzut parteru
Rzut poddasza
| 1. | Komunikacja | 1,27 m² | (1,27 m²) |
| 2. | Hol | 7,74 m² | (7,74 m²) |
| 3. | Sypialnia | 13,32 m² | (17,63 m²) |
| 4. | Sypialnia | 14,30 m² | (17,68 m²) |
| 5. | Garderoba | 2,34 m² | (3,73 m²) |
| 6. | Łazienka | 2,79 m² | (4,45 m²) |
| 7. | Łazienka | 5,20 m² | (6,99 m²) |
| 8. | Sypialnia | 13,15 m² | (17,41 m²) |
| 9. | Sypialnia | 10,58 m² | (14,24 m²) |
| 10. | Pralnia | 2,24 m² | (3,56 m²) |
| 11. | Balkon | 4,19 m² |
powierzchnia pomieszczenia po podłodze
Pakiet GRATISÓW do projektu
Dedykowane gratisy do projektu E-255! Do zamówienia możesz wybrać do 10 dowolnych gratisów z poniższej listy.
Technologia wykonania
- Ściany: 25cm ceramika +18cm styropian.
- Strop: wylewany żelbetowy.
- Pokrycie dachowe: dachówka cementowa.
- Ocieplenie posadzki na gruncie: 20cm styropian.
- Ocieplenie dachu: 25-30cm wełna mineralna.
- Stolarka okienna: drewniana.
- Wykończenie zewnętrzne: kamień, płytki klinkierowe lub drewno.
- Ogrzewanie: gazowe.
- Wentylacja: mechaniczna.
Koszty budowy
- Stan surowy zamknięty424 716 zł
- Stan deweloperski Economic+156 954 zł
- Stan deweloperski Premium+298 368 zł
Przygotuj się do budowy!
Zamów kosztorys inwestorski i poznaj dokładne koszty materiałów, cen robocizny i innych nakładów.
Stan surowy zamknięty uwzględnia kompletną konstrukcję wraz z elementami zabezpieczającymi budynek przed czynnikami atmosferycznymi. Obiekt jest przygotowany do wykonania kolejnych etapów.
Stan surowy zamknięty obejmuje:
- Fundamenty, ściany nośne i działowe
- Dach, strop, pokrycie dachowe
- Stolarka okienna i drzwiowa zewnętrzna
Wersja ekonomiczna stanu deweloperskiego uwzględnia instalacje, urządzenia i materiały ze średniej półki cenowej, charakteryzujące się standardową jakością.
Stan deweloperski Economic obejmuje:
- Instalacja elektryczna18 648 złkompletna instalacja elektryczna z osprzętem (gniazda, łączniki, rozdzielnica), przewody, puszki, zabezpieczenia.Zastosowane materiały: przewody NKT, osprzęt Simon 10, rozdzielnica Hager Gamma.
- Instalacja sanitarna26 418 złinstalacja wodociągowa, kanalizacyjna i gazowa bez armatury, wentylacja grawitacyjna.Zastosowane materiały: rury PP i PE Wavin, instalacja kanalizacyjna z rur HT+, wentylacja grawitacyjna.
- Instalacja grzewcza40 404 złpompa ciepła + ogrzewanie podłogowe wodne.Zastosowane materiały: pompa ciepła typu split Kaisai Arctic, ogrzewanie podłogowe z rurami Tece.
- Wykończenie wewnętrzne37 296 złtynki wewnętrzne gipsowe + wylewki cementowe. Bez gładzi, farb, podłóg i drzwi.Zastosowane materiały: tynki gipsowe Knauf MP75, wylewki cementowe miksokret Atlas Posadzka 20.
- Wykończenie zewnętrzne34 188 złelewacja z ociepleniem, tynki, parapety, obróbki blacharskie, rynny i rury spustowe.Zastosowane materiały: styropian EPS 70-040 (np. Swisspor), tynk akrylowy Atlas, blacha powlekana Plannja, rynny PCV Bryza.
Wersja premium stanu deweloperskiego uwzględnia instalacje, urządzenia i materiały z wyższej półki cenowej, wyróżniające się najwyższą jakością w obrębie grupy produktowej.
Stan deweloperski Premium obejmuje:
- Instalacja elektryczna38 850 złkompletna instalacja elektryczna z osprzętem (gniazda, łączniki, rozdzielnica), przewody, puszki, zabezpieczenia.Zastosowane materiały: przewody LappKabel, osprzęt Simon 55, Legrand Valena Life, rozdzielnica Schneider Electric.
- Instalacja sanitarna57 498 złinstalacja wodociągowa, kanalizacyjna i gazowa bez armatury, wentylacja grawitacyjna.Zastosowane materiały: rury wielowarstwowe Uponor, kanalizacja niskoszumowa Wavin AS, wentylacja mechaniczna z odzyskiem ciepła LWZ 180 Stiebel Eltron.
- Instalacja grzewcza80 808 złpompa ciepła + ogrzewanie podłogowe wodne.Zastosowane materiały: pompa ciepła Stiebel Eltron HPA 8kW Plus Flex, ogrzewanie podłogowe z rozdzielaczami Herz, sterowanie Salus/Heatmiser.
- Wykończenie wewnętrzne49 728 złtynki wewnętrzne gipsowe + wylewki cementowe. Bez gładzi, farb, podłóg i drzwi.Zastosowane materiały: tynki cementowo-wapienne Baumit MPI25, wylewki anhydrytowe Knauf FE 80.
- Wykończenie zewnętrzne71 484 złelewacja z ociepleniem, tynki, parapety, obróbki blacharskie, rynny i rury spustowe.Zastosowane materiały: styropian grafitowy Termo Organika, tynk silikonowy Baumit, blacha powlekana Plannja, rynny stalowe Galeco STAL, podbitka z kompozytu Vox.
Warianty
- E-254
- Pow. użytkowa:146,1 m²
- Technologia:murowany
- Garaż:jednostanowiskowy
- Min. wymiary działki:22,91 x 17,91 m
- E-255a
- Pow. użytkowa:146,3 m²
- Technologia:murowany
- Garaż:jednostanowiskowy
- Min. wymiary działki:24,61 x 17,91 m


