Parametry projektu DN 210
- Pow. użytkowa: 228,82 m²
- Pow. zabudowy: 216 m²
- Min. szerokość działki: 25,04 m
- Min. długość działki: 22,67 m
- Kondygnacje: piętrowy
- Poddasze użytkowe: nie
- Poddasze do adaptacji nie
- Piwnica: nie
- Garaż: dwustanowiskowy
- Rodzaj dachu: wielospadowy
- Wysokość domu: 9,7 m
- Szerokość domu: 18,04 m
- Długość domu: 13,67 m
- Kubatura: 750 m³
- Nachylenie dachu: 25°
- Rodzaj zabudowy: wolnostojący
- Technologia: murowany
- Styl: nowoczesna elewacja
- Kalenica: obojętnie
- Liczba pokoi: 5
- Liczba łazienek: 3
Rzut parteru
| powierzchnia | 125,49 m² | ||
| 1. | Przedsionek | 5,00 m² | |
| 2. | Pom. gospodarcze | 6,03 m² | |
| 3. | Komunikacja | 13,00 m² | |
| 4. | Spiżarnia | 2,08 m² | |
| 5. | Kuchnia | 12,67 m² | |
| 6. | Jadalnia | 16,84 m² | |
| 7. | Pokój dzienny | 43,30 m² | |
| 8. | Gabinet | 12,50 m² | |
| 9. | Łazienka | 3,95 m² | |
| 10. | Pom. gospodarcze | 5,42 m² | |
| 11. | Kotłownia | 4,70 m² | |
| 12. | Garaż 2-st. | 38,60 m² |
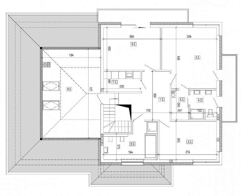
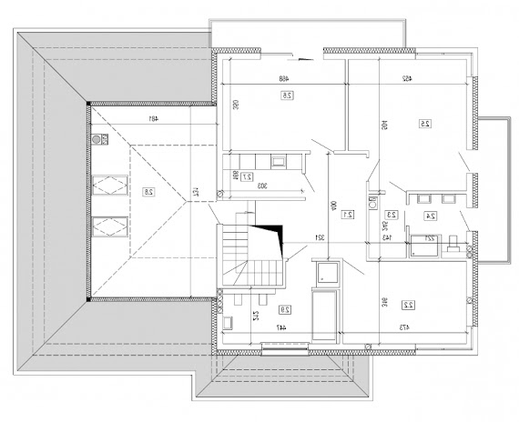
Rzut piętra
Pakiet GRATISÓW do projektu
Dedykowane gratisy do projektu DN 210! Do zamówienia możesz wybrać do 10 dowolnych gratisów z poniższej listy.
Opis projektu DN 210
Dom współczesny w stylu willi podmiejskiej, piętrowy z wbudowanym garażem 2-stanowiskowym.
Projekt energooszczędny: dom samowystarczalny energetycznie. Spełnia wymagania UE obowiązujące od 2021r.
Charakterystyka energetyczna w przedziale 36-40 [kWh/m2/rok] w przypadku montażu instalacji pompy ciepła i paneli fotowoltaicznych. Charakterystyka energetyczna w granicach 75 [kWh/m2/rok] bez montażu instalacji energooszczędnych.
Zasady działania domu samowystarczalnego energetycznie:
Nowoczesny, energooszczędny dom + energia elektryczna z paneli fotowoltaicznych umieszczonych na dachu + pompa ciepła do ogrzewania domu i ciepłej wody użytkowej + umowa z zakładem energetycznym o przyjmowaniu nadwyżki wyprodukowanej przez panele fotowoltaiczne energii elektrycznej latem i odbioru zimą.
Pompa ciepła to jedna z najtańszych form ogrzewania, wykorzystująca darmową energię cieplną gruntu, wody lub powietrza. Nowoczesne i drogie urządzenie. Ale w okresie zimowym, kiedy spełnia swój podstawowy cel, czyli dostarcza ciepło do ogrzewania domu, potrzebuje energii elektrycznej.
Własną energię elektryczną uzyskujemy z paneli fotowoltaicznych umieszczonych na dachu domu, ale skuteczne działanie sprawdza się w Polsce przede wszystkim latem. Dopiero możliwość odprowadzenia własnej wyprodukowanej energii elektrycznej do sieci energetycznej latem i odbiór jej zimą pozwala na funkcjonowanie domu samowystarczalnego energetycznie.
Technologia wykonania
- Ściany: beton komórkowy, ceramika, silikaty.
- Strop: żelbetowy.
- Dach: dachówka, blachodachówka, blacha.
- Instalacja grzewcza: gaz/paliwo stałe, pompa ciepła, panele fotowoltaiczne.
Koszty budowy
- Stan surowy zamknięty638 779 zł
- Stan deweloperski Economic+231 107 zł
- Stan deweloperski Premium+439 333 zł
Przygotuj się do budowy!
Zamów kosztorys inwestorski i poznaj dokładne koszty materiałów, cen robocizny i innych nakładów.
Stan surowy zamknięty uwzględnia kompletną konstrukcję wraz z elementami zabezpieczającymi budynek przed czynnikami atmosferycznymi. Obiekt jest przygotowany do wykonania kolejnych etapów.
Stan surowy zamknięty obejmuje:
- Fundamenty, ściany nośne i działowe
- Dach, strop, pokrycie dachowe
- Stolarka okienna i drzwiowa zewnętrzna
Wersja ekonomiczna stanu deweloperskiego uwzględnia instalacje, urządzenia i materiały ze średniej półki cenowej, charakteryzujące się standardową jakością.
Stan deweloperski Economic obejmuje:
- Instalacja elektryczna27 458 złkompletna instalacja elektryczna z osprzętem (gniazda, łączniki, rozdzielnica), przewody, puszki, zabezpieczenia.Zastosowane materiały: przewody NKT, osprzęt Simon 10, rozdzielnica Hager Gamma.
- Instalacja sanitarna38 899 złinstalacja wodociągowa, kanalizacyjna i gazowa bez armatury, wentylacja grawitacyjna.Zastosowane materiały: rury PP i PE Wavin, instalacja kanalizacyjna z rur HT+, wentylacja grawitacyjna.
- Instalacja grzewcza59 493 złpompa ciepła + ogrzewanie podłogowe wodne.Zastosowane materiały: pompa ciepła typu split Kaisai Arctic, ogrzewanie podłogowe z rurami Tece.
- Wykończenie wewnętrzne54 917 złtynki wewnętrzne gipsowe + wylewki cementowe. Bez gładzi, farb, podłóg i drzwi.Zastosowane materiały: tynki gipsowe Knauf MP75, wylewki cementowe miksokret Atlas Posadzka 20.
- Wykończenie zewnętrzne50 340 złelewacja z ociepleniem, tynki, parapety, obróbki blacharskie, rynny i rury spustowe.Zastosowane materiały: styropian EPS 70-040 (np. Swisspor), tynk akrylowy Atlas, blacha powlekana Plannja, rynny PCV Bryza.
Wersja premium stanu deweloperskiego uwzględnia instalacje, urządzenia i materiały z wyższej półki cenowej, wyróżniające się najwyższą jakością w obrębie grupy produktowej.
Stan deweloperski Premium obejmuje:
- Instalacja elektryczna57 205 złkompletna instalacja elektryczna z osprzętem (gniazda, łączniki, rozdzielnica), przewody, puszki, zabezpieczenia.Zastosowane materiały: przewody LappKabel, osprzęt Simon 55, Legrand Valena Life, rozdzielnica Schneider Electric.
- Instalacja sanitarna84 663 złinstalacja wodociągowa, kanalizacyjna i gazowa bez armatury, wentylacja grawitacyjna.Zastosowane materiały: rury wielowarstwowe Uponor, kanalizacja niskoszumowa Wavin AS, wentylacja mechaniczna z odzyskiem ciepła LWZ 180 Stiebel Eltron.
- Instalacja grzewcza118 986 złpompa ciepła + ogrzewanie podłogowe wodne.Zastosowane materiały: pompa ciepła Stiebel Eltron HPA 8kW Plus Flex, ogrzewanie podłogowe z rozdzielaczami Herz, sterowanie Salus/Heatmiser.
- Wykończenie wewnętrzne73 222 złtynki wewnętrzne gipsowe + wylewki cementowe. Bez gładzi, farb, podłóg i drzwi.Zastosowane materiały: tynki cementowo-wapienne Baumit MPI25, wylewki anhydrytowe Knauf FE 80.
- Wykończenie zewnętrzne105 257 złelewacja z ociepleniem, tynki, parapety, obróbki blacharskie, rynny i rury spustowe.Zastosowane materiały: styropian grafitowy Termo Organika, tynk silikonowy Baumit, blacha powlekana Plannja, rynny stalowe Galeco STAL, podbitka z kompozytu Vox.


