Parametry projektu MJS-U2
- Pow. użytkowa: 605 m²
- Pow. zabudowy: 163,73 m²
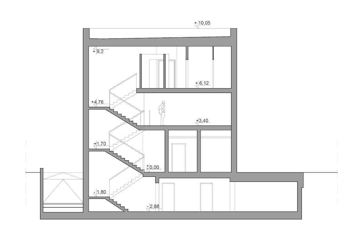
- Wysokość budynku: 10 m
- Technologia: murowany
- Kubatura: 2558,43 m³
- Min. szerokość działki: 20,52 m
- Min. długość działki: 23,47 m
- Rodzaj dachu: płaski
- Nachylenie dachu: 2°
- Część mieszkalna: nie
- Łazienka lub wc: tak
- Część socjalna: tak
Uwaga! Projekt dostępny w terminie: 14 dni.
Projekt TKP-995
24600 zł
Chcę kupić ten projekt, ale w niższej cenie
Darmowa dostawa
Darmowy zwrot i wymiana
Zgoda autora na zmiany
Charakterystyka energetyczna
Gwarancja najniższej ceny
Rzut piwnicy
Rzut parteru
Rzut antresola
Rzut piętra
Jakie są dokładne wymiary pomieszczeń?
Gdzie postawić dom, aby płacić mniej za ogrzewanie?
Opis projektu MJS-U2
Budynek usługowy: na parterze powierzchnia ekspozycyjna. Powierzchnia biurowa na antresoli parteru i piętrze. W części podziemnej garaż na 8 samochodów.
Technologia wykonania
- Ściany: porotherm 25cm + ocieplenie 20cm.
- Fundament: ławy i stopy fundamentowe.
- Stopy: lane – żelbet.
- Stropodach.
- Pokrycie dachu: membrana.
- Elewacja: tynkowana.
Podobne projekty
TGC-757 - 342,04 m²
TSE-118 - 250,35 m²
TMH-785 - 512,39 m²
TFQ-634 - 464,46 m²
TVL-834 - 271,65 m²
TPB-541 - 430,86 m²
TJU-217 - 590,73 m²
TXT-953 - 402,01 m²
TQY-721 - 321,01 m²
TIK-524 - 175,1 m²
TMN-554 - 174,06 m²
TAZ-476 - 296 m²
TAA-972 - 229,27 m²
TKW-252 - 419,62 m²
TMN-412 - 499,4 m²
TKD-194 - 424,2 m²
TPQ-261 - 427,11 m²
TQI-698 - 210,1 m²
TLQ-789 - 142,22 m²
TPH-167 - 207,17 m²
TLX-393 - 368,3 m²
TNX-721 - 426,66 m²
TZF-325 - 159,7 m²
TVJ-429 - 229,41 m²
TUL-269 - 220,2 m²
TMM-632 - 41,46 m²
TYM-248 - 287,68 m²
THS-867 - 174,67 m²
TZC-787 - 179,82 m²
Pokaż więcej
autor: MJS Studio

