Parametry projektu Nieodzowny - wariant II - C304b
- Pow. użytkowa: 102,6 m²
- Pow. zabudowy: 143,7 m²
- Min. szerokość działki: 16,5 m
- Min. długość działki: 23,5 m
- Kondygnacje: parterowy
- Poddasze użytkowe: nie
- Poddasze do adaptacji tak
- Strych: nie
- Piwnica: nie
- Garaż: bez garażu
- Rodzaj dachu: dwuspadowy
- Wysokość domu: 6,8 m
- Szerokość domu: 8,5 m
- Długość domu: 16,5 m
- Kubatura: 753,6 m³
- Nachylenie dachu: 35°
- Rodzaj zabudowy: wolnostojący
- Technologia: murowany
- Styl: nowoczesna elewacja
- Kalenica: prostopadła do drogi
- Liczba pokoi: 5
- Liczba łazienek: 2
- Kominek: tak
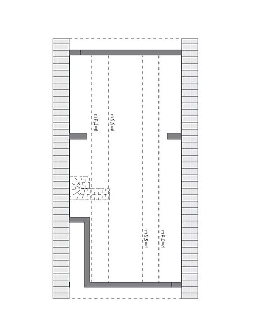
Rzut parteru
| powierzchnia | 102,60 m² | ||
| powierzchnia po podłodze | 102,60 m² | ||
| 1. | przedsionek | 2,80 m² | (2,80 m²) |
| 2. | łazienka | 3,50 m² | (3,50 m²) |
| 3. | sypialnia | 9,30 m² | (9,30 m²) |
| 4. | sypialnia | 12,50 m² | (12,50 m²) |
| 5. | korytarz | 1,40 m² | (1,40 m²) |
| 6. | pokój dzienny | 33,80 m² | (33,80 m²) |
| 7. | łazienka | 6,20 m² | (6,20 m²) |
| 8. | sypialnia | 12,00 m² | (12,00 m²) |
| 9. | sypialnia | 12,00 m² | (12,00 m²) |
| 10. | korytarz | 2,70 m² | (2,70 m²) |
| 11. | kuchnia | 6,40 m² | (6,40 m²) |
| 12. | kotłownia | 5,40 m² | (5,40 m²) |
| 13. | taras | (12,30 m²) |
powierzchnia pomieszczenia po podłodze
Rzut poddasza do indywidualnej adaptacji (55,3 m2 powierzchni użytkowej)
Pakiet GRATISÓW do projektu
Dedykowane gratisy do projektu Nieodzowny - wariant II - C304b! Do zamówienia możesz wybrać do 10 dowolnych gratisów z poniższej listy.
Opis projektu Nieodzowny - wariant II - C304b
Projekt pięknego, niewielkiego domu, który stanowi świetną propozycją dla właścicieli wąskich działek. Szerokość posesji, na której zostanie zbudowany, powinna wynosić minimum 16,5 m. Bryłę budynku zaprojektowano w taki sposób, że można ją ustawić zarówno ścianą szczytową, jak i elewacją boczną w kierunku wjazdu na działkę. Wejście główne osłania podcień, chroniący mieszkańców przed niekorzystnymi warunkami atmosferycznymi. Elewacja została wykończona jasnym tynkiem i ciepłą, drewnianą okładziną, co nadaje budynkowi przytulności. Zaletą domu jest również poddasze do adaptacji.
Ciekawy podział strefy dziennej i nocnej na parterze
Architekt w ciekawy sposób oddzielił część dzienną i nocną. Pierwsza z nich znajduje się w centralnej części domu. Zaplanowano tutaj przestronny salon z wyjściem na taras oraz otwartą kuchnię, które łączy salon. Strefa nocna została podzielona na dwie części, które znajdują się w przeciwległych krańcach domu. W każdej z nich zaprojektowano po dwie sypialnie z zapleczem sanitarnym.
Poddasze do adaptacji – zbuduj dom w dwóch etapach!
Dom posiada poddasze do adaptacji, dzięki czemu będzie można zbudować go w dwóch etapach. Pierwszym z nich jest budowa domu wraz z zagospodarowaniem parteru, a drugim wykończenie poddasza. Drugi etap inwestor może wykonać nawet po wielu latach. Po adaptacji poddasza zyska nieco ponad 55 m² dodatkowej przestrzeni, którą będzie mógł wykorzystać w dowolny sposób. To świetne rozwiązanie dla osób, które planują kolejne dzieci lub chcą zamieszkać z rodzicami. Na poddaszu można będzie wybudować co najmniej trzy sypialnie, ale możliwości jest oczywiście znacznie więcej. W zależności potrzeb rodziny dodatkową przestrzeń można również przeznaczyć na takie pomieszczenia, jak pralnia, suszarnia, garderoba, minisiłownia czy pokój rekreacyjny.
Dom tani w budowie dla dużej rodziny
Projekt Nieodzowny - wariant II - C304b można zaliczyć do kategorii domów tanich w budowie. Posiada nieskomplikowaną bryłę, zaprojektowaną w kształcie prostokąta oraz dwuspadowy dach. Gwarantuje to niskie koszty budowy i utrzymania domu. Co więcej, po pierwszym etapie realizacji inwestycji będzie mogła zamieszkać w nim czteroosobowa rodzina, a po drugim – nawet siedmioosobowa.
Koszty budowy
- Stan surowy zamknięty342 684 zł
- Stan deweloperski Economic+103 626 zł
- Stan deweloperski Premium+196 992 zł
Przygotuj się do budowy!
Zamów kosztorys inwestorski i poznaj dokładne koszty materiałów, cen robocizny i innych nakładów.
Stan surowy zamknięty uwzględnia kompletną konstrukcję wraz z elementami zabezpieczającymi budynek przed czynnikami atmosferycznymi. Obiekt jest przygotowany do wykonania kolejnych etapów.
Stan surowy zamknięty obejmuje:
- Fundamenty, ściany nośne i działowe
- Dach, strop, pokrycie dachowe
- Stolarka okienna i drzwiowa zewnętrzna
Wersja ekonomiczna stanu deweloperskiego uwzględnia instalacje, urządzenia i materiały ze średniej półki cenowej, charakteryzujące się standardową jakością.
Stan deweloperski Economic obejmuje:
- Instalacja elektryczna12 312 złkompletna instalacja elektryczna z osprzętem (gniazda, łączniki, rozdzielnica), przewody, puszki, zabezpieczenia.Zastosowane materiały: przewody NKT, osprzęt Simon 10, rozdzielnica Hager Gamma.
- Instalacja sanitarna17 442 złinstalacja wodociągowa, kanalizacyjna i gazowa bez armatury, wentylacja grawitacyjna.Zastosowane materiały: rury PP i PE Wavin, instalacja kanalizacyjna z rur HT+, wentylacja grawitacyjna.
- Instalacja grzewcza26 676 złpompa ciepła + ogrzewanie podłogowe wodne.Zastosowane materiały: pompa ciepła typu split Kaisai Arctic, ogrzewanie podłogowe z rurami Tece.
- Wykończenie wewnętrzne24 624 złtynki wewnętrzne gipsowe + wylewki cementowe. Bez gładzi, farb, podłóg i drzwi.Zastosowane materiały: tynki gipsowe Knauf MP75, wylewki cementowe miksokret Atlas Posadzka 20.
- Wykończenie zewnętrzne22 572 złelewacja z ociepleniem, tynki, parapety, obróbki blacharskie, rynny i rury spustowe.Zastosowane materiały: styropian EPS 70-040 (np. Swisspor), tynk akrylowy Atlas, blacha powlekana Plannja, rynny PCV Bryza.
Wersja premium stanu deweloperskiego uwzględnia instalacje, urządzenia i materiały z wyższej półki cenowej, wyróżniające się najwyższą jakością w obrębie grupy produktowej.
Stan deweloperski Premium obejmuje:
- Instalacja elektryczna25 650 złkompletna instalacja elektryczna z osprzętem (gniazda, łączniki, rozdzielnica), przewody, puszki, zabezpieczenia.Zastosowane materiały: przewody LappKabel, osprzęt Simon 55, Legrand Valena Life, rozdzielnica Schneider Electric.
- Instalacja sanitarna37 962 złinstalacja wodociągowa, kanalizacyjna i gazowa bez armatury, wentylacja grawitacyjna.Zastosowane materiały: rury wielowarstwowe Uponor, kanalizacja niskoszumowa Wavin AS, wentylacja mechaniczna z odzyskiem ciepła LWZ 180 Stiebel Eltron.
- Instalacja grzewcza53 352 złpompa ciepła + ogrzewanie podłogowe wodne.Zastosowane materiały: pompa ciepła Stiebel Eltron HPA 8kW Plus Flex, ogrzewanie podłogowe z rozdzielaczami Herz, sterowanie Salus/Heatmiser.
- Wykończenie wewnętrzne32 832 złtynki wewnętrzne gipsowe + wylewki cementowe. Bez gładzi, farb, podłóg i drzwi.Zastosowane materiały: tynki cementowo-wapienne Baumit MPI25, wylewki anhydrytowe Knauf FE 80.
- Wykończenie zewnętrzne47 196 złelewacja z ociepleniem, tynki, parapety, obróbki blacharskie, rynny i rury spustowe.Zastosowane materiały: styropian grafitowy Termo Organika, tynk silikonowy Baumit, blacha powlekana Plannja, rynny stalowe Galeco STAL, podbitka z kompozytu Vox.
Warianty
- Nieodzowny - wariant I - C304a
- Pow. użytkowa:87,9 m²
- Technologia:murowany
- Garaż:bez garażu
- Min. wymiary działki:23,9 x 16,2 m
- Nieodzowny - C304
- Pow. użytkowa:83,8 m²
- Technologia:murowany
- Garaż:bez garażu
- Min. wymiary działki:16,5 x 22 m


