Parametry projektu E3 ECONOMIC wersja B
- Pow. użytkowa: 101,2 m²
- Pow. zabudowy: 81,89 m²
- Min. szerokość działki: 16,6 m
- Min. długość działki: 21,5 m
- Kondygnacje: parterowy
- Poddasze użytkowe: tak
- Poddasze do adaptacji nie
- Strych: nie
- Piwnica: nie
- Garaż: bez garażu
- Rodzaj dachu: dwuspadowy
- Wysokość domu: 8,8 m
- Szerokość domu: 8,6 m
- Długość domu: 9,5 m
- Kubatura: 343,27 m³
- Nachylenie dachu: 40°
- Rodzaj zabudowy: wolnostojący
- Technologia: murowany
- Styl: nowoczesny
- Kalenica: równoległa do drogi
- Powierzchnia dachu: 100 m²
- Liczba pokoi: 3
- Liczba łazienek: 1
- Kominek: tak
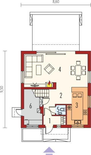
Rzut parteru
Rzut poddasza
Pakiet GRATISÓW do projektu
Dedykowane gratisy do projektu E3 ECONOMIC wersja B! Do zamówienia możesz wybrać do 10 dowolnych gratisów z poniższej listy.
Opis projektu E3 ECONOMIC wersja B
Projekt E3 ECONOMIC (wersja B) to udane połączenie tradycyjnej architektury i nowoczesnych rozwiązań. Zwarta forma została zaplanowana na rzucie prostokąta i przykryta dwuspadowym dachem. Dom jest idealny dla trzy-, czteroosobowej rodziny, która ceni sobie przytulne wnętrza. Dzięki prostej architekturze dom doskonale wpisze się w każdy krajobraz. Jego powierzchnia użytkowa wynosi 101,2 m².
Ekonomiczna budowa domu i niskie koszty eksploatacji
Projekt został zaprojektowany z troską o ekonomiczny charakter budowy. Prosta bryła, ograniczona liczba detali architektonicznych oraz zminimalizowana liczba pionów instalacyjnych sprawia, że dom będzie tani w realizacji i ekonomiczny w późniejszej eksploatacji. Elewacja w tonacji ascetycznej bieli harmonijnie współgra z ciepłym odcieniem drewna. Proste zadaszenia nad wejściem głównym i drzwiami tarasowymi dodają całości nowoczesnego charakteru. Elegancki wygląd osiągnięto poprzez uzupełnienie budynku dużymi przeszkleniami zapewniającymi dobry dostęp światła słonecznego do wnętrza.
Dom dla miłośników przytulnych wnętrz
Projekt E3 ECONOMIC (wersja B) jest idealny dla miłośników przytulnych wnętrz. Pomimo niewielkiej powierzchni użytkowej dom zapewni swobodę i wygodę jego mieszkańcom. Oddzielono w nim pokoje dzienne od nocnych względem kondygnacji. Do środka wchodzi się przez przedsionek chroniący dom przed utratą ciepła. Tu znajduje się szafa wnękowa na garderobę. Obok wejścia przewidziano niewielką toaletę dla gości. Po lewej stronie znajduje się wejście do pomieszczenia gospodarczego przeznaczonego na kotłownię. Główna część parteru składa się z wygodnej kuchni połączonej z przestronnym salonem i jadalnią.
Duży kominek - rodzinne, przytulne miejsce
Piękną ozdobą salonu jest duży kominek dogrzewający dom w chłodniejsze wieczory. Na górze zaprojektowano trzy ustawne sypialnie, które można dowolnie urządzić. Z korytarza dostępna jest łazienka z dużą wanną i kabiną prysznicową.
Projekt domu z przykładowymi aranżacjami wnętrz
Przykładowa aranżacja wnętrz, jaką możemy zobaczyć na wizaulizacjach, jest spójna z zewnętrzną elewacją budynku. To połączenie stylu industrialnego z klasycznymi i minimalistycznymi rozwiązaniami. Aranżacja może stanowić ciekawą inspirację, a jednocześnie pomóc nam wyobrazić sobie powierzchnię konkretnych pomieszczeń. Polecamy zwrócić na nie szczególną uwagę!
Technologia wykonania
- Dom zaprojektowany w technologii murowej ze stropem gęstożebrowym.
- Schody wewnętrzne żelbetowe.
- Dach o konstrukcji drewnianej pokryty blachą.
- Elewacje wykończono tynkiem mineralnym, okładziną drewnianą i kamienną.
- Cokoły kamienne lub wykończone tynkiem.
- Stolarka okienna drewniana lub PCV.
Koszty budowy
- Stan surowy zamknięty257 048 zł
- Stan deweloperski Economic+102 212 zł
- Stan deweloperski Premium+194 304 zł
Przygotuj się do budowy!
Zamów kosztorys inwestorski i poznaj dokładne koszty materiałów, cen robocizny i innych nakładów.
Stan surowy zamknięty uwzględnia kompletną konstrukcję wraz z elementami zabezpieczającymi budynek przed czynnikami atmosferycznymi. Obiekt jest przygotowany do wykonania kolejnych etapów.
Stan surowy zamknięty obejmuje:
- Fundamenty, ściany nośne i działowe
- Dach, strop, pokrycie dachowe
- Stolarka okienna i drzwiowa zewnętrzna
Wersja ekonomiczna stanu deweloperskiego uwzględnia instalacje, urządzenia i materiały ze średniej półki cenowej, charakteryzujące się standardową jakością.
Stan deweloperski Economic obejmuje:
- Instalacja elektryczna12 144 złkompletna instalacja elektryczna z osprzętem (gniazda, łączniki, rozdzielnica), przewody, puszki, zabezpieczenia.Zastosowane materiały: przewody NKT, osprzęt Simon 10, rozdzielnica Hager Gamma.
- Instalacja sanitarna17 204 złinstalacja wodociągowa, kanalizacyjna i gazowa bez armatury, wentylacja grawitacyjna.Zastosowane materiały: rury PP i PE Wavin, instalacja kanalizacyjna z rur HT+, wentylacja grawitacyjna.
- Instalacja grzewcza26 312 złpompa ciepła + ogrzewanie podłogowe wodne.Zastosowane materiały: pompa ciepła typu split Kaisai Arctic, ogrzewanie podłogowe z rurami Tece.
- Wykończenie wewnętrzne24 288 złtynki wewnętrzne gipsowe + wylewki cementowe. Bez gładzi, farb, podłóg i drzwi.Zastosowane materiały: tynki gipsowe Knauf MP75, wylewki cementowe miksokret Atlas Posadzka 20.
- Wykończenie zewnętrzne22 264 złelewacja z ociepleniem, tynki, parapety, obróbki blacharskie, rynny i rury spustowe.Zastosowane materiały: styropian EPS 70-040 (np. Swisspor), tynk akrylowy Atlas, blacha powlekana Plannja, rynny PCV Bryza.
Wersja premium stanu deweloperskiego uwzględnia instalacje, urządzenia i materiały z wyższej półki cenowej, wyróżniające się najwyższą jakością w obrębie grupy produktowej.
Stan deweloperski Premium obejmuje:
- Instalacja elektryczna25 300 złkompletna instalacja elektryczna z osprzętem (gniazda, łączniki, rozdzielnica), przewody, puszki, zabezpieczenia.Zastosowane materiały: przewody LappKabel, osprzęt Simon 55, Legrand Valena Life, rozdzielnica Schneider Electric.
- Instalacja sanitarna37 444 złinstalacja wodociągowa, kanalizacyjna i gazowa bez armatury, wentylacja grawitacyjna.Zastosowane materiały: rury wielowarstwowe Uponor, kanalizacja niskoszumowa Wavin AS, wentylacja mechaniczna z odzyskiem ciepła LWZ 180 Stiebel Eltron.
- Instalacja grzewcza52 624 złpompa ciepła + ogrzewanie podłogowe wodne.Zastosowane materiały: pompa ciepła Stiebel Eltron HPA 8kW Plus Flex, ogrzewanie podłogowe z rozdzielaczami Herz, sterowanie Salus/Heatmiser.
- Wykończenie wewnętrzne32 384 złtynki wewnętrzne gipsowe + wylewki cementowe. Bez gładzi, farb, podłóg i drzwi.Zastosowane materiały: tynki cementowo-wapienne Baumit MPI25, wylewki anhydrytowe Knauf FE 80.
- Wykończenie zewnętrzne46 552 złelewacja z ociepleniem, tynki, parapety, obróbki blacharskie, rynny i rury spustowe.Zastosowane materiały: styropian grafitowy Termo Organika, tynk silikonowy Baumit, blacha powlekana Plannja, rynny stalowe Galeco STAL, podbitka z kompozytu Vox.
Podobne projekty
Dedykowane dodatki
Architekt radzi
- Czy można zrobić balkony na bocznych ścianach budynku, tak aby każda sypialnia zawierała wyjście?
Owszem, istnieje możliwość zaprojektowania balkonów na etapie adaptacji. Konieczne będzie także zrobienie wyjścia z pokoju nr 4 na ścianie szczytowej, ponieważ pokój ten zawiera tylko okna połaciowe.
- Interesuje mnie projekt E3 ECONOMIC (wersja B). Przeszklenia na tylnej ścianie budynku będą jednak drogie w wykonaniu. Czy można wstawić mniejsze okna tradycyjne?
Tak, do projektu dołączymy zgodę na zmiany w stolarce otworowej, która pozwoli wykonać modyfikacje związane z oknami oraz drzwiami zewnętrznymi.
- Witam, bardzo podoba mi się projekt domu E3 ECONOMIC (wersja B). Nie chcę jednak kłaść drewnianej elewacji na ścianach zewnętrznych. Czy można ją zastąpić innym materiałem?
Decyzję o wykończeniu ścian zewnętrznych pozostawiamy inwestorom, dlatego można zastosować dowolny materiał na ściany zewnętrzne.


