Parametry projektu E-245a
- Pow. użytkowa: 153,3 m²
- Pow. zabudowy: 237,5 m²
- Min. szerokość działki: 23,41 m
- Min. długość działki: 24,41 m
- Kondygnacje: parterowy
- Poddasze użytkowe: nie
- Poddasze do adaptacji tak
- Piwnica: nie
- Garaż: dwustanowiskowy
- Rodzaj dachu: czterospadowy
- Wysokość domu: 8,6 m
- Szerokość domu: 15,41 m
- Długość domu: 15,41 m
- Kubatura: 569,8 m³
- Nachylenie dachu: 30°
- Rodzaj zabudowy: wolnostojący
- Technologia: murowany
- Styl: nowoczesna elewacja
- Kalenica: obojętnie
- Powierzchnia dachu: 321 m²
- Liczba pokoi: 5
- Liczba łazienek: 3
- Kominek: tak
Rzut parteru
| 1. | Przedsionek | 5,96 m² | |
| 2. | Hol | 9,20 m² | |
| 3. | Schody | 4,38 m² | |
| 4. | Salon + jadalnia | 40,01 m² | |
| 5. | Kuchnia | 14,89 m² | |
| 6. | Spiżarnia | 2,38 m² | |
| 7. | Łazienka | 2,49 m² | |
| 8. | Pralnia | 1,93 m² | |
| 9. | Łazienka | 4,71 m² | |
| 10. | Sypialnia | 13,20 m² | |
| 11. | Garderoba | 3,33 m² | |
| 12. | Łazienka | 3,53 m² | |
| 13. | Sypialnia | 12,11 m² | |
| 14. | Sypialnia | 12,11 m² | |
| 15. | Rekreacja | 13,87 m² | |
| 16. | Korytarz | 9,18 m² | |
| 17. | Pom. techniczne | 5,84 m² | |
| 18. | Garaż | 33,70 m² | |
| 19. | Taras | 23,61 m² |
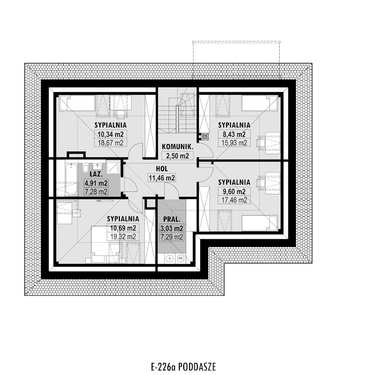
Rzut poddasza - opcja
Pakiet GRATISÓW do projektu
Dedykowane gratisy do projektu E-245a! Do zamówienia możesz wybrać do 10 dowolnych gratisów z poniższej listy.
Technologia wykonania
- Ściany: 25cm ceramika + 18cm styropian.
- Strop: wylewany żelbetowy.
- Pokrycie dachowe: dachówka cementowa.
- Ocieplenie posadzki na gruncie: 20cm styropian.
- Ocieplenie dachu: 25-30cm wełna mineralna.
- Stolarka okienna: drewniana.
- Wykończenie zewnętrzne: kamień, plytki klinkierowe lub drewno.
- Ogrzewanie: gazowe.
- Wentylacja: mechaniczna.
Koszty budowy
- Stan surowy zamknięty583 418 zł
- Stan deweloperski Economic+154 833 zł
- Stan deweloperski Premium+294 336 zł
Przygotuj się do budowy!
Zamów kosztorys inwestorski i poznaj dokładne koszty materiałów, cen robocizny i innych nakładów.
Stan surowy zamknięty uwzględnia kompletną konstrukcję wraz z elementami zabezpieczającymi budynek przed czynnikami atmosferycznymi. Obiekt jest przygotowany do wykonania kolejnych etapów.
Stan surowy zamknięty obejmuje:
- Fundamenty, ściany nośne i działowe
- Dach, strop, pokrycie dachowe
- Stolarka okienna i drzwiowa zewnętrzna
Wersja ekonomiczna stanu deweloperskiego uwzględnia instalacje, urządzenia i materiały ze średniej półki cenowej, charakteryzujące się standardową jakością.
Stan deweloperski Economic obejmuje:
- Instalacja elektryczna18 396 złkompletna instalacja elektryczna z osprzętem (gniazda, łączniki, rozdzielnica), przewody, puszki, zabezpieczenia.Zastosowane materiały: przewody NKT, osprzęt Simon 10, rozdzielnica Hager Gamma.
- Instalacja sanitarna26 061 złinstalacja wodociągowa, kanalizacyjna i gazowa bez armatury, wentylacja grawitacyjna.Zastosowane materiały: rury PP i PE Wavin, instalacja kanalizacyjna z rur HT+, wentylacja grawitacyjna.
- Instalacja grzewcza39 858 złpompa ciepła + ogrzewanie podłogowe wodne.Zastosowane materiały: pompa ciepła typu split Kaisai Arctic, ogrzewanie podłogowe z rurami Tece.
- Wykończenie wewnętrzne36 792 złtynki wewnętrzne gipsowe + wylewki cementowe. Bez gładzi, farb, podłóg i drzwi.Zastosowane materiały: tynki gipsowe Knauf MP75, wylewki cementowe miksokret Atlas Posadzka 20.
- Wykończenie zewnętrzne33 726 złelewacja z ociepleniem, tynki, parapety, obróbki blacharskie, rynny i rury spustowe.Zastosowane materiały: styropian EPS 70-040 (np. Swisspor), tynk akrylowy Atlas, blacha powlekana Plannja, rynny PCV Bryza.
Wersja premium stanu deweloperskiego uwzględnia instalacje, urządzenia i materiały z wyższej półki cenowej, wyróżniające się najwyższą jakością w obrębie grupy produktowej.
Stan deweloperski Premium obejmuje:
- Instalacja elektryczna38 325 złkompletna instalacja elektryczna z osprzętem (gniazda, łączniki, rozdzielnica), przewody, puszki, zabezpieczenia.Zastosowane materiały: przewody LappKabel, osprzęt Simon 55, Legrand Valena Life, rozdzielnica Schneider Electric.
- Instalacja sanitarna56 721 złinstalacja wodociągowa, kanalizacyjna i gazowa bez armatury, wentylacja grawitacyjna.Zastosowane materiały: rury wielowarstwowe Uponor, kanalizacja niskoszumowa Wavin AS, wentylacja mechaniczna z odzyskiem ciepła LWZ 180 Stiebel Eltron.
- Instalacja grzewcza79 716 złpompa ciepła + ogrzewanie podłogowe wodne.Zastosowane materiały: pompa ciepła Stiebel Eltron HPA 8kW Plus Flex, ogrzewanie podłogowe z rozdzielaczami Herz, sterowanie Salus/Heatmiser.
- Wykończenie wewnętrzne49 056 złtynki wewnętrzne gipsowe + wylewki cementowe. Bez gładzi, farb, podłóg i drzwi.Zastosowane materiały: tynki cementowo-wapienne Baumit MPI25, wylewki anhydrytowe Knauf FE 80.
- Wykończenie zewnętrzne70 518 złelewacja z ociepleniem, tynki, parapety, obróbki blacharskie, rynny i rury spustowe.Zastosowane materiały: styropian grafitowy Termo Organika, tynk silikonowy Baumit, blacha powlekana Plannja, rynny stalowe Galeco STAL, podbitka z kompozytu Vox.
Warianty
- E-245
- Pow. użytkowa:163,4 m²
- Technologia:murowany
- Garaż:jednostanowiskowy
- Min. wymiary działki:24,41 x 23,41 m


