Pow. użytkowa
118,82 m²
Pokoje
5
Łazienki
3
Garaż
1
Pow. zabudowy
95,93 m²
Koszt SSZ
319 921 zł
Kąt dachu
30°
Koniec promocji za:
4 140 zł
Cena katalogowa: 4 490 zł
Najniższa cena z 30 dni przed obniżką: 4 140 zł
Dostępność: 3 - 5 dni roboczych
Co zawiera projekt?
Zawartość projektu obejmuje pełną dokumentację zgodną z aktualnym prawem budowlanym oraz pakiet bezpłatnych dodatków.
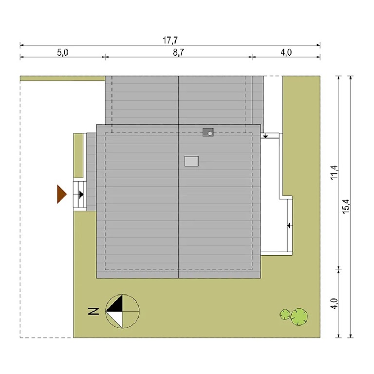
Dowiedz się więcejRzut parteru 77,23 m²
Rzut poddasza 73,69 m²
Chcesz wprowadzić zmiany w projekcie?
Zapytaj naszego Doradcę o możliwe modyfikacje. Ekspert przeanalizuje ich opłacalność i podpowie, co warto zmienić w Twoim projekcie.
Przepraszamy, do projektu Topaz Delta Duo nie opracowaliśmy jeszcze szczegółowego opisu. Pracujemy nad jego uzupełnieniem, aby mogli Państwo w pełni zapoznać się z założeniami i możliwościami budynku.
Zadzwoń 52 384 49 90 lub
Zamów kosztorys inwestorski i poznaj dokładne koszty materiałów, cen robocizny i innych nakładów.
Stan surowy zamknięty uwzględnia kompletną konstrukcję wraz z elementami zabezpieczającymi budynek przed czynnikami atmosferycznymi. Obiekt jest przygotowany do wykonania kolejnych etapów.
Stan surowy zamknięty obejmuje:
Wersja ekonomiczna stanu deweloperskiego uwzględnia instalacje, urządzenia i materiały ze średniej półki cenowej, charakteryzujące się standardową jakością.
Stan deweloperski Economic obejmuje:
Wersja premium stanu deweloperskiego uwzględnia instalacje, urządzenia i materiały z wyższej półki cenowej, wyróżniające się najwyższą jakością w obrębie grupy produktowej.
Stan deweloperski Premium obejmuje:
Kupujesz projekt domu, dostajesz wsparcie warte tysiące złotych. Konkretne rabaty w sklepach budowlanych, konsultacje z ekspertami oraz atrakcyjne wyceny, które realnie obniżą koszty budowy Twojego domu. Wybierz maksymalnie 10 dodatków i zacznij budowę z przewagą, jaką daje tylko Tooba.pl.



Buduj świadomie od pierwszego kroku. Płatne dodatki pozwalają rozwinąć projekt o dodatkowe opracowania, które wspierają proces budowy i ograniczają ryzyko błędów. Wybierz rozwiązania, które dają Ci większą kontrolę nad kosztami, harmonogramem i przebiegiem inwestycji.
Jesteśmy dla Ciebie dostępni:
pon. – pt.
8:00 – 20:00
Zależy Ci na kontakcie z Doradcą w konkretnym terminie?
Wolisz kontakt mailowy? Nie ma problemu, czekamy na Twoją wiadomość!