Parametry projektu Szyper 6 dr-S
- Pow. użytkowa: 47,42 m²
- Pow. zabudowy: 61,09 m²
- Min. szerokość działki: 17,66 m
- Min. długość działki: 20,26 m
- Kondygnacje: parterowy
- Poddasze użytkowe: nie
- Poddasze do adaptacji nie
- Strych: nie
- Piwnica: nie
- Garaż: bez garażu
- Rodzaj dachu: wielospadowy
- Wysokość domu: 6,09 m
- Szerokość domu: 8,66 m
- Długość domu: 9,26 m
- Kubatura: 255 m³
- Nachylenie dachu: 30°
- Rodzaj zabudowy: letniskowy
- Technologia: drewniany - szkielet
- Styl: tradycyjny
- Kalenica: równoległa do drogi
- Powierzchnia dachu: 100 m²
- Liczba pokoi: 3
- Liczba łazienek: 1
- Kominek: tak
- Współczynnik EP: 94,11 kWh/(m²rok)
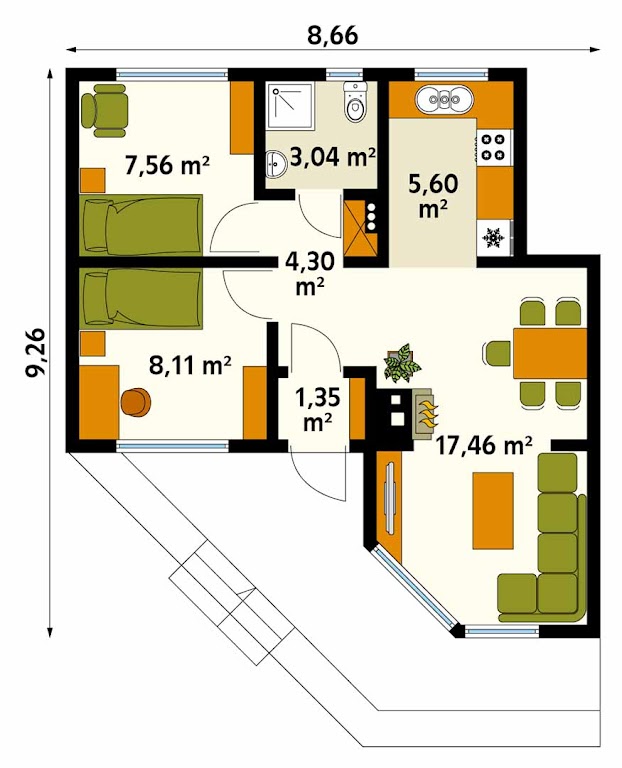
Rzut parteru
Pakiet GRATISÓW do projektu
Dedykowane gratisy do projektu Szyper 6 dr-S! Do zamówienia możesz wybrać do 10 dowolnych gratisów z poniższej listy.
Opis projektu Szyper 6 dr-S
Szyper dr-S przedstawia niewielki parterowy dom letniskowy o niebanalnej architekturze. Ta propozycja przede wszystkim zainteresuje Inwestorów, którzy chcieliby cieszyć się na swojej działce przytulnym, kameralnym drewnianym budynkiem. Szyper dr-S nie tylko zapewni im komfortowe warunki wypoczynku, ale także pozwoli na zaproszenie na weekendowego grilla rodziny i znajomych. Przy oryginalnej bryle budynku zaprojektowano także przyjemny taras naziemny z atrakcyjną, drewnianą pergolą.
Do wnętrza domu prowadzi wiatrołap. Dalej znajduje się hol połączony z obszernym pokojem dziennym, w którym obok części wypoczynkowej wyznaczono także miejsce na duży stół. W salonie umieszczono kominek, który skutecznie ogrzeje to wnętrze w chłodniejsze wieczory. Do pokoju dziennego przylega kuchnia. Z holu dostępna jest także łazienka z prysznicem oraz dwie wygodne sypialnie.
Technologia wykonania
Koszty budowy
- Stan surowy zamknięty145 105 zł
- Stan deweloperski Economic+47 893 zł
- Stan deweloperski Premium+91 045 zł
Przygotuj się do budowy!
Zamów kosztorys inwestorski i poznaj dokładne koszty materiałów, cen robocizny i innych nakładów.
Stan surowy zamknięty uwzględnia kompletną konstrukcję wraz z elementami zabezpieczającymi budynek przed czynnikami atmosferycznymi. Obiekt jest przygotowany do wykonania kolejnych etapów.
Stan surowy zamknięty obejmuje:
- Fundamenty, ściany nośne i działowe
- Dach, strop, pokrycie dachowe
- Stolarka okienna i drzwiowa zewnętrzna
Wersja ekonomiczna stanu deweloperskiego uwzględnia instalacje, urządzenia i materiały ze średniej półki cenowej, charakteryzujące się standardową jakością.
Stan deweloperski Economic obejmuje:
- Instalacja elektryczna5 690 złkompletna instalacja elektryczna z osprzętem (gniazda, łączniki, rozdzielnica), przewody, puszki, zabezpieczenia.Zastosowane materiały: przewody NKT, osprzęt Simon 10, rozdzielnica Hager Gamma.
- Instalacja sanitarna8 061 złinstalacja wodociągowa, kanalizacyjna i gazowa bez armatury, wentylacja grawitacyjna.Zastosowane materiały: rury PP i PE Wavin, instalacja kanalizacyjna z rur HT+, wentylacja grawitacyjna.
- Instalacja grzewcza12 329 złpompa ciepła + ogrzewanie podłogowe wodne.Zastosowane materiały: pompa ciepła typu split Kaisai Arctic, ogrzewanie podłogowe z rurami Tece.
- Wykończenie wewnętrzne11 381 złtynki wewnętrzne gipsowe + wylewki cementowe. Bez gładzi, farb, podłóg i drzwi.Zastosowane materiały: tynki gipsowe Knauf MP75, wylewki cementowe miksokret Atlas Posadzka 20.
- Wykończenie zewnętrzne10 432 złelewacja z ociepleniem, tynki, parapety, obróbki blacharskie, rynny i rury spustowe.Zastosowane materiały: styropian EPS 70-040 (np. Swisspor), tynk akrylowy Atlas, blacha powlekana Plannja, rynny PCV Bryza.
Wersja premium stanu deweloperskiego uwzględnia instalacje, urządzenia i materiały z wyższej półki cenowej, wyróżniające się najwyższą jakością w obrębie grupy produktowej.
Stan deweloperski Premium obejmuje:
- Instalacja elektryczna11 855 złkompletna instalacja elektryczna z osprzętem (gniazda, łączniki, rozdzielnica), przewody, puszki, zabezpieczenia.Zastosowane materiały: przewody LappKabel, osprzęt Simon 55, Legrand Valena Life, rozdzielnica Schneider Electric.
- Instalacja sanitarna17 545 złinstalacja wodociągowa, kanalizacyjna i gazowa bez armatury, wentylacja grawitacyjna.Zastosowane materiały: rury wielowarstwowe Uponor, kanalizacja niskoszumowa Wavin AS, wentylacja mechaniczna z odzyskiem ciepła LWZ 180 Stiebel Eltron.
- Instalacja grzewcza24 658 złpompa ciepła + ogrzewanie podłogowe wodne.Zastosowane materiały: pompa ciepła Stiebel Eltron HPA 8kW Plus Flex, ogrzewanie podłogowe z rozdzielaczami Herz, sterowanie Salus/Heatmiser.
- Wykończenie wewnętrzne15 174 złtynki wewnętrzne gipsowe + wylewki cementowe. Bez gładzi, farb, podłóg i drzwi.Zastosowane materiały: tynki cementowo-wapienne Baumit MPI25, wylewki anhydrytowe Knauf FE 80.
- Wykończenie zewnętrzne21 813 złelewacja z ociepleniem, tynki, parapety, obróbki blacharskie, rynny i rury spustowe.Zastosowane materiały: styropian grafitowy Termo Organika, tynk silikonowy Baumit, blacha powlekana Plannja, rynny stalowe Galeco STAL, podbitka z kompozytu Vox.
Warianty
- Szyper dr-S
- Pow. użytkowa:64,03 m²
- Technologia:drewniany - szkielet
- Garaż:bez garażu
- Min. wymiary działki:20,37 x 19,87 m
- Traper bal
- Pow. użytkowa:56 m²
- Technologia:z bali
- Garaż:bez garażu
- Min. wymiary działki:17,25 x 22,95 m
- Szyper 2 dr-S
- Pow. użytkowa:93,2 m²
- Technologia:drewniany - szkielet
- Garaż:jednostanowiskowy
- Min. wymiary działki:20,24 x 26,64 m
- Atlas 2 KO
- Pow. użytkowa:65,66 m²
- Technologia:murowany
- Garaż:bez garażu
- Min. wymiary działki:18,65 x 18,15 m
- Szyper M KO
- Pow. użytkowa:63,09 m²
- Technologia:murowany
- Garaż:bez garażu
- Min. wymiary działki:18,65 x 17,15 m
- Szyper 11
- Pow. użytkowa:102,63 m²
- Technologia:murowany
- Garaż:bez garażu
- Min. wymiary działki:19,55 x 20,19 m
- Szyper 7 bal-S
- Pow. użytkowa:75,5 m²
- Technologia:z bali
- Garaż:bez garażu
- Min. wymiary działki:20,42 x 19,92 m
- Best dr-S
- Pow. użytkowa:34,6 m²
- Technologia:drewniany - szkielet
- Garaż:bez garażu
- Min. wymiary działki:17,2 x 19,2 m
- Szyper 4 dr-S
- Pow. użytkowa:86,01 m²
- Technologia:drewniany - szkielet
- Garaż:bez garażu
- Min. wymiary działki:20,34 x 22,84 m
- Szyper dr-S
- Pow. użytkowa:64,03 m²
- Technologia:drewniany - szkielet
- Garaż:bez garażu
- Min. wymiary działki:20,37 x 19,87 m
- Szyper 5 CE
- Pow. użytkowa:84,58 m²
- Technologia:murowany
- Garaż:bez garażu
- Min. wymiary działki:18,65 x 21,65 m
- Szyper 3 CE
- Pow. użytkowa:89,4 m²
- Technologia:murowany
- Garaż:jednostanowiskowy
- Min. wymiary działki:18,49 x 23,89 m
- Szyper 2 dr-S
- Pow. użytkowa:93,2 m²
- Technologia:drewniany - szkielet
- Garaż:jednostanowiskowy
- Min. wymiary działki:20,24 x 26,64 m
- Szyper 7 bal-S
- Pow. użytkowa:75,5 m²
- Technologia:z bali
- Garaż:bez garażu
- Min. wymiary działki:20,42 x 19,92 m
- Szyper 9 Y
- Pow. użytkowa:117,7 m²
- Technologia:murowany
- Garaż:jednostanowiskowy
- Min. wymiary działki:18,48 x 22,58 m
- Szyper M KO
- Pow. użytkowa:63,09 m²
- Technologia:murowany
- Garaż:bez garażu
- Min. wymiary działki:18,65 x 17,15 m
Podobne projekty
Dedykowane dodatki
Architekt radzi
- Czy w projekcie Szyper 6 dr-S istnieje możliwość użytkowania poddasza?
W projekcie Szyper 6 dr-S nie przewidziano takiej możliwości, ale polecamy projekt Szyper 4 dr-S, w którym poddasze ma charakter użytkowy.
- Czy istnieje wersja całoroczna projektu Szyper 6 dr-S z bali?
Posiadamy w ofercie projekt Szyper 7, który jest wariantem powyższego projektu przygotowanym w technologii z bali. Jest to jednak dom letniskowy, dlatego należy go zaadaptować na całoroczny, odpowiednio docieplając i wyposażając go w system ogrzewania. Ściany zewnętrzne w projekcie Szyper 7 składają się z bala drewnianego o grubości 12 cm docieplonego od wewnątrz wełną mineralną o grubości 10 cm, obite są boazerią wewnątrz.


