Parametry projektu MJS-104-B
- Pow. użytkowa: 172,14 m²
- Pow. zabudowy: 115,7 m²
- Min. szerokość działki: 12,9 m
- Min. długość działki: 22,4 m
- Kondygnacje: piętrowy
- Poddasze użytkowe: nie
- Poddasze do adaptacji tak
- Piwnica: nie
- Garaż: jednostanowiskowy
- Rodzaj dachu: wielospadowy
- Wysokość domu: 9 m
- Szerokość domu: 8,9 m
- Długość domu: 14,4 m
- Kubatura: 1039,2 m³
- Nachylenie dachu: 16°
- Rodzaj zabudowy: bliźniaczy
- Technologia: murowany
- Styl: nowoczesna elewacja
- Kalenica: równoległa do drogi
- Liczba pokoi: 4
- Liczba łazienek: 2
- Kominek: tak
Rzut parteru
Rzut piętra
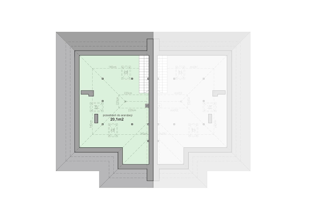
Rzut poddasza
Pakiet GRATISÓW do projektu
Dedykowane gratisy do projektu MJS-104-B! Do zamówienia możesz wybrać do 10 dowolnych gratisów z poniższej listy.
Opis projektu MJS-104-B
Idealne rozwiązanie dla działek pod zabudowę bliźniaczą, jako ostatni segment zabudowy szeregowej jak i również dom wolnostojący na wąskiej działce. Budynek o zwartej bryle, trzykondygnacyjny (dwie pełne kondygnacje+użytkowe poddasze), kryty dachem wielospadowym o kącie nachylenia połaci dachowych – 16,7°. Szerokość elewacji frontowej 8,9m. W elewacji frontowej cofnięta część wejściowa na głębokość 1,7m. Elewacje zaprojektowano jako płaską ze zróżnicowanym wykończeniem, tynk oraz deska elewacyjna. Dach wyłożony blachą tytanową w kolorze grafitowym. Budynek bez podpiwniczenia.
Technologia wykonania
- Ściany: porotherm 25cm + ocieplenie 20cm.
- Fundament: ławy fundamentowe.
- Dach: kopertowy, blacha tytanowa w kolorze grafitowym.
- Elewacja tynkowana, deska elewacyjna.
- Ogrzewanie: podlogowe / drabinkowe (łazienki).
- Źródło ciepła: kocioł gazowy.
Koszty budowy
- Stan surowy zamknięty556 748 zł
- Stan deweloperski Economic+173 862 zł
- Stan deweloperski Premium+330 509 zł
Przygotuj się do budowy!
Zamów kosztorys inwestorski i poznaj dokładne koszty materiałów, cen robocizny i innych nakładów.
Stan surowy zamknięty uwzględnia kompletną konstrukcję wraz z elementami zabezpieczającymi budynek przed czynnikami atmosferycznymi. Obiekt jest przygotowany do wykonania kolejnych etapów.
Stan surowy zamknięty obejmuje:
- Fundamenty, ściany nośne i działowe
- Dach, strop, pokrycie dachowe
- Stolarka okienna i drzwiowa zewnętrzna
Wersja ekonomiczna stanu deweloperskiego uwzględnia instalacje, urządzenia i materiały ze średniej półki cenowej, charakteryzujące się standardową jakością.
Stan deweloperski Economic obejmuje:
- Instalacja elektryczna20 657 złkompletna instalacja elektryczna z osprzętem (gniazda, łączniki, rozdzielnica), przewody, puszki, zabezpieczenia.Zastosowane materiały: przewody NKT, osprzęt Simon 10, rozdzielnica Hager Gamma.
- Instalacja sanitarna29 264 złinstalacja wodociągowa, kanalizacyjna i gazowa bez armatury, wentylacja grawitacyjna.Zastosowane materiały: rury PP i PE Wavin, instalacja kanalizacyjna z rur HT+, wentylacja grawitacyjna.
- Instalacja grzewcza44 756 złpompa ciepła + ogrzewanie podłogowe wodne.Zastosowane materiały: pompa ciepła typu split Kaisai Arctic, ogrzewanie podłogowe z rurami Tece.
- Wykończenie wewnętrzne41 314 złtynki wewnętrzne gipsowe + wylewki cementowe. Bez gładzi, farb, podłóg i drzwi.Zastosowane materiały: tynki gipsowe Knauf MP75, wylewki cementowe miksokret Atlas Posadzka 20.
- Wykończenie zewnętrzne37 871 złelewacja z ociepleniem, tynki, parapety, obróbki blacharskie, rynny i rury spustowe.Zastosowane materiały: styropian EPS 70-040 (np. Swisspor), tynk akrylowy Atlas, blacha powlekana Plannja, rynny PCV Bryza.
Wersja premium stanu deweloperskiego uwzględnia instalacje, urządzenia i materiały z wyższej półki cenowej, wyróżniające się najwyższą jakością w obrębie grupy produktowej.
Stan deweloperski Premium obejmuje:
- Instalacja elektryczna43 035 złkompletna instalacja elektryczna z osprzętem (gniazda, łączniki, rozdzielnica), przewody, puszki, zabezpieczenia.Zastosowane materiały: przewody LappKabel, osprzęt Simon 55, Legrand Valena Life, rozdzielnica Schneider Electric.
- Instalacja sanitarna63 692 złinstalacja wodociągowa, kanalizacyjna i gazowa bez armatury, wentylacja grawitacyjna.Zastosowane materiały: rury wielowarstwowe Uponor, kanalizacja niskoszumowa Wavin AS, wentylacja mechaniczna z odzyskiem ciepła LWZ 180 Stiebel Eltron.
- Instalacja grzewcza89 513 złpompa ciepła + ogrzewanie podłogowe wodne.Zastosowane materiały: pompa ciepła Stiebel Eltron HPA 8kW Plus Flex, ogrzewanie podłogowe z rozdzielaczami Herz, sterowanie Salus/Heatmiser.
- Wykończenie wewnętrzne55 085 złtynki wewnętrzne gipsowe + wylewki cementowe. Bez gładzi, farb, podłóg i drzwi.Zastosowane materiały: tynki cementowo-wapienne Baumit MPI25, wylewki anhydrytowe Knauf FE 80.
- Wykończenie zewnętrzne79 184 złelewacja z ociepleniem, tynki, parapety, obróbki blacharskie, rynny i rury spustowe.Zastosowane materiały: styropian grafitowy Termo Organika, tynk silikonowy Baumit, blacha powlekana Plannja, rynny stalowe Galeco STAL, podbitka z kompozytu Vox.


