Parametry projektu Ester sz (jeden segment)
- Pow. użytkowa (bez garażu): 113,4 m²
- Pow. zabudowy: 95,5 m²
- Min. szerokość działki: 11,07 m
- Min. długość działki: 22,01 m
- Kondygnacje: parterowy
- Poddasze użytkowe: tak
- Poddasze do adaptacji nie
- Strych: nie
- Piwnica: nie
- Garaż: jednostanowiskowy
- Rodzaj dachu: dwuspadowy
- Wysokość domu: 9,1 m
- Szerokość domu: 7,07 m
- Długość domu: 15,01 m
- Kubatura: 624 m³
- Nachylenie dachu: 35°
- Rodzaj zabudowy: szeregowy
- Technologia: murowany
- Styl: tradycyjny
- Kalenica: równoległa do drogi
- Kominek: tak
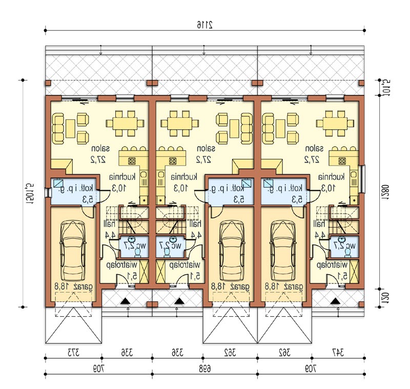
Rzut parteru
Rzut poddasza
Pakiet GRATISÓW do projektu
Dedykowane gratisy do projektu Ester sz (jeden segment)! Do zamówienia możesz wybrać do 10 dowolnych gratisów z poniższej listy.
Opis projektu Ester sz (jeden segment)
„Ester sz” jest wygodnym domem w zabudowie szeregowej, przeznaczonym dla 4-5 osobowej rodziny. Dom może być również zrealizowany jako budynek wolnostojący (projekt Ester) lub bliźniak (projekt Ester bl) - ze względu na niewielką szerokość i brak okien na ścianie bocznej jest to możliwe na bardzo wąskiej działce. Na parterze znajduje się obszerny wiatrołap, wc, hall, kuchnia otwarta na salon kominkowy z jadalnią, kotłownię z pomieszczeniem gospodarczym i wbudowany garaż jednostanowiskowy. Na poddaszu zlokalizowano: hall, obszerna sypialnia rodziców z garderobą i tarasem, garderoba ogólnodostępna, łazienka i dwie dodatkowe sypialnie. W szczycie można wygospodarować dodatkowe pomieszczenie gospodarcze– strych. Dom ma bardzo atrakcyjny wygląd, wyróżniający formą i ciekawą kolorystyką, dom Ester sz z zabudowy sąsiadującej. Przekrycie dwuspadowym dachem, czytelna konstrukcja, sprawia, że nie jest trudny w realizacji, co przekłada się na niższe koszty wybudowania. Możliwe jest zrealizowanie kilku lub kilkunastu segmentów „Ester sz” w dowolnych konfiguracjach.
Wszystkie dane i ceny dotyczą jednego segmentu.
Koszty budowy
- Stan surowy zamknięty318 036 zł
- Stan deweloperski Economic+114 534 zł
- Stan deweloperski Premium+217 728 zł
Przygotuj się do budowy!
Zamów kosztorys inwestorski i poznaj dokładne koszty materiałów, cen robocizny i innych nakładów.
Stan surowy zamknięty uwzględnia kompletną konstrukcję wraz z elementami zabezpieczającymi budynek przed czynnikami atmosferycznymi. Obiekt jest przygotowany do wykonania kolejnych etapów.
Stan surowy zamknięty obejmuje:
- Fundamenty, ściany nośne i działowe
- Dach, strop, pokrycie dachowe
- Stolarka okienna i drzwiowa zewnętrzna
Wersja ekonomiczna stanu deweloperskiego uwzględnia instalacje, urządzenia i materiały ze średniej półki cenowej, charakteryzujące się standardową jakością.
Stan deweloperski Economic obejmuje:
- Instalacja elektryczna13 608 złkompletna instalacja elektryczna z osprzętem (gniazda, łączniki, rozdzielnica), przewody, puszki, zabezpieczenia.Zastosowane materiały: przewody NKT, osprzęt Simon 10, rozdzielnica Hager Gamma.
- Instalacja sanitarna19 278 złinstalacja wodociągowa, kanalizacyjna i gazowa bez armatury, wentylacja grawitacyjna.Zastosowane materiały: rury PP i PE Wavin, instalacja kanalizacyjna z rur HT+, wentylacja grawitacyjna.
- Instalacja grzewcza29 484 złpompa ciepła + ogrzewanie podłogowe wodne.Zastosowane materiały: pompa ciepła typu split Kaisai Arctic, ogrzewanie podłogowe z rurami Tece.
- Wykończenie wewnętrzne27 216 złtynki wewnętrzne gipsowe + wylewki cementowe. Bez gładzi, farb, podłóg i drzwi.Zastosowane materiały: tynki gipsowe Knauf MP75, wylewki cementowe miksokret Atlas Posadzka 20.
- Wykończenie zewnętrzne24 948 złelewacja z ociepleniem, tynki, parapety, obróbki blacharskie, rynny i rury spustowe.Zastosowane materiały: styropian EPS 70-040 (np. Swisspor), tynk akrylowy Atlas, blacha powlekana Plannja, rynny PCV Bryza.
Wersja premium stanu deweloperskiego uwzględnia instalacje, urządzenia i materiały z wyższej półki cenowej, wyróżniające się najwyższą jakością w obrębie grupy produktowej.
Stan deweloperski Premium obejmuje:
- Instalacja elektryczna28 350 złkompletna instalacja elektryczna z osprzętem (gniazda, łączniki, rozdzielnica), przewody, puszki, zabezpieczenia.Zastosowane materiały: przewody LappKabel, osprzęt Simon 55, Legrand Valena Life, rozdzielnica Schneider Electric.
- Instalacja sanitarna41 958 złinstalacja wodociągowa, kanalizacyjna i gazowa bez armatury, wentylacja grawitacyjna.Zastosowane materiały: rury wielowarstwowe Uponor, kanalizacja niskoszumowa Wavin AS, wentylacja mechaniczna z odzyskiem ciepła LWZ 180 Stiebel Eltron.
- Instalacja grzewcza58 968 złpompa ciepła + ogrzewanie podłogowe wodne.Zastosowane materiały: pompa ciepła Stiebel Eltron HPA 8kW Plus Flex, ogrzewanie podłogowe z rozdzielaczami Herz, sterowanie Salus/Heatmiser.
- Wykończenie wewnętrzne36 288 złtynki wewnętrzne gipsowe + wylewki cementowe. Bez gładzi, farb, podłóg i drzwi.Zastosowane materiały: tynki cementowo-wapienne Baumit MPI25, wylewki anhydrytowe Knauf FE 80.
- Wykończenie zewnętrzne52 164 złelewacja z ociepleniem, tynki, parapety, obróbki blacharskie, rynny i rury spustowe.Zastosowane materiały: styropian grafitowy Termo Organika, tynk silikonowy Baumit, blacha powlekana Plannja, rynny stalowe Galeco STAL, podbitka z kompozytu Vox.
Warianty
- Ester
- Pow. użytkowa:113,4 m²
- Technologia:murowany
- Garaż:jednostanowiskowy
- Min. wymiary działki:22,02 x 14,2 m
- Ester bliźniak (jeden segment)
- Pow. użytkowa:113,4 m²
- Technologia:murowany
- Garaż:jednostanowiskowy
- Min. wymiary działki:11,08 x 22,01 m


