Parametry projektu Domidea 7
- Pow. użytkowa: 147,36 m²
- Pow. zabudowy: 243,19 m²
- Min. szerokość działki: 25,7 m
- Min. długość działki: 25,4 m
- Kondygnacje: parterowy
- Poddasze użytkowe: nie
- Poddasze do adaptacji tak
- Piwnica: nie
- Garaż: dwustanowiskowy
- Rodzaj dachu: czterospadowy
- Wysokość domu: 8,28 m
- Szerokość domu: 17,7 m
- Długość domu: 17,4 m
- Kubatura: 662,22 m³
- Nachylenie dachu: 30°
- Rodzaj zabudowy: wolnostojący
- Technologia: murowany
- Styl: nowoczesny
- Kalenica: równoległa do drogi
- Powierzchnia dachu: 283,73 m²
- Liczba pokoi: 5
- Liczba łazienek: 2
- Kominek: tak
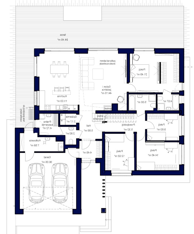
Rzut parteru
| 1. | Wiatrołap | 4,48 m² | |
| 2. | WC | 2,80 m² | |
| 3. | Hall | 5,89 m² | |
| 4. | Łazienka | 5,00 m² | |
| 5. | Spiżarnia | 2,17 m² | |
| 6. | Kuchnia | 11,03 m² | |
| 7. | Salon i jadalnia | 44,15 m² | |
| 8. | Przedpokój | 5,32 m² | |
| 9. | Pokoj | 12,02 m² | |
| 10. | Pokój | 14,40 m² | |
| 11. | Pokój | 9,83 m² | |
| 12. | Pokój | 21,49 m² | |
| 13. | Łazienka | 4,07 m² | |
| 14. | Pralnia + suszarnia | 4,72 m² | |
| 15. | Garaż | 36,06 m² | |
| 16. | Kotłownia | 7,59 m² | |
| 17. | Taras | 94,46 m² |
Rzut poddasza do adaptacji
Pakiet GRATISÓW do projektu
Dedykowane gratisy do projektu Domidea 7! Do zamówienia możesz wybrać do 10 dowolnych gratisów z poniższej listy.
Koszty budowy
- Stan surowy zamknięty562 866 zł
- Stan deweloperski Economic+148 833 zł
- Stan deweloperski Premium+282 931 zł
Przygotuj się do budowy!
Zamów kosztorys inwestorski i poznaj dokładne koszty materiałów, cen robocizny i innych nakładów.
Stan surowy zamknięty uwzględnia kompletną konstrukcję wraz z elementami zabezpieczającymi budynek przed czynnikami atmosferycznymi. Obiekt jest przygotowany do wykonania kolejnych etapów.
Stan surowy zamknięty obejmuje:
- Fundamenty, ściany nośne i działowe
- Dach, strop, pokrycie dachowe
- Stolarka okienna i drzwiowa zewnętrzna
Wersja ekonomiczna stanu deweloperskiego uwzględnia instalacje, urządzenia i materiały ze średniej półki cenowej, charakteryzujące się standardową jakością.
Stan deweloperski Economic obejmuje:
- Instalacja elektryczna17 683 złkompletna instalacja elektryczna z osprzętem (gniazda, łączniki, rozdzielnica), przewody, puszki, zabezpieczenia.Zastosowane materiały: przewody NKT, osprzęt Simon 10, rozdzielnica Hager Gamma.
- Instalacja sanitarna25 051 złinstalacja wodociągowa, kanalizacyjna i gazowa bez armatury, wentylacja grawitacyjna.Zastosowane materiały: rury PP i PE Wavin, instalacja kanalizacyjna z rur HT+, wentylacja grawitacyjna.
- Instalacja grzewcza38 314 złpompa ciepła + ogrzewanie podłogowe wodne.Zastosowane materiały: pompa ciepła typu split Kaisai Arctic, ogrzewanie podłogowe z rurami Tece.
- Wykończenie wewnętrzne35 366 złtynki wewnętrzne gipsowe + wylewki cementowe. Bez gładzi, farb, podłóg i drzwi.Zastosowane materiały: tynki gipsowe Knauf MP75, wylewki cementowe miksokret Atlas Posadzka 20.
- Wykończenie zewnętrzne32 419 złelewacja z ociepleniem, tynki, parapety, obróbki blacharskie, rynny i rury spustowe.Zastosowane materiały: styropian EPS 70-040 (np. Swisspor), tynk akrylowy Atlas, blacha powlekana Plannja, rynny PCV Bryza.
Wersja premium stanu deweloperskiego uwzględnia instalacje, urządzenia i materiały z wyższej półki cenowej, wyróżniające się najwyższą jakością w obrębie grupy produktowej.
Stan deweloperski Premium obejmuje:
- Instalacja elektryczna36 840 złkompletna instalacja elektryczna z osprzętem (gniazda, łączniki, rozdzielnica), przewody, puszki, zabezpieczenia.Zastosowane materiały: przewody LappKabel, osprzęt Simon 55, Legrand Valena Life, rozdzielnica Schneider Electric.
- Instalacja sanitarna54 523 złinstalacja wodociągowa, kanalizacyjna i gazowa bez armatury, wentylacja grawitacyjna.Zastosowane materiały: rury wielowarstwowe Uponor, kanalizacja niskoszumowa Wavin AS, wentylacja mechaniczna z odzyskiem ciepła LWZ 180 Stiebel Eltron.
- Instalacja grzewcza76 627 złpompa ciepła + ogrzewanie podłogowe wodne.Zastosowane materiały: pompa ciepła Stiebel Eltron HPA 8kW Plus Flex, ogrzewanie podłogowe z rozdzielaczami Herz, sterowanie Salus/Heatmiser.
- Wykończenie wewnętrzne47 155 złtynki wewnętrzne gipsowe + wylewki cementowe. Bez gładzi, farb, podłóg i drzwi.Zastosowane materiały: tynki cementowo-wapienne Baumit MPI25, wylewki anhydrytowe Knauf FE 80.
- Wykończenie zewnętrzne67 786 złelewacja z ociepleniem, tynki, parapety, obróbki blacharskie, rynny i rury spustowe.Zastosowane materiały: styropian grafitowy Termo Organika, tynk silikonowy Baumit, blacha powlekana Plannja, rynny stalowe Galeco STAL, podbitka z kompozytu Vox.
Warianty
- Domidea 6
- Pow. użytkowa:129,34 m²
- Technologia:murowany
- Garaż:dwustanowiskowy
- Min. wymiary działki:25,3 x 23,7 m
- Domidea 2
- Pow. użytkowa:119,4 m²
- Technologia:murowany
- Garaż:jednostanowiskowy
- Min. wymiary działki:25,2 x 22,7 m
- Domidea 2 dN
- Pow. użytkowa:117,62 m²
- Technologia:murowany
- Garaż:jednostanowiskowy
- Min. wymiary działki:25,3 x 22,7 m
- Domidea 2 dNN
- Pow. użytkowa:117,23 m²
- Technologia:murowany
- Garaż:jednostanowiskowy
- Min. wymiary działki:25,3 x 22,7 m
- Domidea 2 FN
- Pow. użytkowa:120,91 m²
- Technologia:murowany
- Garaż:jednostanowiskowy
- Min. wymiary działki:25,3 x 22,7 m
- Domidea 2d
- Pow. użytkowa:117,66 m²
- Technologia:murowany
- Garaż:jednostanowiskowy
- Min. wymiary działki:25,2 x 22,7 m


