Parametry projektu G295
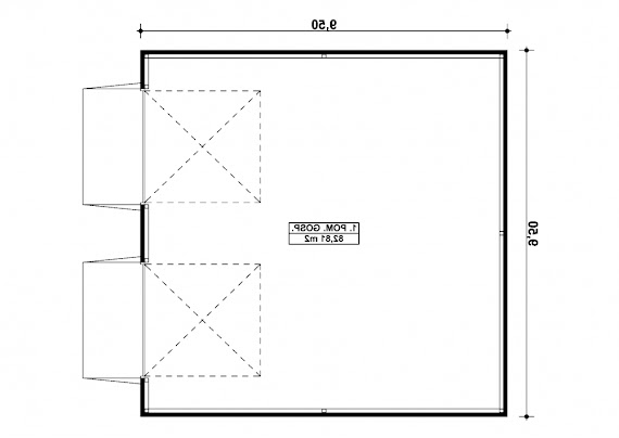
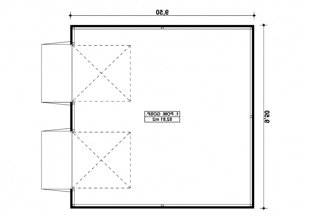
- Pow. użytkowa: 82,81 m²
- Pow. zabudowy: 90,25 m²
- Liczba stanowisk: dwustanowiskowy
- Technologia: blaszany
- Zabudowa: garaż wolnostojący
- Rodzaj dachu: dwuspadowy
- Kalenica: prostopadła do drogi
- Nachylenie dachu: 15°
- Wysokość garażu: 4,57 m
- Szerokość garażu: 9,5 m
- Długość garażu: 9,5 m
- Wysokość pomieszczeń: 3m
- Kubatura: 364,1 m³
Opis projektu G295
Projekt G295 stanowi odpowiedź na potrzeby przedsiębiorców, którzy planują postawienie niedrogiego garażu dla samochodów dostawczych. Jest to budynek w konstrukcji stalowej o bardzo prostym kształcie: prostopadłościan zwieńczony dachem dwuspadowym o niewielkim kącie nachylenia. Więźba dachowa również jest wykonana ze stali, a pokrywa ją płyta warstwowa. G295 to praktyczny i funkcjonalny budynek, który zapewni bezpieczne schronienie dużym pojazdom, a jego budowa nie będzie przy tym droga. To znakomite rozwiązanie dla inwestorów, którzy niewielkim kosztem chcieliby zbudować solidny garaż.
W projekcie G295 zaplanowano dwie bramy wjazdowe. W środku zaparkują dwa pojazdy, pomieszczenia nie przedzielono jednak ścianą działową ani innym rodzajem przepierzenia. Jedno wspólne wnętrze ułatwi parkowanie i manewrowanie wewnątrz budynku. Powierzchnia garażu wynosi 82,81 m², a jego wysokość to 4,57 m.
Technologia wykonania
- Budynek konstrukcji stalowej.
- Ściany z płyty warstwowej.
- Bramy o wymiarach 3,00x3,00m.
- Więźba dachowa dwuspadowa, stalowa, pokryta płytą warstwową.
