Parametry projektu Z pergolą 03
- Pow. użytkowa: 169,6 m²
- Pow. zabudowy: 181,92 m²
- Min. szerokość działki: 27,68 m
- Min. długość działki: 18,45 m
- Kondygnacje: parterowy
- Poddasze użytkowe: tak
- Poddasze do adaptacji nie
- Strych: nie
- Piwnica: nie
- Garaż: dwustanowiskowy
- Rodzaj dachu: dwuspadowy
- Wysokość domu: 8,9 m
- Szerokość domu: 21,28 m
- Długość domu: 11,45 m
- Kubatura: 1215,56 m³
- Nachylenie dachu: 42°
- Rodzaj zabudowy: wolnostojący
- Technologia: murowany
- Styl: nowoczesny
- Kalenica: równoległa do drogi
- Liczba pokoi: 6
- Liczba łazienek: 3
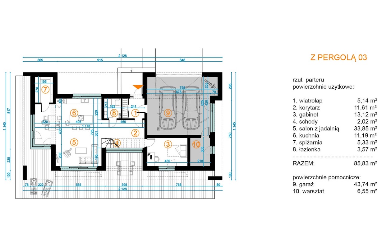
Rzut parteru
Rzut poddasza
| powierzchnia | 83,77 m² | ||
| powierzchnia po podłodze | 94,08 m² | ||
| 1. | Schody | 2,45 m² | (2,45 m²) |
| 2. | Korytarz | 11,68 m² | (11,68 m²) |
| 3. | Łazienka | 4,77 m² | (5,50 m²) |
| 4. | Sypialnia 1 | 13,44 m² | (15,41 m²) |
| 5. | Sypialnia 2 | 12,15 m² | (13,39 m²) |
| 6. | Garderoba | 4,12 m² | (5,21 m²) |
| 7. | Pralnia / kotłownia | 4,95 m² | (6,28 m²) |
| 8. | Sypialnia 3 | 12,86 m² | (14,39 m²) |
| 9. | Sypialnia 4 | 12,86 m² | (14,39 m²) |
| 10. | Łazienka | 4,49 m² | (5,38 m²) |
powierzchnia pomieszczenia po podłodze
Pakiet GRATISÓW do projektu
Dedykowane gratisy do projektu Z pergolą 03! Do zamówienia możesz wybrać do 10 dowolnych gratisów z poniższej listy.
Opis projektu Z pergolą 03
Z pergolą 03 jest to projekt domu z poddaszem użytkowym zorganizowanym w oparciu o rzut prostokąta. Parter domu stanowi dość rozrzeźbiona bryła zawierająca liczne wnęki i uskoki, podczas gdy poddasze zamyka się w regularnym układzie ścian, a wszystkie sypialnie mają dostęp do rozległego tarasu zadaszającego pomieszczenia oraz taras parteru. W ten sposób uzyskaliśmy ciekawy efekt wizualny. Na jego elewacje składają się trzy warstwy zróżnicowane kolorystycznie i materiałowo. Najbardziej zewnętrzną stanowi obramowanie budynku wykonane w białym tynku, będące też zadaszeniem tarasu oraz balustradą tarasu na poddaszu. Kolejno dostrzegamy ściany parteru wykonane z okładziny klinkierowej oraz ściany poddasza w szarym tynku. Dodatkowym atutem domu są stalowo-drewniane schody widoczne od strony ogrodu przez duże przeszklenie w ścianie zewnętrznej.
Technologia wykonania
- Fundamenty: ławy żelbetowe.
- Ściany konstrukcja: pustak ceramiczny Porotherm.
- Ściany elewacja: tynk, okładzina klinkierowa.
- Stropy: żelbetowe monolityczne.
- Dach konstrukcja: więźba drewniana płatwiowo-kleszczowa.
- Dach pokrycie: blacha stalowa cynkowana powlekana na rąbek stojący.
- Schody: stalowo-drewniane.
- Ogrzewanie kocioł: kocioł gazowy dwufunkcyjny.
- Ogrzewanie grzejniki: grzejniki ścienne + ogrzewanie podłogowe.
Koszty budowy
- Stan surowy zamknięty483 784 zł
- Stan deweloperski Economic+171 296 zł
- Stan deweloperski Premium+325 632 zł
Przygotuj się do budowy!
Zamów kosztorys inwestorski i poznaj dokładne koszty materiałów, cen robocizny i innych nakładów.
Stan surowy zamknięty uwzględnia kompletną konstrukcję wraz z elementami zabezpieczającymi budynek przed czynnikami atmosferycznymi. Obiekt jest przygotowany do wykonania kolejnych etapów.
Stan surowy zamknięty obejmuje:
- Fundamenty, ściany nośne i działowe
- Dach, strop, pokrycie dachowe
- Stolarka okienna i drzwiowa zewnętrzna
Wersja ekonomiczna stanu deweloperskiego uwzględnia instalacje, urządzenia i materiały ze średniej półki cenowej, charakteryzujące się standardową jakością.
Stan deweloperski Economic obejmuje:
- Instalacja elektryczna20 352 złkompletna instalacja elektryczna z osprzętem (gniazda, łączniki, rozdzielnica), przewody, puszki, zabezpieczenia.Zastosowane materiały: przewody NKT, osprzęt Simon 10, rozdzielnica Hager Gamma.
- Instalacja sanitarna28 832 złinstalacja wodociągowa, kanalizacyjna i gazowa bez armatury, wentylacja grawitacyjna.Zastosowane materiały: rury PP i PE Wavin, instalacja kanalizacyjna z rur HT+, wentylacja grawitacyjna.
- Instalacja grzewcza44 096 złpompa ciepła + ogrzewanie podłogowe wodne.Zastosowane materiały: pompa ciepła typu split Kaisai Arctic, ogrzewanie podłogowe z rurami Tece.
- Wykończenie wewnętrzne40 704 złtynki wewnętrzne gipsowe + wylewki cementowe. Bez gładzi, farb, podłóg i drzwi.Zastosowane materiały: tynki gipsowe Knauf MP75, wylewki cementowe miksokret Atlas Posadzka 20.
- Wykończenie zewnętrzne37 312 złelewacja z ociepleniem, tynki, parapety, obróbki blacharskie, rynny i rury spustowe.Zastosowane materiały: styropian EPS 70-040 (np. Swisspor), tynk akrylowy Atlas, blacha powlekana Plannja, rynny PCV Bryza.
Wersja premium stanu deweloperskiego uwzględnia instalacje, urządzenia i materiały z wyższej półki cenowej, wyróżniające się najwyższą jakością w obrębie grupy produktowej.
Stan deweloperski Premium obejmuje:
- Instalacja elektryczna42 400 złkompletna instalacja elektryczna z osprzętem (gniazda, łączniki, rozdzielnica), przewody, puszki, zabezpieczenia.Zastosowane materiały: przewody LappKabel, osprzęt Simon 55, Legrand Valena Life, rozdzielnica Schneider Electric.
- Instalacja sanitarna62 752 złinstalacja wodociągowa, kanalizacyjna i gazowa bez armatury, wentylacja grawitacyjna.Zastosowane materiały: rury wielowarstwowe Uponor, kanalizacja niskoszumowa Wavin AS, wentylacja mechaniczna z odzyskiem ciepła LWZ 180 Stiebel Eltron.
- Instalacja grzewcza88 192 złpompa ciepła + ogrzewanie podłogowe wodne.Zastosowane materiały: pompa ciepła Stiebel Eltron HPA 8kW Plus Flex, ogrzewanie podłogowe z rozdzielaczami Herz, sterowanie Salus/Heatmiser.
- Wykończenie wewnętrzne54 272 złtynki wewnętrzne gipsowe + wylewki cementowe. Bez gładzi, farb, podłóg i drzwi.Zastosowane materiały: tynki cementowo-wapienne Baumit MPI25, wylewki anhydrytowe Knauf FE 80.
- Wykończenie zewnętrzne78 016 złelewacja z ociepleniem, tynki, parapety, obróbki blacharskie, rynny i rury spustowe.Zastosowane materiały: styropian grafitowy Termo Organika, tynk silikonowy Baumit, blacha powlekana Plannja, rynny stalowe Galeco STAL, podbitka z kompozytu Vox.
Warianty
- Z pergolą 01A
- Pow. użytkowa:152,65 m²
- Technologia:murowany
- Garaż:bez garażu
- Min. wymiary działki:17,11 x 20,96 m
- Z pergolą 02
- Pow. użytkowa:149,31 m²
- Technologia:murowany
- Garaż:jednostanowiskowy
- Min. wymiary działki:20,9 x 21,65 m
- Z pergolą 01B
- Pow. użytkowa:152,65 m²
- Technologia:murowany
- Garaż:bez garażu
- Min. wymiary działki:17,11 x 20,96 m


