Parametry projektu Andrea segment lewy
- Pow. użytkowa: 95,9 m²
- Pow. zabudowy: 90,3 m²
- Min. szerokość działki: 10,15 m
- Min. długość działki: 20,9 m
- Kondygnacje: parterowy
- Poddasze użytkowe: tak
- Poddasze do adaptacji nie
- Strych: nie
- Piwnica: nie
- Garaż: jednostanowiskowy
- Rodzaj dachu: dwuspadowy
- Wysokość domu: 8,5 m
- Szerokość domu: 7,15 m
- Długość domu: 12,9 m
- Kubatura: 380 m³
- Nachylenie dachu: 35°
- Rodzaj zabudowy: szeregowy
- Technologia: murowany
- Styl: nowoczesny
- Kalenica: równoległa do drogi
- Liczba pokoi: 5
- Liczba łazienek: 1
- Kominek: tak
- Współczynnik EP: 67,4 kWh/(m²rok)
- Współczynnik EUco: 27,09 kWh/(m²rok)
Rzut parteru
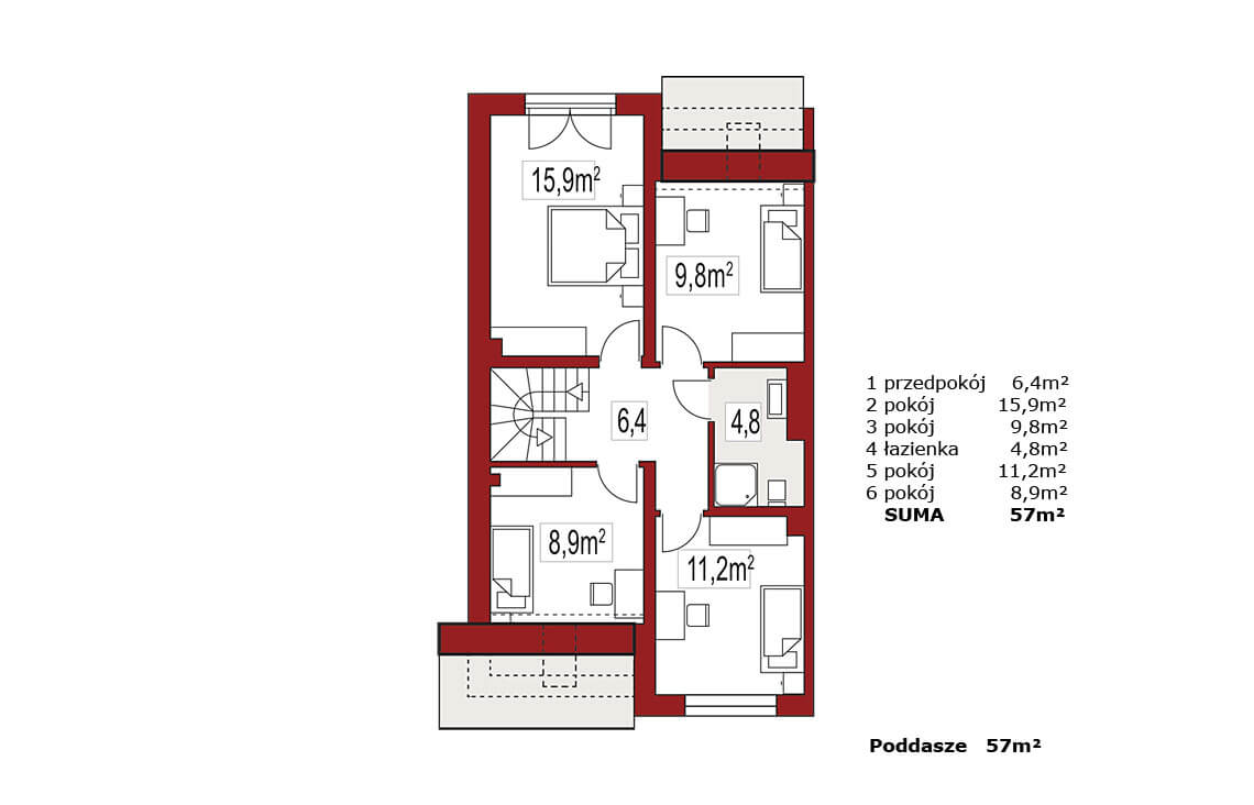
Rzut poddasza
Pakiet GRATISÓW do projektu
Dedykowane gratisy do projektu Andrea segment lewy! Do zamówienia możesz wybrać do 10 dowolnych gratisów z poniższej listy.
Opis projektu Andrea segment lewy
Projekt domu Andrea segment skrajny lewy z poddaszem użytkowym z garażem jednostanowiskowym
Andrea segment skrajny lewy z pojedynczym garażem to efektowny dom w zabudowie szeregowej lub bliźniaczej. Pięknie wyeksponowana strefa wejściowa stanowi wizytówkę domu i jednocześnie zachęca do wejścia i zamieszkania. Dzięki otwartej kuchni podczas przygotowywania posiłków mamy kontakt z domownikami przebywającymi w salonie, co sprzyja integracji rodziny. Część nocną tworzą cztery sypialnie, które dobrze sprawdzą się w przypadku 4-6-osobowej rodziny. Taras jest idealnym miejscem do organizowania rodzinnych spotkań i chwili relaksu. Jego wygląd zewnętrzny uwydatnia cechy charakterystyczne dla stylu nowoczesnego, co jest idealnym rozwiązaniem dla osób ceniących najnowsze rozwiązania.
Technologia wykonania
- Ściany: bloczek z gazobetonu 24 cm, styropian Termo Organika 20 cm, tynk.
- Strop: gęstożebrowy, żelbetowy, Teriva 1.
- Dach: dwuspadowy, nachylenie 35°, więźba drewniana, dachówka ceramiczna.
- Ocieplenie dachu: wełna mineralna ISOVER Uni Mata.
- Ogrzewanie: gazowe.
- Okna dachowe: VELUX.
Koszty budowy
- Stan surowy zamknięty273 586 zł
- Stan deweloperski Economic+96 859 zł
- Stan deweloperski Premium+184 128 zł
Przygotuj się do budowy!
Zamów kosztorys inwestorski i poznaj dokładne koszty materiałów, cen robocizny i innych nakładów.
Stan surowy zamknięty uwzględnia kompletną konstrukcję wraz z elementami zabezpieczającymi budynek przed czynnikami atmosferycznymi. Obiekt jest przygotowany do wykonania kolejnych etapów.
Stan surowy zamknięty obejmuje:
- Fundamenty, ściany nośne i działowe
- Dach, strop, pokrycie dachowe
- Stolarka okienna i drzwiowa zewnętrzna
Wersja ekonomiczna stanu deweloperskiego uwzględnia instalacje, urządzenia i materiały ze średniej półki cenowej, charakteryzujące się standardową jakością.
Stan deweloperski Economic obejmuje:
- Instalacja elektryczna11 508 złkompletna instalacja elektryczna z osprzętem (gniazda, łączniki, rozdzielnica), przewody, puszki, zabezpieczenia.Zastosowane materiały: przewody NKT, osprzęt Simon 10, rozdzielnica Hager Gamma.
- Instalacja sanitarna16 303 złinstalacja wodociągowa, kanalizacyjna i gazowa bez armatury, wentylacja grawitacyjna.Zastosowane materiały: rury PP i PE Wavin, instalacja kanalizacyjna z rur HT+, wentylacja grawitacyjna.
- Instalacja grzewcza24 934 złpompa ciepła + ogrzewanie podłogowe wodne.Zastosowane materiały: pompa ciepła typu split Kaisai Arctic, ogrzewanie podłogowe z rurami Tece.
- Wykończenie wewnętrzne23 016 złtynki wewnętrzne gipsowe + wylewki cementowe. Bez gładzi, farb, podłóg i drzwi.Zastosowane materiały: tynki gipsowe Knauf MP75, wylewki cementowe miksokret Atlas Posadzka 20.
- Wykończenie zewnętrzne21 098 złelewacja z ociepleniem, tynki, parapety, obróbki blacharskie, rynny i rury spustowe.Zastosowane materiały: styropian EPS 70-040 (np. Swisspor), tynk akrylowy Atlas, blacha powlekana Plannja, rynny PCV Bryza.
Wersja premium stanu deweloperskiego uwzględnia instalacje, urządzenia i materiały z wyższej półki cenowej, wyróżniające się najwyższą jakością w obrębie grupy produktowej.
Stan deweloperski Premium obejmuje:
- Instalacja elektryczna23 975 złkompletna instalacja elektryczna z osprzętem (gniazda, łączniki, rozdzielnica), przewody, puszki, zabezpieczenia.Zastosowane materiały: przewody LappKabel, osprzęt Simon 55, Legrand Valena Life, rozdzielnica Schneider Electric.
- Instalacja sanitarna35 483 złinstalacja wodociągowa, kanalizacyjna i gazowa bez armatury, wentylacja grawitacyjna.Zastosowane materiały: rury wielowarstwowe Uponor, kanalizacja niskoszumowa Wavin AS, wentylacja mechaniczna z odzyskiem ciepła LWZ 180 Stiebel Eltron.
- Instalacja grzewcza49 868 złpompa ciepła + ogrzewanie podłogowe wodne.Zastosowane materiały: pompa ciepła Stiebel Eltron HPA 8kW Plus Flex, ogrzewanie podłogowe z rozdzielaczami Herz, sterowanie Salus/Heatmiser.
- Wykończenie wewnętrzne30 688 złtynki wewnętrzne gipsowe + wylewki cementowe. Bez gładzi, farb, podłóg i drzwi.Zastosowane materiały: tynki cementowo-wapienne Baumit MPI25, wylewki anhydrytowe Knauf FE 80.
- Wykończenie zewnętrzne44 114 złelewacja z ociepleniem, tynki, parapety, obróbki blacharskie, rynny i rury spustowe.Zastosowane materiały: styropian grafitowy Termo Organika, tynk silikonowy Baumit, blacha powlekana Plannja, rynny stalowe Galeco STAL, podbitka z kompozytu Vox.
Warianty
- Andrea A dwurodzinny (jednorodzinny dwulokalowy)
- Pow. użytkowa:95,9 m²
- Technologia:murowany
- Garaż:jednostanowiskowy
- Min. wymiary działki:20,9 x 10,15 m
- Andrea Bliźniak B
- Pow. użytkowa:95,9 m²
- Technologia:murowany
- Garaż:jednostanowiskowy
- Min. wymiary działki:20,9 x 10,15 m
- Andrea B dwurodzinny (jednorodzinny dwulokalowy)
- Pow. użytkowa:95,9 m²
- Technologia:murowany
- Garaż:jednostanowiskowy
- Min. wymiary działki:20,9 x 10,15 m
- Andrea 4 segmenty
- Pow. użytkowa:95,9 m²
- Technologia:murowany
- Garaż:jednostanowiskowy
- Min. wymiary działki:20,9 x 10,15 m
- Andrea 5 segmentów
- Pow. użytkowa:95,9 m²
- Technologia:murowany
- Garaż:jednostanowiskowy
- Min. wymiary działki:20,9 x 10,15 m
- Andrea 6 segmentów
- Pow. użytkowa:95,9 m²
- Technologia:murowany
- Garaż:jednostanowiskowy
- Min. wymiary działki:20,9 x 10,15 m
- Andrea 3 segmenty
- Pow. użytkowa:95,9 m²
- Technologia:murowany
- Garaż:jednostanowiskowy
- Min. wymiary działki:20,9 x 10,15 m
- Andrea Bliźniak A
- Pow. użytkowa:95,9 m²
- Technologia:murowany
- Garaż:jednostanowiskowy
- Min. wymiary działki:20,9 x 10,15 m
- Andrea segment prawy
- Pow. użytkowa:95,9 m²
- Technologia:murowany
- Garaż:jednostanowiskowy
- Min. wymiary działki:20,9 x 10,15 m
- Andrea segment środkowy
- Pow. użytkowa:95,9 m²
- Technologia:murowany
- Garaż:jednostanowiskowy
- Min. wymiary działki:20,9 x 9,9 m


