Pow. użytkowa
175,77 m²
Garaż
1
Pow. zabudowy
172,6 m²
Koszt SSZ
441 302 zł
Kąt dachu
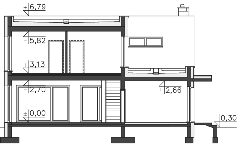
1°
Koniec promocji za:
5 570 zł
Cena katalogowa: 5 970 zł
Najniższa cena z 30 dni przed obniżką: 5 570 zł
Dostępność: Projekt dostępny w terminie 14 dni.
Co zawiera projekt?
Zawartość projektu obejmuje pełną dokumentację zgodną z aktualnym prawem budowlanym oraz pakiet bezpłatnych dodatków.
Dowiedz się więcejRzut parteru 106,62 m²
Rzut parteru 106,62 m²
| 1. Wiatrołap | 7,28 m² |
| 2. Wc | 2,57 m² |
| 3. Komunikacja | 5,77 m² |
| 4. Pokój dzienny, kuchnia | 54,68 m² |
| 5. Spiżarnia | 3,97 m² |
| 6. Komunikacja | 4,96 m² |
| 7. Pokój | 17,49 m² |
| 8. Łazienka | 4,59 m² |
| 9. Garderoba | 5,31 m² |
| 10. Kotłownia | 8,00 m² |
| 11. Garaż | 22,02 m² |
| 12. Taras | 21,49 m² |
| 13. Taras | 36,93 m² |
| 14. Podest | 1,98 m² |
Chcesz wprowadzić zmiany w projekcie?
Zapytaj naszego Doradcę o możliwe modyfikacje. Ekspert przeanalizuje ich opłacalność i podpowie, co warto zmienić w Twoim projekcie.
Zadzwoń 52 384 49 90 lub
Przepraszamy, dla tego projektu nie opracowano jeszcze szczegółowego opisu technologii realizacji. Informacje techniczne zostaną wkrótce uzupełnione, aby mogli Państwo poznać zastosowane rozwiązania konstrukcyjne, materiały oraz przyjęte założenia wykonawcze.
Zamów kosztorys inwestorski i poznaj dokładne koszty materiałów, cen robocizny i innych nakładów.
Stan surowy zamknięty uwzględnia kompletną konstrukcję wraz z elementami zabezpieczającymi budynek przed czynnikami atmosferycznymi. Obiekt jest przygotowany do wykonania kolejnych etapów.
Stan surowy zamknięty obejmuje:
Wersja ekonomiczna stanu deweloperskiego uwzględnia instalacje, urządzenia i materiały ze średniej półki cenowej, charakteryzujące się standardową jakością.
Stan deweloperski Economic obejmuje:
Wersja premium stanu deweloperskiego uwzględnia instalacje, urządzenia i materiały z wyższej półki cenowej, wyróżniające się najwyższą jakością w obrębie grupy produktowej.
Stan deweloperski Premium obejmuje:
Kupujesz projekt domu, dostajesz wsparcie warte tysiące złotych. Konkretne rabaty w sklepach budowlanych, konsultacje z ekspertami oraz atrakcyjne wyceny, które realnie obniżą koszty budowy Twojego domu. Wybierz maksymalnie 10 dodatków i zacznij budowę z przewagą, jaką daje tylko Tooba.pl.



Buduj świadomie od pierwszego kroku. Płatne dodatki pozwalają rozwinąć projekt o dodatkowe opracowania, które wspierają proces budowy i ograniczają ryzyko błędów. Wybierz rozwiązania, które dają Ci większą kontrolę nad kosztami, harmonogramem i przebiegiem inwestycji.
Jesteśmy dla Ciebie dostępni:
pon. – pt.
8:00 – 20:00
Zależy Ci na kontakcie z Doradcą w konkretnym terminie?
Wolisz kontakt mailowy? Nie ma problemu, czekamy na Twoją wiadomość!