Projekt D103 - Lidia WT2021 (TFH-768)
Dane ogólne:
CENA:3899 zł
pow. użytkowa: 42,17m²
pow. zabudowy: 60,38 m²
min. wym. działki: 14,58 x 16,86 m
kondygnacje: parterowy
poddasze: bez poddasza
rodzaj zabudowy: wolnostojący
technologia: murowany
styl: tradycyjny
piwnica: nie
garaż: bez garażu
rodzaj dachu: dwuspadowy
pow. dachu: 98,76 m²
nachylenie dachu: 23°
wysokość domu: 5,11 m
kubatura: 305,5 m³
liczba pokoi: 3
liczba łazienek: 1
kominek: tak
Opis projektu:

Dom mieszkalny jednorodzinny, wolnostojący. Parter składa się ze stosunkowo dużego pokoju dziennego połączonego z korytarzem prowadzącym do pokoi oraz sieni wejściowej, dwóch pokoi sypialnych, kuchni, łazienki i pomieszczenia technicznego.

Technologia wykonania:

  • Ściany zewnętrzne: dwuwarstwowe, beton komórkowy 24 cm + styropian 20cm.

  • Strop: drewniany.

  • Konstrukcja dachu: drewniany, wiązar dachowy.

  • Pokrycie dachu: blachodachówka.

  • Elewacja: tynk cienkowarstwowy, na fragmentach ścian deski i płytki klinkierowe.

  • Ogrzewanie: piec gazowy.

  • Projekt zgodny z WT2021.

Rzuty:
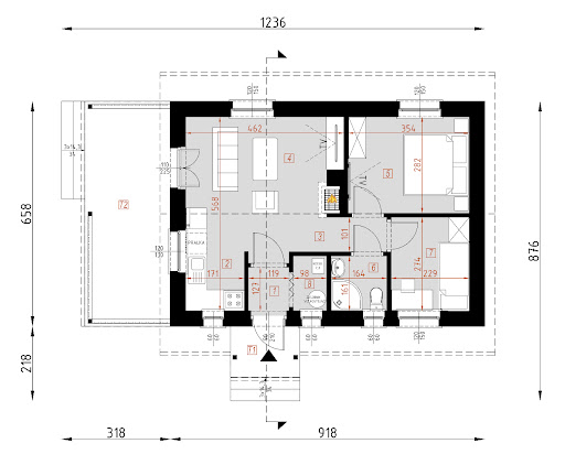
Rzut parteru
D103 - Lidia WT2021 - Rzut parteru
Opis pomieszczeń:
1.Przedsionek - 1.44 m²
2.Kuchnia - 5.02 m²
3.Hol - 1.22 m²
4.Pokój dzienny - 16.06 m²
5.Sypialnia - 9.78 m²
6.Łazienka - 2.54 m²
7.Sypialnia - 6.11 m²
8.Pom. Techniczne - 1.49 m²
T.1.Taras - 4.4 m²
T.2.Taras - 18.38 m²
Elewacje:
Elewacja przednia
Elewacja tylna
Elewacja lewa
Elewacja prawa

Potrzebujesz porady...?
Skontaktuj się z nami - jesteśmy do Twojej dyspozycji.

tel: 52 384 49 90 email: projekty@tooba.pl
kom: 605 071 505 kom: 502 363 539 kom: 502 363 364