Projekt EX 19 II G2 Energo Plus (TVP-645)
Dane ogólne:
CENA:8300 zł
pow. użytkowa: 177,11m²
pow. zabudowy: 160,12 m²
min. wym. działki: 26,9 x 17,2 m
kondygnacje: parterowy
poddasze: użytkowe
rodzaj zabudowy: wolnostojący
technologia: murowany
styl: nowoczesny
piwnica: nie
garaż: dwustanowiskowy
rodzaj dachu: dwuspadowy
pow. dachu: 227 m²
nachylenie dachu: 45°
wysokość domu: 8,98 m
kubatura: 674,67 m³
liczba pokoi: 6
liczba łazienek: 3
kominek: tak
Opis projektu:

Budynek zaprojektowano jako wysokoenergooszczędny, wyposażony w pompę ciepła oraz panele fotowoltaiczne. W projekcie przewidziano wentylację mechaniczną z rekuperacją. Dom parterowy z poddaszem użytkowym, niepodpiwniczony, z garażem dwustanowiskowym. Dom dla 4-6-osobowej rodziny.

Technologia wykonania:

  • Technologia i konstrukcja:
    Ściany zewnętrzne: murowane, dwuwarstwowe, beton komórkowy firmy Solbet 24 cm, ocieplenie styropian Termo Organika 20 cm
    Ściany wewnętrzne: nośne i działowe murowane, beton komórkowy firmy Solbet 24 cm i 12 cm
    Strop: międzypiętrowy gęstożebrowy Teriva
    Dach: konstrukcja drewniana, ocieplenie wełna mineralna 30 cm, blacha na rąbek stojący Classic firmy Ruukki
    Inne: schody wewnętrzne drewniane 

  • Rozwiązania instalacyjne energooszczędne:
    Ogrzewanie: pompa ciepła, rozprowadzenie ciepła: ogrzewanie podłogowe
    Wentylacja: wentylacja mechaniczna nawiewno-wywiewna z odzyskiem ciepła
    OZE: panele fotowoltaiczne

  • Wykończenie:
    Elewacje: tynk cienkowarstwowy mineralny w kolorze białym TO-PA001 z palety firmy Termo Organika, okładzina drewniana
    Stolarka: aluminiowo-drewniana INNOVIEW firmy FAKRO
    Okna połaciowe: rozwiązania technologiczne i wyłaz dachowy firmy FAKRO
    Otoczenie: kostka betonowa i płyty tarasowe firmy Libet, system tarasowy ProDeck - deska kompozytowa Terra w kolorze orzech, meble ogrodowe firmy B&B Italia

  • Wersje - zapytaj o dostępność:
    - EX 19 G2 ENERGO PLUS - podobny układ funkcjonalny, inne wykończenie elewacji, z garażem dwustanowiskowym
    - odbicie lustrzane do wszystkich wersji 

  • Istnieje techniczna możliwość:
    - podpiwniczenia budynku
    - wykonania budynku w technologii szkieletowej

Rzuty:
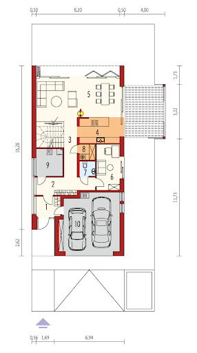
Rzut parteru
EX 19 II G2 Energo Plus - Rzut parteru
Opis pomieszczeń:
1.Wiatrołap - 4.67 m²
2.Hol + garderoba - 9.32 m²
3.Korytarz + schody - 12.28 m²
4.Kuchnia - 10.44 m²
5.Pokój dzienny + jadalnia - 35.17 m²
6.Gabinet - 10.34 m²
7.Toaleta - 2.27 m²
8.Spiżarnia - 2.37 m²
9.Pom. Techniczne - 7.07 m²
10.Garaż - 33.06 m²
Rzut poddasza
EX 19 II G2 Energo Plus - Rzut poddasza
Opis pomieszczeń:
1.Korytarz - 10.22 m²
2.Sypialnia - 19.63 m²
3.Łazienka - 6.71 m²
4.Garderoba - 6.26 m²
5.Sypialnia - 13.35 m²
6.Sypialnia - 13.35 m²
7.Sypialnia - 10.27 m²
8.Łazienka - 5.76 m²
9.Pom. gospodarcze + pralnia - 2.7 m²
Elewacje:
Elewacja
Elewacja
Elewacja
Elewacja

Potrzebujesz porady...?
Skontaktuj się z nami - jesteśmy do Twojej dyspozycji.

tel: 52 384 49 90 email: projekty@tooba.pl
kom: 605 071 505 kom: 502 363 539 kom: 502 363 364