Projekt Ajaks 6 (TSQ-772) - lustrzane odbicie
Dane ogólne:
CENA:4499 zł
pow. użytkowa: 120m²
pow. zabudowy: 142,63 m²
min. wym. działki: 19,99 x 21,84 m
kondygnacje: parterowy
poddasze: null
rodzaj zabudowy: wolnostojący
technologia: murowany
styl: nowoczesna elewacja
piwnica: nie
garaż: jednostanowiskowy
rodzaj dachu: dwuspadowy
pow. dachu: 212,82 m²
nachylenie dachu: 40°
wysokość domu: 8,77 m
kubatura: 899,97 m³
liczba pokoi: 5
liczba łazienek: 2
kominek: tak
Opis projektu:

Projekt nowoczesnego domu z poddaszem użytkowym i wbudowanym garażem, który łączy w sobie funkcjonalność oraz nowoczesny design. Budynek ma do zaoferowania bardzo dużo przestrzeni. Na parterze znalazły się: spory wiatrołap, kuchnia, przestronny salon, praktyczna spiżarnia, łazienka, garaż, duża kotłownia oraz dodatkowy pokój, który można przeznaczyć np. na gabinet. W budynku zaprojektowano 2 rodzaje ogrzewania: piec na biomasę oraz pompę ciepła. Inwestor ma w ten sposób wybór i może zdecydować, które ogrzewania zastosować w swoim domu. Pakiet z pompą ciepła zawiera dodatkowo projekt ogrzewania podłogowego oraz projekt instalacji fotowoltaicznej. Na piętrze znajdują się trzy ustawne pokoje i duża łazienka z miejscem na wannę i prysznic. Główna sypialnia została połączona z przestronną garderobą, ze spocznika schodów dostaniemy się natomiast do pomieszczenia nad garażem, które może pełnić rolę strychu, miejsca zabaw lub po prostu dodatkowego pokoju.


Dom ma nieskomplikowaną bryłę i prosty, dwuspadowy dach, co niewątpliwie będzie miało istotny wpływ na obniżenie kosztów budowy. Elewację budynku wykończono w nowoczesnym stylu, który podkreślono dużym, narożnym oknem w kuchni. Biel elewacji kontrastuje z grafitowym kolorem stolarki i dachówki oraz modną okładziną drewnianą o ciepłym odcieniu.


Przy projektowaniu domu Ajaks 6 nie zapomnieliśmy o ekologii. Dokumentacja projektowa zawiera alternatywną wentylację mechaniczną, a dzięki zastosowanym materiałom cały budynek ma minimalny wpływ na środowisko naturalne i spełnia wszystkie rygorystyczne wymogi współczesnego projektowania.

Technologia wykonania:

  • Budynek posadowiony został na fundamentach betonowych.

  • Ściany zewnętrzne: dwuwarstwowe z betonu komórkowego 24cm + 20cm styropianu.

  • Ściany wewnętrzne: z betonu komórkowego jak i z płyty gipsowo-kartonowej [na ruszcie].

  • Strop: żelbetowy, wylewany. Więźba dachowa drewniana.

  • Pokrycie dachu: dachówka cementowa lub ceramiczna.

  • Wentylacja: grawitacyjna + wentylacja mechaniczna z rekuperacją (do wyboru na etapie adaptacji).

  • Ogrzewanie: pompa ciepła z instalacją fotowoltaiczną + biomasa (do wyboru na etapie adaptacji projektu).

Rzuty:
Rzut parteru
Ajaks 6 - Rzut parteru
Opis pomieszczeń:
1.Wiatrołap - 7.45 m²
2.Spiżarnia - 1.7 m²
3.Kuchnia - 10.8 m²
4.Salon + jadalnia - 31.4 m²
5.Pokój - 9.8 m²
6.Komunikacja - 2.95 m²
7.Łazienka - 4.0 m²
8.Kotłownia - 11.1 m²
9.Garaż - 24.8 m²
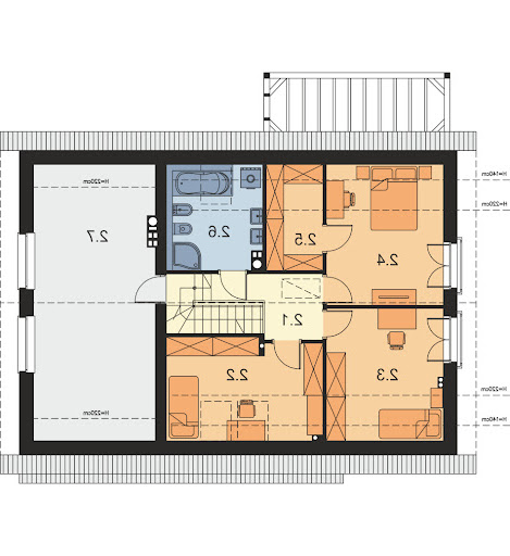
Rzut poddasza
Ajaks 6 - Rzut poddasza
Opis pomieszczeń:
1.Komunikacja - 5.3 m²
2.Pokój - 11.05 m²
3.Pokój - 11.85 m²
4.Pokój - 12.85 m²
5.Garderoba - 4.3 m²
6.Łazienka - 6.55 m²
7.Strych - 30.59 m²
Elewacje:
Elewacja przednia
Elewacja tylna
Elewacja lewa
Elewacja prawa

Potrzebujesz porady...?
Skontaktuj się z nami - jesteśmy do Twojej dyspozycji.

tel: 52 384 49 90 email: projekty@tooba.pl
kom: 605 071 505 kom: 502 363 539 kom: 502 363 364