Projekt Stodoła Z Nadwieszeniem Pomniejszona szkielet drewniany (TYN-117) - lustrzane odbicie
Dane ogólne:
CENA:7500 zł
pow. użytkowa: 245,1m²
pow. zabudowy: 196,2 m²
min. wym. działki: 34,78 x 18,2 m
kondygnacje: parterowy
poddasze: null
rodzaj zabudowy: wolnostojący
technologia: drewniany - szkielet
styl: nowoczesny
piwnica: nie
garaż: jednostanowiskowy
rodzaj dachu: dwuspadowy
pow. dachu: b/d
nachylenie dachu: 45°
wysokość domu: 9,13 m
kubatura: 1175,28 m³
liczba pokoi: 5
liczba łazienek: 3
kominek: tak
Opis projektu:

Projekt Stodoła Z Nadwieszeniem – nowoczesny projekt budynku mieszkalnego jednorodzinnego wraz z garażem rozplanowany na planie prostokąta. Dach budynku symetryczny. Parter składa się z otwartej strefy dziennej z otartą kuchnią oraz jadalnią. Cała strefa dzienna budynku jest powiększona poprzez duży taras oraz przeszklenia. Pozostałą część tej kondygnacji stanowią pomieszczenie techniczne, łazienka oraz pokój, który może również pełnić funkcję gabinetu. Na poddaszu znajdziemy: komunikację, łazienkę, trzy sypialnie przy czym jedna z nich z własną łazienką i garderobą.


Dach dwuspadowy, symetryczny, pokryty blachą na rąbek stojący o kącie nachylenia 45 stopni. Elewacje wykończone szalunkiem drewnianym oraz blachą na rąbek stojący. Charakterystycznym elementem budynku są duże przeszklenia mieszczące się między podłogą, a sufitem, co sprawia, że pomieszczenia są świetnie doświetlone i sprawiają wrażenie jakby wnętrze budynku przenikało na zewnątrz. Unikalnym elementem budynku są nadwieszenia, której sprawiają, że forma budynku staje się dynamiczna.

Technologia wykonania:

  • Budynek w wersji szkieletowej.

  • Ściany: słupy 5 x 20cm, wełna mineralna 20 cm, wełna mineralna 5 cm.

  • Strop: drewniany na belkach stropowych.

  • Ścianka kolankowa: 70cm.

  • Dach: dwuspadowy, nachylenie 40°, więźba drewniana, blacha na rąbek stojący.

  • Ogrzewanie podłogowe: zastosowano we wszystkich pomieszczeniach mieszkalnych.

  • Wentylacja: grawitacyjna.

  • Schody wewnętrzne: drewniane.

  • Sposób ogrzewania budynku: pompa ciepła powietrze – powietrze; pompa ciepła gruntowa; kotłownia gazowa; kotłownia na paliwo stałe ( kotły 5 klasy ) po wcześniejszym ustaleniu.

Rzuty:
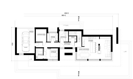
Rzut parteru
Stodoła Z Nadwieszeniem Pomniejszona szkielet drewniany - Rzut parteru
Opis pomieszczeń:
1.Przedsionek - 6.0 m²
2.Komunikacja - 19.4 m²
3.WC - 2.6 m²
4.Pralnia - 5.7 m²
5.Pom. gospodarcze - 8.4 m²
6.Łazienka - 4.8 m²
7.Sypialnia - 9.4 m²
8.Kuchnia - 10.2 m²
9.Pokój dzienny z aneksem - 33.0 m²
10.Garaż - 27.0 m²
Rzut poddasza
Stodoła Z Nadwieszeniem Pomniejszona szkielet drewniany - Rzut poddasza
Opis pomieszczeń:
1.Komunikacja - 24.4 m²
2.Łazienka - 6.1 m²
3.Garderoba - 13.6 m²
4.Pokój - 23.8 m²
5.Łazienka - 6.8 m²
6.Pokój - 18.2 m²
7.Pokój - 25.7 m²
Elewacje:

Potrzebujesz porady...?
Skontaktuj się z nami - jesteśmy do Twojej dyspozycji.

tel: 52 384 49 90 email: projekty@tooba.pl
kom: 605 071 505 kom: 502 363 539 kom: 502 363 364