Projekt Stodoła Z Garażem szkielet drewniany (TJG-898)
Dane ogólne:
CENA:5500 zł
pow. użytkowa: 151,4m²
pow. zabudowy: 127,9 m²
min. wym. działki: 25,56 x 16,63 m
kondygnacje: parterowy
poddasze: null
rodzaj zabudowy: wolnostojący
technologia: drewniany - szkielet
styl: nowoczesna elewacja
piwnica: nie
garaż: jednostanowiskowy
rodzaj dachu: dwuspadowy
pow. dachu: b/d
nachylenie dachu: 40°
wysokość domu: 8,92 m
kubatura: 706,33 m³
liczba pokoi: 5
liczba łazienek: 3
kominek: tak
Opis projektu:

Projekt Stodoła Z Garażem – nowoczesny projekt budynku mieszkalnego jednorodzinnego wraz z dwoma stanowiskami postojowymi rozplanowany na planie prostokąta. Dach budynku symetryczny. Parter składa się z otwartej strefy dziennej z otwartą kuchnią oraz jadalnią. Cała strefa dzienna budynku powiększona została dodatkowo poprzez duży taras. Pozostałą część tej kondygnacji stanowią: pomieszczenie techniczne, łazienka oraz pokój, który może również pełnić funkcję gabinetu. Na poddaszu znajdziemy: komunikację, łazienkę, trzy sypialnie, przy czym jedna z nich z własną łazienką i garderobą.


Dach dwuspadowy, symetryczny pokryty blachą na rąbek stojący o kącie nachylenia 40 stopni. Elewacje wykończone szalunkiem drewnianym oraz blachą na rąbek stojący. Charakterystycznym elementem budynku są duże przeszklenia mieszczące się między podłogą, a sufitem, co sprawia, że pomieszczenia są świetnie doświetlone i sprawiają wrażenie jakby wnętrze budynku przenikało na zewnątrz.

Technologia wykonania:

  • Budynek w wersji szkieletowej.

  • Ściany: słupy 5 x 20cm, wełna mineralna 20 cm, wełna mineralna 5 cm.

  • Strop: drewniany na belkach stropowych.

  • Ścianka kolankowa: 70cm.

  • Dach: dwuspadowy, nachylenie 40°, więźba drewniana, blacha na rąbek stojący.

  • Ogrzewanie podłogowe: zastosowano we wszystkich pomieszczeniach mieszkalnych.

  • Wentylacja: grawitacyjna.

  • Schody wewnętrzne: drewniane.

  • Sposób ogrzewania budynku: pompa ciepła powietrze – powietrze; pompa ciepła gruntowa; kotłownia gazowa; kotłownia na paliwo stałe (kotły 5 klasy) po wcześniejszym ustaleniu.

Rzuty:
Rzut parteru
Stodoła Z Garażem szkielet drewniany - Rzut parteru
Opis pomieszczeń:
0.01.Wiatrołap - 4.1 m²
0.02.Pom. gospdoarcze - 5.1 m²
0.03.Łazienka - 3.2 m²
0.04.Pom. gospdoarcze - 2.2 m²
0.05.Pokój - 12.6 m²
0.06.Pokój dzienny z kuchnią - 30.3 m²
1.06.Garaż - 38.0 m²
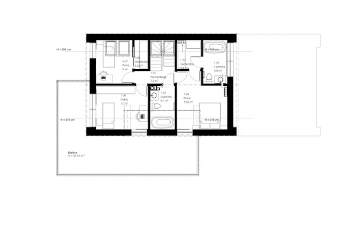
Rzut poddasza
Stodoła Z Garażem szkielet drewniany - Rzut poddasza
Opis pomieszczeń:
1.Komunikacja - 7.1 m²
2.Garderoba - 3.2 m²
3.Łazienka - 5.2 m²
4.Pokój - 12.7 m²
5.Łazienka - 6.1 m²
6.Pokój - 11.2 m²
7.Pokój - 8.6 m²
8.Garderoba - 1.8 m²
Elewacje:

Potrzebujesz porady...?
Skontaktuj się z nami - jesteśmy do Twojej dyspozycji.

tel: 52 384 49 90 email: projekty@tooba.pl
kom: 605 071 505 kom: 502 363 539 kom: 502 363 364