Projekt Stodoła Nasz Dom szkielet drewniany (TAX-152) - lustrzane odbicie
Dane ogólne:
CENA:5000 zł
pow. użytkowa: 188m²
pow. zabudowy: 142,2 m²
min. wym. działki: 25,86 x 15,17 m
kondygnacje: parterowy
poddasze: null
rodzaj zabudowy: wolnostojący
technologia: drewniany - szkielet
styl: nowoczesny
piwnica: nie
garaż: bez garażu
rodzaj dachu: dwuspadowy
pow. dachu: b/d
nachylenie dachu: 42°
wysokość domu: 8,51 m
kubatura: 922,24 m³
liczba pokoi: 5
liczba łazienek: 3
kominek: tak
Opis projektu:

Projekt Stodoła Nasz Dom – nowoczesny budynek, który zlokalizowany może być na wąskiej działce ok 15,5 m. Budynek w technologii murowanej. Wykończenie blacha na rąbek stojący, tynk oraz beton architektoniczny. Budynek nowoczesny z dużymi przeszkleniami, bardzo dobrze doświetlona część dzienna pokój dzienny oraz aneks kuchenny. Na poddaszu trzy pokoje, w tym jeden z własną łazienką i garderobą. Powierzchnia użytkowa ok. 180 m².

Technologia wykonania:

  • Ściany: słupy 5 x 20cm, wełna mineralna 20 cm, wełna mineralna 5 cm.

  • Strop: drewniany na belkach stropowych.

  • Ścianka kolankowa: 70cm.

  • Dach: dwuspadowy, nachylenie 45°, 48° , więźba drewniana, blacha na rąbek stojący.

  • Ogrzewanie podłogowe: zastosowano we wszystkich pomieszczeniach mieszkalnych.

  • Wentylacja: grawitacyjna.

  • Schody wewnętrzne: drewniane.

  • Sposób ogrzewania budynku: pompa ciepła powietrze – powietrze; pompa ciepła gruntowa; kotłownia gazowa; kotłownia na paliwo stałe (kotły 5 klasy) po wcześniejszym ustaleniu.

Rzuty:
Rzut parteru
Stodoła Nasz Dom szkielet drewniany - Rzut parteru
Opis pomieszczeń:
1.Wiatrołap - 5.5 m²
2.Komunikacja - 6.5 m²
3.Pokój - 14.4 m²
4.Kotłownia - 11.1 m²
5.Łazienka - 5.8 m²
6.Komunikacja - 2.3 m²
7.Schowek - 5.0 m²
8.Komunikacja - 8.7 m²
9.Pokój dzienny - 30.6 m²
10.Kuchnia - 16.1 m²
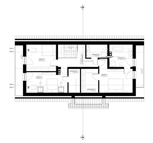
Rzut poddasza
Stodoła Nasz Dom szkielet drewniany - Rzut poddasza
Opis pomieszczeń:
1.Komunikacja - 12.6 m²
2.Pokój - 14.0 m²
3.Pokój - 15.8 m²
4.Garderoba - 4.7 m²
5.Garderoba - 7.0 m²
6.Pokój - 15.4 m²
7.Łazienka - 8.8 m²
8.Łazienka - 3.7 m²
Elewacje:

Potrzebujesz porady...?
Skontaktuj się z nami - jesteśmy do Twojej dyspozycji.

tel: 52 384 49 90 email: projekty@tooba.pl
kom: 605 071 505 kom: 502 363 539 kom: 502 363 364