Projekt Czarna Stodoła szkielet drewniany (TAS-264)
Dane ogólne:
CENA:4800 zł
pow. użytkowa: 110,9m²
pow. zabudowy: 73,38 m²
min. wym. działki: 23,28 x 20,64 m
kondygnacje: parterowy
poddasze: null
rodzaj zabudowy: wolnostojący
technologia: drewniany - szkielet
styl: nowoczesny
piwnica: nie
garaż: bez garażu
rodzaj dachu: dwuspadowy
pow. dachu: b/d
nachylenie dachu: 40°
wysokość domu: 8,49 m
kubatura: 393,27 m³
liczba pokoi: 4
liczba łazienek: 1
kominek: tak
Opis projektu:

Czarna Stodoła – jest to nowoczesny budynek mieszkalny o powierzchni 73,38 m². Rzut projektowanego obiektu ma kształt prostokąta o wymiarach 10,8 x 7,64 m. Główne wejście do budynku znajduje się we wnęce, która została częściowo osłonięta lamelami. Na kondygnacji parteru znajduję się mały wiatrołap, łazienka, pomieszczenie techniczne, strefa dzienna z aneksem kuchennym oraz biuro. Zaprojektowany został duży zadaszony taras, dodaje on atrakcyjności. Na poddaszu zostały zaprojektowane garderoba, łazienka oraz dwa pokoje, jeden z nich posiada prywatną garderobę.


Dach dwuspadowy, symetrycznie pokryty blachą na rąbek w kolorze antracytu, stojący o kącie nachylenia 40 stopni. Elewacje wykończone zostały blachą na rąbek w odcieniu antracyt, farbą w tym samym kolorze oraz  deskami elewacyjnymi w odcieniu grafitu. W strefie dziennej zaprojektowane zostały przeszklenia mieszczące się między podłogą a sufitem, dzięki temu zabiegowi pomieszczenia są lepiej doświetlone oraz otwarte na zewnątrz.

Technologia wykonania:

  • Ściany: słupy 5 x 20cm, wełna mineralna 20 cm, wełna mineralna 5 cm.

  • Strop: drewniany na belkach stropowych.

  • Ścianka kolankowa: 70cm.

  • Dach: dwuspadowy, nachylenie 40°, więźba drewniana, blacha na rąbek stojący.

  • Ogrzewanie podłogowe: zastosowano we wszystkich pomieszczeniach mieszkalnych.

  • Wentylacja: grawitacyjna.

  • Schody wewnętrzne: drewniane.

  • Sposób ogrzewania budynku: pompa ciepła powietrze – powietrze; pompa ciepła gruntowa; kotłownia gazowa; kotłownia na paliwo stałe (kotły 5 klasy) po wcześniejszym ustaleniu.

Rzuty:
Rzut parteru
Czarna Stodoła szkielet drewniany - Rzut parteru
Opis pomieszczeń:
1.Wiatrolap - 2.8 m²
2.Pokój dzienny z aneksem kuchennym - 32.3 m²
3.Biuro - 7.7 m²
4.Pom. gospodarcze - 6.4 m²
5.Łazienka - 2.8 m²
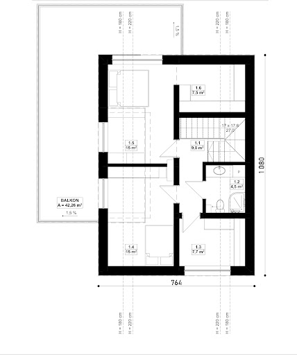
Rzut poddasza
Czarna Stodoła szkielet drewniany - Rzut poddasza
Opis pomieszczeń:
1.Komunikacja - 9.5 m²
2.Łazienka - 4.2 m²
3.Garderoba - 7.7 m²
4.Pokój - 15.0 m²
5.Pokój - 15.0 m²
6.Garderoba - 7.5 m²
Elewacje:

Potrzebujesz porady...?
Skontaktuj się z nami - jesteśmy do Twojej dyspozycji.

tel: 52 384 49 90 email: projekty@tooba.pl
kom: 605 071 505 kom: 502 363 539 kom: 502 363 364