Projekt Nowy Wierch szkielet drewniany (THN-499)
Dane ogólne:
CENA:5200 zł
pow. użytkowa: 102,6m²
pow. zabudowy: 77 m²
min. wym. działki: 15,7 x 18 m
kondygnacje: parterowy
poddasze: null
rodzaj zabudowy: wolnostojący
technologia: drewniany - szkielet
styl: nowoczesny
piwnica: nie
garaż: bez garażu
rodzaj dachu: dwuspadowy
pow. dachu: b/d
nachylenie dachu: 45° / 48°
wysokość domu: 8,85 m
kubatura: 624,5 m³
liczba pokoi: 4
liczba łazienek: 3
kominek: b/d
Opis projektu:

Nowy Wierch – to nowoczesny budynek o powierzchni zabudowy 77m², który może pełnić funkcję domu mieszkalnego jednorodzinnego lub letniskowego. Rzut projektowanego budynku w kształcie prostokąta 10m x 7,7m. Parter składa się z dużej części dziennej, którą stanowią połączony aneks kuchenny z pokojem dziennym i tarasem. Na tym poziomie zaprojektowano również sypialnię, komunikację, w której znajduje się garderoba oraz łazienka z sauną. Wejście do budynku odbywa się poprzez wiatrołap, z którego mamy dostęp do klatki schodowej i pomieszczenia gospodarczego. Na poddaszu znajdziemy dwie duże sypialnie dobrze doświetlone z własnymi łazienkami, garderobami oraz balkonami.


Dach dwuspadowy, symetryczny pokryty blachą na rąbek stojący o kącie nachylenia 45 – 48 stopni. Elewacje wykończone szalunkiem drewnianym. Charakterystycznym elementem budynku są duże przeszklenia mieszczące się między podłogą a sufitem, co sprawia, że pomieszczenia są świetnie doświetlone i sprawiają wrażenie jakby wnętrze budynku przenikało na zewnątrz.

Technologia wykonania:

  • Ściany: słupy 5 x 20cm, wełna mineralna 20 cm, wełna mineralna 5 cm

  • Strop: drewniany na belkach stropowych

  • Ścianka kolankowa: 70cm

  • Dach: dwuspadowy, nachylenie 45°, 48°, więźba drewniana, blacha na rąbek stojący

  • Ogrzewanie podłogowe: zastosowano we wszystkich pomieszczeniach mieszkalnych

  • Wentylacja: grawitacyjna

  • Schody wewnętrzne: drewniane.

  • Sposób ogrzewania budynku: pompa ciepła powietrze – powietrze; pompa ciepła gruntowa; kotłownia gazowa; kotłownia na paliwo stałe (kotły 5 klasy) po wcześniejszym ustaleniu.

Rzuty:
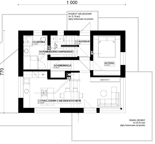
Rzut parteru
Nowy Wierch szkielet drewniany - Rzut parteru
Opis pomieszczeń:
1.Wiatrołap - 2.1 m²
2.Pokój - 9.4 m²
3.Pokój dzienny z aneksem kuchennym - 27.8 m²
4.Łazienka - 7.2 m²
5.Pom. gospodarcze - 7.2 m²
6.Komunikacja - 4.6 m²
Rzut poddasza
Nowy Wierch szkielet drewniany - Rzut poddasza
Opis pomieszczeń:
1.Klatka schodowa - 4.5 m²
2.Łazienka - 4.9 m²
3.Garderoba - 1.7 m²
4.Sypialnia - 11.9 m²
5.Sypialnia - 11.9 m²
6.Łazienka - 6.2 m²
7.Garderoba - 1.8 m²
8.Komunikacja - 1.4 m²
Elewacje:

Potrzebujesz porady...?
Skontaktuj się z nami - jesteśmy do Twojej dyspozycji.

tel: 52 384 49 90 email: projekty@tooba.pl
kom: 605 071 505 kom: 502 363 539 kom: 502 363 364