Projekt Eco 21 dwulokalowy (TBB-251) - lustrzane odbicie
Dane ogólne:
CENA:9098 zł
pow. użytkowa: 242,59m²
pow. zabudowy: 178,5 m²
min. wym. działki: 20,44 x 23,6 m
kondygnacje: parterowy
poddasze: null
rodzaj zabudowy: wolnostojący
technologia: murowany
styl: nowoczesna elewacja
piwnica: nie
garaż: jednostanowiskowy
rodzaj dachu: dwuspadowy
pow. dachu: b/d
nachylenie dachu: 35°
wysokość domu: 8,32 m
kubatura: 1176,84 m³
liczba pokoi: 10
liczba łazienek: 4
kominek: tak
Opis projektu:

Projekt Eco 21 jest dostępny w trzech wariantach:
Eco 21 segment - pojedynczy, lewy lub prawy segment projektu.
Eco 21 dwulokalowy - dom jednorodzinny dwulokalowy, pojedyncza ściana wspólna.
Eco 21 bliźniak - dom dwurodzinny - "bliźniak", podwójna ściana wspólna.

Technologia wykonania:

  • Ściany: bloczek z betonu komórkowego 24 cm + ocieplenie wełna.

  • Strop: gestożebrowy.

  • Dach: dwuspadowy, kąt nachylenia 35 st.

  • Pokrycie dachu: dachówka ceramiczna.

  • Ogrzewanie: gazowe.

  • Wentylacja: grawitacyjna.

  • Projekt zgodny z przepisami WT 2021.

Rzuty:
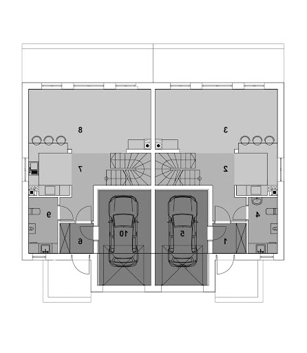
Rzut parteru
Eco 21 dwulokalowy - Rzut parteru
Opis pomieszczeń:
1.Wiatrołap - 3.52 m²
2.Korytarz - 12.34 m²
3.Pokój dzienny + aneks kuchenny - 32.63 m²
4.Łazienka - 5.68 m²
5.Garaż - 17.37 m²
6.Wiatrołap - 3.52 m²
7.Korytarz - 12.34 m²
8.Pokój dzienny + aneks kuchenny - 32.63 m²
9.Łazienka - 5.68 m²
10.Garaż - 17.37 m²
Rzut poddasza
Eco 21 dwulokalowy - Rzut poddasza
Opis pomieszczeń:
1.Korytarz - 4.19 m²
2.Sypialnia - 9.73 m²
3.Sypialnia - 10.14 m²
4.Łazienka - 5.42 m²
5.Sypialnia - 9.36 m²
6.Sypialnia - 10.83 m²
7.Korytarz - 4.19 m²
8.Sypialnia - 9.73 m²
9.Sypialnia - 10.14 m²
10.Łazienka - 5.42 m²
11.Sypialnia - 9.36 m²
12.Sypialnia - 10.83 m²
Elewacje:
Elewacja przednia
Elewacja tylna
Elewacja lewa
Elewacja prawa

Potrzebujesz porady...?
Skontaktuj się z nami - jesteśmy do Twojej dyspozycji.

tel: 52 384 49 90 email: projekty@tooba.pl
kom: 605 071 505 kom: 502 363 539 kom: 502 363 364