Projekt Parterowy 12 (TMN-861)
Dane ogólne:
CENA:3500 zł
pow. użytkowa: 64,35m²
pow. zabudowy: 117,6 m²
min. wym. działki: 18,6 x 21,75 m
kondygnacje: parterowy
poddasze: null
rodzaj zabudowy: wolnostojący
technologia: murowany
styl: nowoczesna elewacja
piwnica: nie
garaż: jednostanowiskowy
rodzaj dachu: b/d
pow. dachu: 179,6 m²
nachylenie dachu: 30°
wysokość domu: 6,35 m
kubatura: b/d
liczba pokoi: 3
liczba łazienek: 1
kominek: tak
Opis projektu:

Budynek mieszkalny jednorodzinny, wolnostojący, parterowy z garażem jednostanowiskowym.

Technologia wykonania:

  • Posadowienie budynku: ława fundamentowa.

  • Ściany zewnętrzne: pustak ceramiczny 25 cm + styropian 20 cm.

  • Ściany wewnętrzne: pustak ceramiczny 12 cm.

  • Strop nad parterem: lekki.

  • Konstrukcja dachu: drewniana.

  • Pokrycie dachu: dachówka.

  • Elewacja: tynk.

  • Wentylacja: grawitacyjna.

  • Ogrzewanie podstawowe: gaz.

Rzuty:
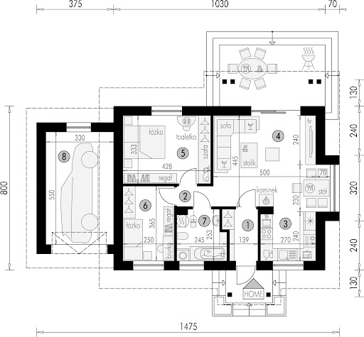
Rzut parteru
Parterowy 12 - Rzut parteru
Opis pomieszczeń:
1.Przedsionek - 3.75 m²
2.Hol - 3.75 m²
3.Kuchnia - 6.55 m²
4.Pokój dzienny z jadalnią - 21.8 m²
5.Pokój - 14.05 m²
6.Pokój - 8.95 m²
7.Łazienka z piecem C.O. - 5.5 m²
8.Garaż jednostanowiskowy - 17.9 m²
Elewacje:
Elewacja przednia
Elewacja tylna
Elewacja lewa
Elewacja prawa

Potrzebujesz porady...?
Skontaktuj się z nami - jesteśmy do Twojej dyspozycji.

tel: 52 384 49 90 email: projekty@tooba.pl
kom: 605 071 505 kom: 502 363 539 kom: 502 363 364