Projekt D57AD - WT2021 wersja drewniana (TLI-413) - lustrzane odbicie
Dane ogólne:
CENA:3999 zł
pow. użytkowa: 50,65m²
pow. zabudowy: 64,29 m²
min. wym. działki: 15,84 x 17,15 m
kondygnacje: parterowy
poddasze: do adaptacji
rodzaj zabudowy: wolnostojący
technologia: drewniany - szkielet
styl: nowoczesny
piwnica: nie
garaż: bez garażu
rodzaj dachu: dwuspadowy
pow. dachu: b/d
nachylenie dachu: b/d
wysokość domu: 7,03 m
kubatura: 357,7 m³
liczba pokoi: b/d
liczba łazienek: b/d
kominek: tak
Opis projektu:

Projekt Luiza AD to nowoczesna wersja domu parterowego D57 Luiza w szkielecie drewnianym. Prosta forma, ciekawe rozwiązanie elewacji oraz – co najważniejsze – niezwykle funkcjonalne wnętrze są atutami tego domu. Duży taras osłonięty pergolą zaprasza do odpoczynku w ciepłe dni. Dzięki dużym oknom tarasowym widny pokój dzienny stanie się ulubionym miejscem spędzania wolnego czasu. Ten dom świetnie sprawdza się jako dom letniskowy i całoroczny.

Technologia wykonania:

  • Ściany zewnętrzne: drewniane z ociepleniem.

  • Strop: dźwigar dachowy.

  • Konstrukcja dachu: drewniany: dźwigar dachowy.

  • Pokrycie dachu: blachodachówka.

  • Elewacja: tynk cienkowarstwowy, na fragmentach ścian deski.

  • Ogrzewanie: piec gazowy.

  • EP70 kWh/m2.rok.

  • Projekt zgodny z Wt2021.

  • Wentylacja: grawitacyjna.

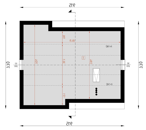
Rzuty:
Rzut parteru
D57AD - WT2021 wersja drewniana - Rzut parteru
Opis pomieszczeń:
0.sień - 3.56 m²
0.kuchnia - 2.95 m²
0.salon/jadalnia - 13.18 m²
0.pokój - 8.42 m²
0.pokój - 7.44 m²
0.pokój - 6.63 m²
0.hol - 5.14 m²
0.łazienka - 3.33 m²
0.taras - 17.62 m²
Rzut poddasza
D57AD - WT2021 wersja drewniana - Rzut poddasza
Opis pomieszczeń:
1.strych - 21.86 m²
Elewacje:
Elewacja przednia
Elewacja tylna
Elewacja lewa
Elewacja prawa

Potrzebujesz porady...?
Skontaktuj się z nami - jesteśmy do Twojej dyspozycji.

tel: 52 384 49 90 email: projekty@tooba.pl
kom: 605 071 505 kom: 502 363 539 kom: 502 363 364