Projekt Mokka 19 (TMD-614)
Dane ogólne:
CENA:3899 zł
pow. użytkowa: 80m²
pow. zabudowy: 113,75 m²
min. wym. działki: 17,52 x 20 m
kondygnacje: parterowy
poddasze: null
rodzaj zabudowy: wolnostojący
technologia: murowany
styl: nowoczesna elewacja
piwnica: nie
garaż: bez garażu
rodzaj dachu: dwuspadowy
pow. dachu: 177 m²
nachylenie dachu: 35°
wysokość domu: 6,77 m
kubatura: 596,05 m³
liczba pokoi: 4
liczba łazienek: 1
kominek: tak
Opis projektu:

Mokka 19 to mały dom parterowy. Dzięki bardzo prostej formie jest tani i łatwy w budowie. Mimo niewielkiego rozmiaru projekt oferuje przestronny salon oraz ustawną kuchnię. W wiatrołapie przewidziano miejsce na szafę. W części nocnej zaprojektowano trzy komfortowe sypialnie. Atutem projektu jest również duża łazienka z wanną i prysznicem oraz miejscem na pralkę. W projekcie przewidziano kotłownię na paliwo stałe z bezpośrednim wyjściem na ogród. Dodatkowo zaprojektowano również instalację gazową dla osób chcących korzystać z ogrzewania gazowego. Aby można było wykorzystać poddasze, w korytarzu zaprojektowano otwór w stropie na schody spuszczane. Prosta bryła i nieskomplikowana konstrukcja, zdecydowanie ułatwią i przyspieszą realizację. Aby zapewnić niskie koszty eksploatacji i nie zwiększać kosztów budowy, w projekcie zastosowano rozwiązania energooszczędne na poziomie ekonomicznie uzasadnionym.

Technologia wykonania:

  • Fundamenty: żelbetowe.

  • Ściany nośne i działowe: z pustaków ceramicznych.

  • Strop: teriva.

  • Konstrukcja dachu: drewniana.

  • Pokrycie dachu: dachówką betonową lub ceramiczną.

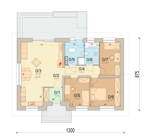
Rzuty:
Rzut parteru
Mokka 19 - Rzut parteru
Opis pomieszczeń:
1.Wiatrołap - 2.73 m²
2.Korytarz - 3.26 m²
3.Salon + kuchnia - 30.73 m²
4.Korytarz - 5.34 m²
5.Pokój - 10.04 m²
6.Pokój - 12.52 m²
7.Pokój - 10.01 m²
8.Łazienka - 5.37 m²
9.Pom. gospodarcze - 5.23 m²
Elewacje:
Elewacja przednia
Elewacja tylna
Elewacja lewa
Elewacja prawa

Potrzebujesz porady...?
Skontaktuj się z nami - jesteśmy do Twojej dyspozycji.

tel: 52 384 49 90 email: projekty@tooba.pl
kom: 605 071 505 kom: 502 363 539 kom: 502 363 364