Projekt L-241 mur (TAK-637)
Dane ogólne:
CENA:3200 zł
pow. użytkowa: 76,08m²
pow. zabudowy: 94,08 m²
min. wym. działki: 16,4 x 19,2 m
kondygnacje: parterowy
poddasze: null
rodzaj zabudowy: wolnostojący
technologia: murowany
styl: nowoczesna elewacja
piwnica: nie
garaż: bez garażu
rodzaj dachu: dwuspadowy
pow. dachu: b/d
nachylenie dachu: b/d
wysokość domu: b/d
kubatura: 460 m³
liczba pokoi: 2
liczba łazienek: 1
kominek: tak
Opis projektu:

L-241 to projekt małego, energooszczędnego domu parterowego z dachem dwuspadowym. Klasyczna bryła świetnie wkomponuje się w każdy rodzaj zabudowy. Daszek nad wejściem oraz zamykany wiatrołap chronią wnętrze przed warunkami zewnętrznymi. Wszystkie pomieszczenia w budynku zaplanowano na jednej kondygnacji. Na plan funkcjonalny składa się: otwarty salon, łazienka, kotłownia i kuchnia. W części nocnej zaprojektowano dwie sypialnie. Bardzo prosta bryła i dach czynią ten dom tani, prosty i szybki w budowie. W projekcie znajduje się też częściowo zadaszony taras. To idealne rozwiązanie dla rodziny 2+1 lub 2+2. L-241 wybierają również osoby, które decydują się na „kolejny dom”. Często posiadany wcześniej budynek okazuj się za duży, drogi w utrzymaniu oraz kłopotliwy z powodu dużej ilości schodów. W takim wypadku zamiana na mały prosty i parterowy dom często jest idealnym rozwiązaniem.


Projekt dostępny jest z dwiema wersjami ogrzewania (do wyboru):


1. kocioł gazowy,


2. pompa ciepła w pom. gospodarczym na parterze. Zaprojektowano kotłownię opartą o pompę ciepła powietrze-woda typu split Vitocal 222-S model C06 składająca się z jednostki zewnętrznej, jednostki wewnętrznej wraz z zintegrowanym podgrzewaczem c.w.u. o pojemności 220 litrów oraz buforem c.o. o pojemności 40 litrów marki Viessmann. Maksymalna moc cieplna pompy według EN 14511, różnica temperatur 5K przy:


- A7/W35 6,30 kW,


- A2/W35 5,50 kW,


- A-7/W35 5,53 kW.

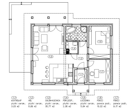
Rzuty:
Rzut parteru
L-241 mur - Rzut parteru
Opis pomieszczeń:
1.Wiatrołap - 3.03 m²
2.Hol - 6.89 m²
3.Salon z kuchnią - 35.77 m²
4.Pom. gospodarcze - 2.36 m²
5.Łazienka - 5.84 m²
6.Pokój - 13.02 m²
7.Pokój - 9.17 m²
Rzut parteru
L-241 mur - Rzut parteru
Elewacje:
Elewacja przednia
Elewacja tylna
Elewacja lewa
Elewacja prawa

Potrzebujesz porady...?
Skontaktuj się z nami - jesteśmy do Twojej dyspozycji.

tel: 52 384 49 90 email: projekty@tooba.pl
kom: 605 071 505 kom: 502 363 539 kom: 502 363 364