Projekt Dom Agat (THT-697)
Dane ogólne:
CENA:3794 zł
pow. użytkowa: 99,96m²
pow. zabudowy: 131,5 m²
min. wym. działki: 19,7 x 21,35 m
kondygnacje: parterowy
poddasze: bez poddasza
rodzaj zabudowy: wolnostojący
technologia: murowany
styl: nowoczesna elewacja
piwnica: nie
garaż: bez garażu
rodzaj dachu: dwuspadowy
pow. dachu: 196 m²
nachylenie dachu: 30°
wysokość domu: 6,6 m
kubatura: 379,03 m³
liczba pokoi: b/d
liczba łazienek: b/d
kominek: tak
Opis projektu:

Dom Agat to projekt domu parterowego na planie prostokąta, który przeznaczony jest do zabudowy działek o stosunkowo małych wymiarach. To klasyczna nieruchomość zaprojektowana z pomysłem, w której zastosowano wiele ekonomicznych rozwiązań. Budynek ma rys nowoczesności, widoczny w nieoczywistych połączeniach reprezentowanych przez grafitową dachówkę oraz drewniane deski elewacyjne. Mimo prostej bryły elewacja swoją estetyką koresponduje z funkcjonalnym wnętrzem. Dom Agat jest tani w budowie, a zarazem bardzo funkcjonalny i nowoczesny. W jego projekcie uwzględniliśmy trzy sypialnie, w tym jedną małżeńską zlokalizowaną w zachodniej części budynku. Dużym atutem domu Agat jest przestronna łazienka, która mieści zarówno prysznic, jak i wannę. Dla gości i domowników przewidzieliśmy również dodatkowe WC. Część wypoczynkową budynku stanowi otwarta przestrzeń zawierająca pokój dzienny, jadalnię oraz otwartą kuchnię. Każdy, kto marzy o wyspie kuchennej, a jednocześnie ma na uwadze względy ekonomiczne, ucieszy się z projektowanego półwyspu w otwartej kuchni, obok której zlokalizowaliśmy również spiżarnię. Jej wejście prowadzi wprost do kuchni, co znacznie ułatwia pracę i codzienne gotowanie. W domu znajduje się również kotłownia, na którą przeznaczyliśmy 6 m2. Na tarasie zaprojektowaliśmy również strefę relaksu, z którego mieszkańcy domu Agat mogą korzystać w ciepłe miesiące. Jesienią i zimą najprzyjemniejszym miejscem w domu będzie przestronny salon z kominkiem, który zapewnia ciepło oraz pomaga stworzyć miły nastrój.

Rzuty:
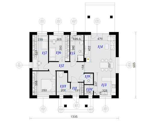
Rzut parteru
Dom Agat - Rzut parteru
Opis pomieszczeń:
1/1.Wiatrołap - 3.59 m²
1/2.Komunikacja - 11.0 m²
1/3.Kuchnia - 8.85 m²
1/4.Pokój dzienny z jadalnią - 27.94 m²
1/5.Łazienka - 7.83 m²
1/6.Sypialnia - 11.89 m²
1/7.Sypialnia - 12.38 m²
1/8.Sypialnia - 12.53 m²
1/9.WC - 2.0 m²
1/10.Spiżarnia - 1.95 m²
1/11.Kotłownia - 6.34 m²
Elewacje:
Elewacja przednia
Elewacja tylna
Elewacja lewa
Elewacja prawa

Potrzebujesz porady...?
Skontaktuj się z nami - jesteśmy do Twojej dyspozycji.

tel: 52 384 49 90 email: projekty@tooba.pl
kom: 605 071 505 kom: 502 363 539 kom: 502 363 364