Projekt Figiel bez garażu B (TAU-238)
Dane ogólne:
CENA:5290 zł
pow. użytkowa: 54,5m²
pow. zabudowy: 58 m²
min. wym. działki: 16,7 x 13,7 m
kondygnacje: parterowy
poddasze: użytkowe
rodzaj zabudowy: wolnostojący
technologia: murowany
styl: nowoczesny
piwnica: nie
garaż: bez garażu
rodzaj dachu: dwuspadowy
pow. dachu: 81,3 m²
nachylenie dachu: 45°
wysokość domu: 7,7 m
kubatura: b/d
liczba pokoi: 2
liczba łazienek: 1
kominek: tak
Opis projektu:

Minimalistyczny projekt małego domku z dwuspadowym dachem. Dom posiada efektowne detale w kontrastujących kolorach. Jest to propozycja projektu do 70 m² powierzchni zabudowy. Prosta bryła z drewnianą, ciemną elewacją dobrze będzie się komponować w naturalnym środowisku. Zadaszone wejście prowadzi do wiatrołapu z szafami, z którego można dostać się do pomieszczenia technicznego, łazienki, dwuosobowej sypialni oraz do salonu z kuchnią. Wysoki salon z kuchnią oraz antresolą ze schodami to strefa dzienna. Pod schodami przewidziano kominek. Obok kuchni przewidziano niewielką jadalnię. Z salonu wchodzi się schodami na sporą antresolą do dowolnego zagospodarowania. Figiel to propozycja ekonomicznego i ekologicznego domu, który doskonale sprawdzi się jako weekendowy lub dom całoroczny.

Technologia wykonania:

  • Fundamenty: betonowe.

  • Ściany zewnętrzne: Porotherm+styropian Termo Organika.

  • Ściany wewnętrzne: Porotherm.

  • Rodzaj stropu:Teriva.

  • Elewacje: tynk strukturalny, cegla klinkierowa.

  • Pokrycie dachu: dachówka ceramiczna.

Rzuty:
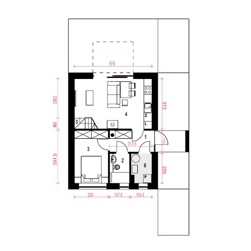
Rzut parteru
Figiel bez garażu B - Rzut parteru
Opis pomieszczeń:
1.Wiatrołap - 4.9 m²
2.Łazienka - 3.1 m²
3.Pokój - 10.0 m²
4.Salon z kuchnią - 18.9 m²
5.Schody - 3.0 m²
6.Pom. techniczne z CO - 3.1 m²
Rzut poddasza
Figiel bez garażu B - Rzut poddasza
Opis pomieszczeń:
7.Antresola - 14.7 m²
Elewacje:
Elewacja przednia
Elewacja tylna
Elewacja lewa
Elewacja prawa

Potrzebujesz porady...?
Skontaktuj się z nami - jesteśmy do Twojej dyspozycji.

tel: 52 384 49 90 email: projekty@tooba.pl
kom: 605 071 505 kom: 502 363 539 kom: 502 363 364