Projekt Sej-Pro 072/2 Energo (THJ-365)
Dane ogólne:
CENA:5397 zł
pow. użytkowa: 98,47m²
pow. zabudowy: 107,81 m²
min. wym. działki: 14,9 x 19,5 m
kondygnacje: parterowy
poddasze: null
rodzaj zabudowy: wolnostojący
technologia: murowany
styl: nowoczesny
piwnica: nie
garaż: bez garażu
rodzaj dachu: dwuspadowy
pow. dachu: b/d
nachylenie dachu: 45°
wysokość domu: 7,94 m
kubatura: b/d
liczba pokoi: 4
liczba łazienek: 1
kominek: b/d
Opis projektu:

Nowoczesna stodoła, która dzięki wykorzystaniu dużych przeszkleń i wykończeniu elewacji płytkami elewacyjnymi imitującymi ciepłą i pełną klimatu cegłę sprawia, że projekt prezentuje się niezwykle efektownie i nie ma sobie równych. Wnętrze tworzy funkcjonalna przestrzeń zaplanowana na powierzchni parteru oraz poddasza.

Technologia wykonania:

  • Ściany: zewnętrzne z pustaków gazobetonowych grubości 24 cm.

  • Ocieplenie: styropian o grubości 20 cm.

  • Strop: monolityczny.

  • Ścianka kolankowa: 125.

  • Dach: drewniany, dwuspadowy o spadku 45°, pokryty blachą na rąbek stojący.

  • Kocioł: gazowy.

  • Ogrzewanie podłogowe: zastosowano w kuchni, jadalni, salonie i łazienkach.

  • Wentylacja: zastosowano w kuchni, jadalni, salonie i łazienkach.

Rzuty:
Rzut parteru
Sej-Pro 072/2 Energo - Rzut parteru
Opis pomieszczeń:
1.Wiatrołap - 3.09 m²
2.WC - 1.7 m²
3.Pokój dzienny - 35.35 m²
4.Kuchnia - 13.22 m²
5.Kotłownia - 4.67 m²
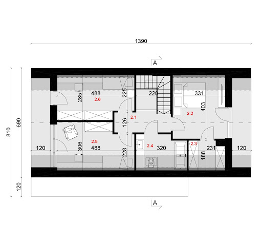
Rzut poddasza
Sej-Pro 072/2 Energo - Rzut poddasza
Opis pomieszczeń:
1.Komunikacja - 4.59 m²
2.Sypialnia - 11.33 m²
3.Garderoba - 2.76 m²
4.Łazienka - 5.02 m²
5.Pokój - 10.41 m²
6.Pokój - 11.0 m²
Elewacje:

Potrzebujesz porady...?
Skontaktuj się z nami - jesteśmy do Twojej dyspozycji.

tel: 52 384 49 90 email: projekty@tooba.pl
kom: 605 071 505 kom: 502 363 539 kom: 502 363 364