Projekt HomeKoncept-93 B (TAN-786)
Dane ogólne:
CENA:8691 zł
pow. użytkowa: 264,13m²
pow. zabudowy: 205,17 m²
min. wym. działki: 17,98 x 29,92 m
kondygnacje: parterowy
poddasze: null
rodzaj zabudowy: bliźniaczy
technologia: murowany
styl: nowoczesny
piwnica: nie
garaż: jednostanowiskowy
rodzaj dachu: dwuspadowy
pow. dachu: 179 m²
nachylenie dachu: 35°
wysokość domu: 8,22 m
kubatura: 1359 m³
liczba pokoi: 5
liczba łazienek: 1
kominek: tak
Opis projektu:
Technologia wykonania:

  • Fundamenty: tradycyjne – na ławach fundamentowych.

  • Ściany: dwuwarstwowe – pustak ceramiczny 25 cm + styropian Termo Organika 20 cm/wełna mineralna 18 cm.

  • Strop: żelbetowy wylewany.

  • Schody: żelbetowe wylewane, zabiegowe.

  • Dach: tradycyjna więźba dachowa pokryta blachą na rąbek, okna dachowe FAKRO.

  • Elewacja: tynki silikonowy i dekoracyjny, połączony z blachą na rąbek.

  • Ogrzewanie: gazowe – piec kondensacyjny. Ogrzewanie podłogowe w całym domu poza garażem i pomieszczeniem gospodarczym, w tych pomieszczeniach zastosowano tradycyjne grzejniki.

  • Wentylacja: mechaniczna z rekuperacją.

  • Rolety podtynkowe: tak.

Rzuty:
Rzut parteru
HomeKoncept-93 B - Rzut parteru
Opis pomieszczeń:
1A.Wiatrołap - 4.6 m²
2A.Garderoba - 2.35 m²
3A.Komunikacja - 4.81 m²
4A.Schowek - 1.7 m²
5A.Toaleta - 2.33 m²
6A.Jadalnia + salon - 22.93 m²
7A.Kuchnia - 9.15 m²
8A.Pom. gospodarcze - 7.28 m²
9A.Garaż - 23.46 m²
T.Taras - 14.9 m²
1B.Wiatrołap - 4.96 m²
2B.Spiżarnia - 2.07 m²
3B.Komunikacja - 4.81 m²
4B.Schowek - 1.7 m²
5B.Toaleta - 2.25 m²
6B.Jadalnia + salon - 22.93 m²
7B.Kuchnia - 9.15 m²
8B.Pom. gospodarcze - 7.28 m²
9B.Garaż - 20.7 m²
T.Taras - 14.9 m²
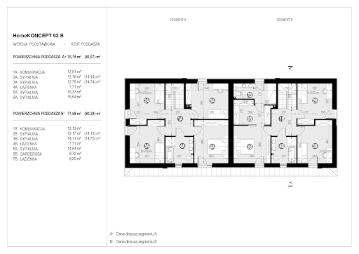
Rzut poddasza
HomeKoncept-93 B - Rzut poddasza
Opis pomieszczeń:
1A.Komunikacja - 12.61 m²
2A.Sypialnia - 12.18 m²
3A.Sypialnia - 12.78 m²
4A.Łazienka - 7.71 m²
5A.Sypialnia - 15.33 m²
6A.Sypialnia - 15.54 m²
1B.Komunikacja - 12.13 m²
2B.Sypialnia - 12.17 m²
3B.Sypialnia - 14.11 m²
4B.Łazienka - 7.71 m²
5B.Sypialnia - 14.64 m²
6B.Garderoba - 8.72 m²
7B.Łazienka - 8.2 m²
Elewacje:
Elewacja przednia
Elewacja tylna
Elewacja lewa
Elewacja prawa

Potrzebujesz porady...?
Skontaktuj się z nami - jesteśmy do Twojej dyspozycji.

tel: 52 384 49 90 email: projekty@tooba.pl
kom: 605 071 505 kom: 502 363 539 kom: 502 363 364