Projekt Sej-Pro 074 Energo (TID-298) - lustrzane odbicie
Dane ogólne:
CENA:5397 zł
pow. użytkowa: 128,38m²
pow. zabudowy: 97,12 m²
min. wym. działki: 16 x 20 m
kondygnacje: parterowy
poddasze: null
rodzaj zabudowy: wolnostojący
technologia: murowany
styl: nowoczesny
piwnica: nie
garaż: bez garażu
rodzaj dachu: dwuspadowy
pow. dachu: b/d
nachylenie dachu: 40°
wysokość domu: 8,31 m
kubatura: 636 m³
liczba pokoi: 5
liczba łazienek: 1
kominek: tak
Opis projektu:

Projekt budynku z poddaszem użytkowym o powierzchni niespełna 130m² nawiązujący stylistyką do nowoczesnej stodoły. Charakteryzujący się licznymi przeszkleniami otwierającymi wnętrze na naturalne światło oraz otaczające widoki natury. Efektowne belkowaniai nad obszernym tarasem dodają bryle charakteru i czynią go tak niepowtarzalnym.

Technologia wykonania:

  • Ściany: zewnętrzne dwuwarstwowe z pustaków gazobetonowych o grubości 24 cm.

  • Ocieplenie: styropian 16 cm.

  • Strop: monolityczny.

  • Dach: drewniany, pokryty blachą na rąbek stojący.

  • Kocioł: gazowy.

  • Ogrzewanie podłogowe: zastosowano w kuchni, jadalni, salonie i łazienkach.

  • Wentylacja: mechaniczna.

Rzuty:
Rzut parteru
Sej-Pro 074 Energo - Rzut parteru
Opis pomieszczeń:
1.Wiatrołap - 6.03 m²
2.Korytarz - 6.25 m²
3.Spiżarnia - 1.54 m²
4.Kuchnia - 11.65 m²
5.Pokój dzienny - 32.28 m²
6.Gabinet - 8.14 m²
7.WC - 2.04 m²
8.Kotłownia - 4.99 m²
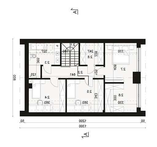
Rzut poddasza
Sej-Pro 074 Energo - Rzut poddasza
Opis pomieszczeń:
1.Schody - 4.55 m²
2.Przedpokój - 7.78 m²
3.Łazienka - 5.73 m²
4.Pokój - 10.21 m²
5.Pokój - 10.39 m²
6.Garderoba - 7.44 m²
7.Sypialnia - 10.57 m²
8.Garderoba - 3.78 m²
Elewacje:

Potrzebujesz porady...?
Skontaktuj się z nami - jesteśmy do Twojej dyspozycji.

tel: 52 384 49 90 email: projekty@tooba.pl
kom: 605 071 505 kom: 502 363 539 kom: 502 363 364