Projekt Jukka II z garażem 1-st. A-SZ (TAN-538) - lustrzane odbicie
Dane ogólne:
CENA:5240 zł
pow. użytkowa: 104,4m²
pow. zabudowy: b/d
min. wym. działki: 22 x 6,3 m
kondygnacje: parterowy
poddasze: użytkowe
rodzaj zabudowy: szeregowy
technologia: murowany
styl: nowoczesny
piwnica: nie
garaż: jednostanowiskowy
rodzaj dachu: płaski
pow. dachu: 81,9 m²
nachylenie dachu: b/d
wysokość domu: 6,6 m
kubatura: 541 m³
liczba pokoi: 4
liczba łazienek: 1
kominek: tak
Opis projektu:

Projekt domu Jukka II w zabudowie szeregowej to atrakcyjny dom piętrowy z płaskim dachem. To idealny projekt na wąskie działki o bardzo prostej i zwartej formie budynku oraz o niedużej powierzchni użytkowej – około 104 m² – co przekłada się na niski koszt budowy i niskie koszty eksploatacji domu. Projekt Jukka II zaprojektowany jest dla 4-5-osobowej rodziny. To dom o tradycyjnej konstrukcji z pustaków ceramicznych izolowanych styropianem, przykryty płaskim dachem. Na funkcję domu składa się część ogólnodostępna i prywatna, zgodnie z podziałem na parter i poddasze. W części ogólnodostępnej zaprojektowano część wejściową z wiatrołapem, holem, WC i schodami prowadzącymi na poddasze. Mamy tu też przewidziany jenostanowiskowy garaż. Dalej mamy zaprojektowany ustawny salon z kominkiem i jadalnią, oraz wygodny aneks kuchenny. Z salonu dostaniemy się na przydomowy ogród. Część prywatna zlokalizowana na poddaszu i obejmuje przedpokój, z którego dostaniemy się do 3 sypialni, wspólnej łazienki oraz pomieszczenia pralni z piecem gazowym c.o. Jukka II w zabudowie szeregowej to projekt domu energooszczędnego, bardzo prostego w realizacji i idealnego dla inwestycji deweloperskich.

Technologia wykonania:

  • Fundamenty: betonowe.

  • Ściany zewnętrzne: Porotherm+styropian Termo Organika.

  • Rodzaj stropu: Teriva I.

  • Elewacje: tynk strukturalny/okł. drewnopodobna.

  • Pokrycie dachu: bitumiczne.

Rzuty:
Rzut parteru
Jukka II z garażem 1-st. A-SZ - Rzut parteru
Opis pomieszczeń:
1.Wiatrołap - 5.2 m²
2.Hol - 6.2 m²
3.WC - 2.1 m²
4.Schody - 4.1 m²
5.Salon z jadalnią - 24.4 m²
6.Kuchnia - 6.9 m²
7.Garaż - 17.8 m²
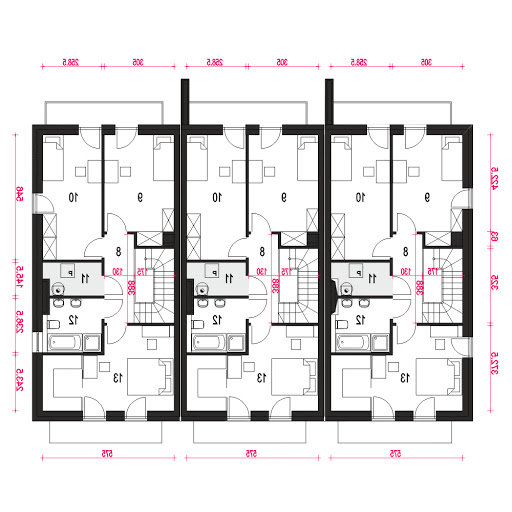
Rzut poddasza
Jukka II z garażem 1-st. A-SZ - Rzut poddasza
Opis pomieszczeń:
8.Przedpkój - 4.9 m²
9.Sypialnia - 13.4 m²
10.Sypialnia - 13.9 m²
11.Pralnia + c.o. - 3.4 m²
12.Łazienka - 5.7 m²
13.Sypialnia - 17.6 m²
Elewacje:
Elewacja przednia
Elewacja tylna
Elewacja lewa
Elewacja prawa

Potrzebujesz porady...?
Skontaktuj się z nami - jesteśmy do Twojej dyspozycji.

tel: 52 384 49 90 email: projekty@tooba.pl
kom: 605 071 505 kom: 502 363 539 kom: 502 363 364