Projekt HomeKoncept-90 (TKT-561)
Dane ogólne:
CENA:9490 zł
pow. użytkowa: 209,43m²
pow. zabudowy: 315 m²
min. wym. działki: 19,95 x 41,17 m
kondygnacje: parterowy
poddasze: null
rodzaj zabudowy: wolnostojący
technologia: murowany
styl: nowoczesny
piwnica: nie
garaż: dwustanowiskowy
rodzaj dachu: czterospadowy
pow. dachu: 284 m²
nachylenie dachu: 25°
wysokość domu: 6,51 m
kubatura: 1668 m³
liczba pokoi: 5
liczba łazienek: 2
kominek: tak
Opis projektu:
Technologia wykonania:

  • Fundamenty: tradycyjne – na ławach fundamentowych.

  • Ściany: dwuwarstwowe pustak ceramiczny 25 cm + styropian 20 cm/wełna mineralna 18 cm.

  • Strop: żelbetowy wylewany.

  • Dach: tradycyjna więźba dachowa pokryta dachówką ceramiczną lub cementową CREATON, okna dachowe FAKRO, stropodach kryty membraną EPDM.

  • Elewacja: tynk silikonowy połączony z drewnem elewacyjnym.

  • Ogrzewanie: gazowe – piec kondensacyjny, ogrzewanie podłogowe w całym domu, w łazienkach dodatkowo tradycyjne grzejniki typu ręcznikowiec.

  • Wentylacja: mechaniczna z rekuperacją.

Rzuty:
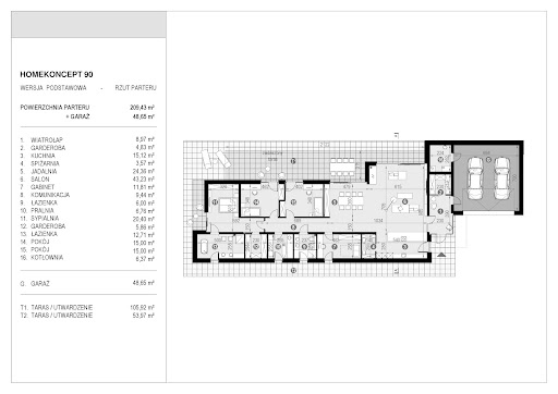
Rzut parteru
HomeKoncept-90 - Rzut parteru
Opis pomieszczeń:
1.Wiatrołap - 8.97 m²
2.Garderoba - 4.83 m²
3.Kuchnia - 15.12 m²
4.Spiżarnia - 3.57 m²
5.Jadalnia - 24.36 m²
6.Salon - 43.23 m²
7.Gabinet - 11.81 m²
8.Komunikacja - 9.44 m²
9.Łazienka - 6.0 m²
10.Pralnia - 6.76 m²
11.Sypialnia - 20.4 m²
12.Garderoba - 5.86 m²
13.Łazienka - 12.71 m²
14.Pokój - 15.0 m²
15.Pokój - 15.0 m²
16.Kotłownia - 6.37 m²
17.Garaż - 48.65 m²
T1.Taras / utwardzenie - 105.92 m²
T2.Taras / utwardzenie - 53.97 m²
Elewacje:
Elewacja przednia
Elewacja tylna
Elewacja lewa
Elewacja prawa

Potrzebujesz porady...?
Skontaktuj się z nami - jesteśmy do Twojej dyspozycji.

tel: 52 384 49 90 email: projekty@tooba.pl
kom: 605 071 505 kom: 502 363 539 kom: 502 363 364