Projekt Willa diamentowa wariant D (TZQ-493)
Dane ogólne:
CENA:7390 zł
pow. użytkowa: 156,01m²
pow. zabudowy: 167,12 m²
min. wym. działki: 21,35 x 22,75 m
kondygnacje: piętrowy
poddasze: null
rodzaj zabudowy: wolnostojący
technologia: murowany
styl: tradycyjny
piwnica: nie
garaż: dwustanowiskowy
rodzaj dachu: czterospadowy
pow. dachu: 237 m²
nachylenie dachu: 25° / 30°
wysokość domu: 9,1 m
kubatura: 778 m³
liczba pokoi: 5
liczba łazienek: 3
kominek: tak
Opis projektu:

Wariant domku w wersji z przesuniętym garażem w lewo i wygospodarowaną pralnią + gabinetem. Zobacz całą serię projektów: Willa Diamentowa.

Technologia wykonania:

  • Fundamenty: betonowe ławy i ściany fundamentowe z bloczków betonowych.

  • Ściany zewnętrzne: ściany murowane – pustaki porotherm 25 cm + styropian 20 cm.

  • Strop: Teriva.

  • Elewacje: tynk cienkowarstwowy.

  • Pokrycie dachu: dachówka.

Rzuty:
Rzut parteru
Willa diamentowa wariant D - Rzut parteru
Opis pomieszczeń:
1.Sień - 2.22 m²
2.Hol - 14.45 m²
3.Kuchnia - 12.15 m²
4.Pokój dzienny + jadalnia - 36.72 m²
5.WC - 2.89 m²
6.Pralnia - 3.54 m²
7.Pokój / gabinet - 12.57 m²
8.Pom. gospodarcze - 7.58 m²
9.Garaż - 31.92 m²
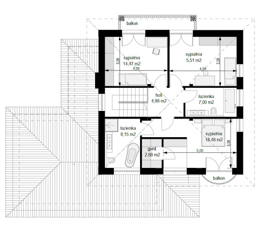
Rzut piętra
Willa diamentowa wariant D - Rzut piętra
Opis pomieszczeń:
1.Hol - 4.98 m²
2.Sypialnia - 18.48 m²
3.Garderoba - 2.68 m²
4.Łazienka - 8.15 m²
5.Pokój - 14.47 m²
6.Sypialnia - 5.51 m²
7.Łazienka - 7.0 m²
Elewacje:
Elewacja przednia
Elewacja tylna
Elewacja lewa
Elewacja prawa

Potrzebujesz porady...?
Skontaktuj się z nami - jesteśmy do Twojej dyspozycji.

tel: 52 384 49 90 email: projekty@tooba.pl
kom: 605 071 505 kom: 502 363 539 kom: 502 363 364